Prosklené stěny luxusní vily nabízejí výhledy na Gdaňský záliv
Úchvatné výhledy na Gdaňský záliv ze všech podlaží soukromé rezidence v polské Gdyni navrhli architekti studia Arch-Deco, když využili terasovitý terén pozemku na pobřeží Baltského moře. Mimořádné požadavky na funkčnost domu, výjimečné nápady architektů i sofistikované představy investora pomohly realizovat prosklené automatické posuvné systémy Schüco ASS 77 PD.SI a ASS 70.HI. Ty byly použity na všech třech úrovních domu, aby vytvořily, či spíše zachovaly a ještě znásobily dech beroucí výhledy na záliv.
Schüco CZ s.r.o. , 30. 8. 2018
Krajina v okolí Baltského moře a terasovitý charakter pobřeží umožnily architektům polského studia Arch-Deco vytvořit luxusní soukromou rezidenci v Gdyni, jednom z nejmladších měst na severu Polska, které spolu s Gdaňskem a Sopoty tvoří tzv. Trojměstí. Základní myšlenkou návrhu bylo skloubit funkčnost a technické požadavky budovy s představami a zálibami klienta, a to vše uvést do souladu s územním plánem, náročným terasovitě klesajícím pozemkem a v neposlední řadě i se sousední historickou stavbou.
Tři prosklené úrovně domu
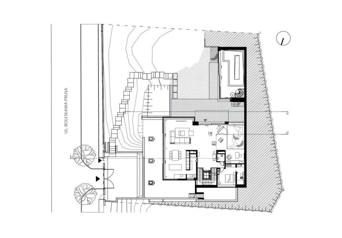
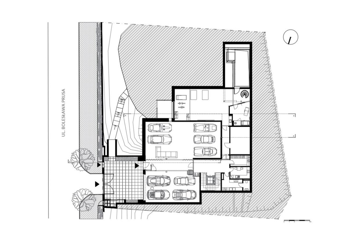
Tvar budovy je tvořen kompozicí třech vzájemně propojených objektů. Spojení sedlových a plochých střech s otevřenými terasami zdůrazňuje přirozenost pobřeží a odhaluje úchvatné panorama Gdaňského zálivu. Zasazení budovy do pásu zeleně umožnilo stavbě navázat na okolní krajinu a vytvořit relaxační zóny. Různé části domu byly vytvářeny nejen s ohledem na obytné funkce, ale respektují i vysoké nároky a osobité vášně majitele. V rezidenci proto vznikla garáž pro osobní auta, ale i soukromý showroom pro sbírku historických vozů, obojí umístěné na nejnižším podlaží budovy. To zahrnuje i prostory pro sportovní, wellness a rekreační aktivity včetně proskleného fitness a sauny.
Přízemí je určeno ke každodennímu životu a odpočinku a dominuje mu impozantní obývací pokoj s panoramatickým výhledem na záliv a nejkrásnějším interiérem. Je zde i zimní zahrada s vybranými tropickými rostlinami, které navazují na zdejší flóru. Prostorná terasa, která je přístupná z obývacího pokoje, poskytuje dostatek prostoru pro venkovní odpočinek. Zároveň slouží jako vnější spojovací průchod mezi obytnými prostory a bazénem a částečně ji zastřešuje zelená střecha.
První patro pak nabízí jak soukromé pokoje, tak funkční prostory sdílené všemi členy rodiny.
Posuvné systémy propojují interiéry s přírodou a umožňují panoramatické výhledy
Architektonický návrh se soustředil na skloubení průhledného charakteru budovy a praktičnosti interiérů s výhledem na moře a okolní krajinu. Pro maximální funkční a vizuální efekt byly proto na všech třech úrovních budovy použity rozsáhlé posuvné systémy s úzkými hliníkovými profily od společnosti Schüco, které jsou pohodlně, tiše a rychle ovládané automatickým integrovaným systém Schüco e-slide s elektrickým pohonem. Mírně tónované trojité zasklení splňuje nejvyšší požadavky z hlediska bezpečnosti, tepelné izolace a zastínění a současně propouští dostatek denního světla.
Architekti Arch-Deco Michal Baryzewski a Zbigniew Reszka zdůraznili význam prosklených posuvných systémů v celkové koncepci projektu: "Špičkové posuvné systémy Schüco nám pomohly splnit nejnáročnější technické požadavky a současně proměňovaly naše nestandardní konstrukční nápady a vysoké funkční a estetické nároky majitele v úžasnou architekturu. Mimořádná tepelná izolace je kombinována s inovativní technologií materiálů, automatizací a rozsáhlými prosklenými plochami, které zajistí dech beroucí vizuální zážitky při pohledu na přímořské a sezónně proměnlivé prostředí, a to ze všech úrovní budovy. "
- Ateliér: Arch-Deco
- Země: Polsko
- Subdodavatel: Schüco CZ s.r.o.
- Město: Gdyně
- Realizace: 2015


