Architektura / občanské stavby

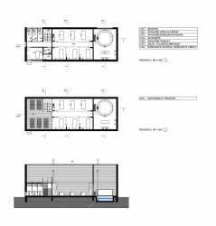
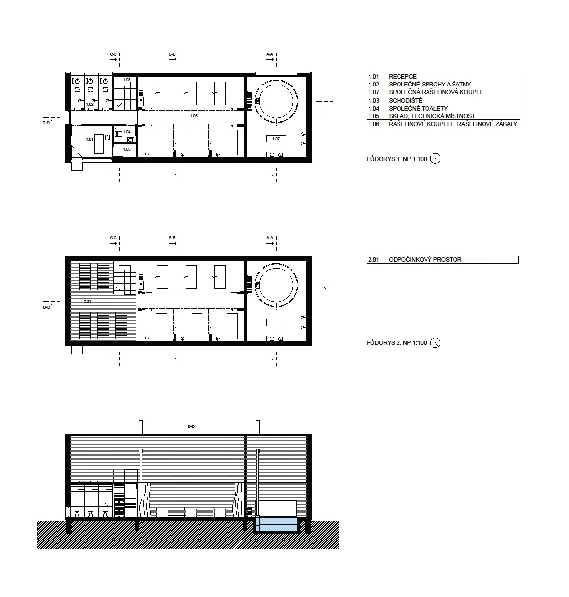
Rašelinové lázně – nominace soutěže Ještěd F kleci #15

Dalším nominovaným ještědským projektem je ten z Jizerky od Libora Šenekela. Inspiraci hledá v úspěšné lázeňské minulosti Jizerských hor a na tuto tradici citlivě navazuje návrhem objektů s intimní atmosférou, a to třeba za použití světlíků či tradičních materiálů. Také byste sem rádi přijeli?

Libor Šenekel , 3. 3. 2016

  • Autoři: Libor Šenekel
  • Země: Česká republika
  • Škola: FUA TUL – Ateliér Stolín & Mičeková
  • Město: Kořenov
  • Ulice, číslo: Jizerka
  • PSČ: 468 50
  • Datum projektu: 2016

Nabídky práce

Mohlo by vás zajímat

Generální partner
Hlavní partneři