Architektura / rodinné domy

Rekonstrukce proměnila bývalý mlýn na bydlení rodiny architekta Petráška ze studia DEBYT

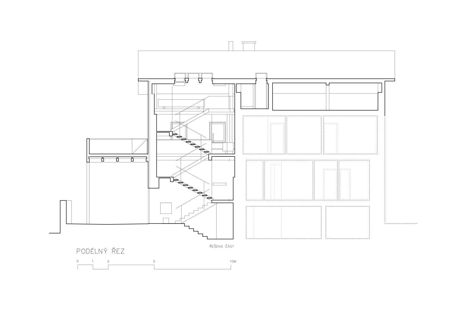
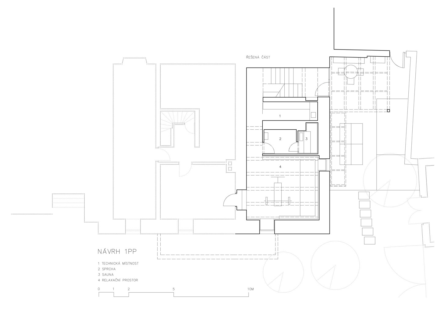
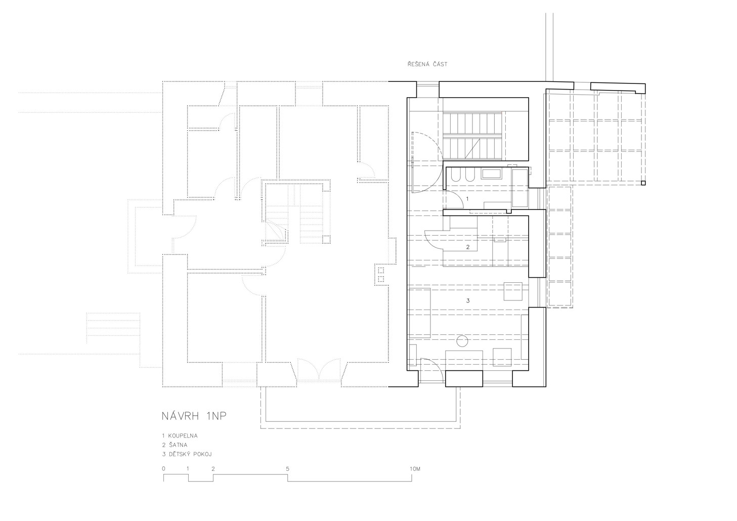
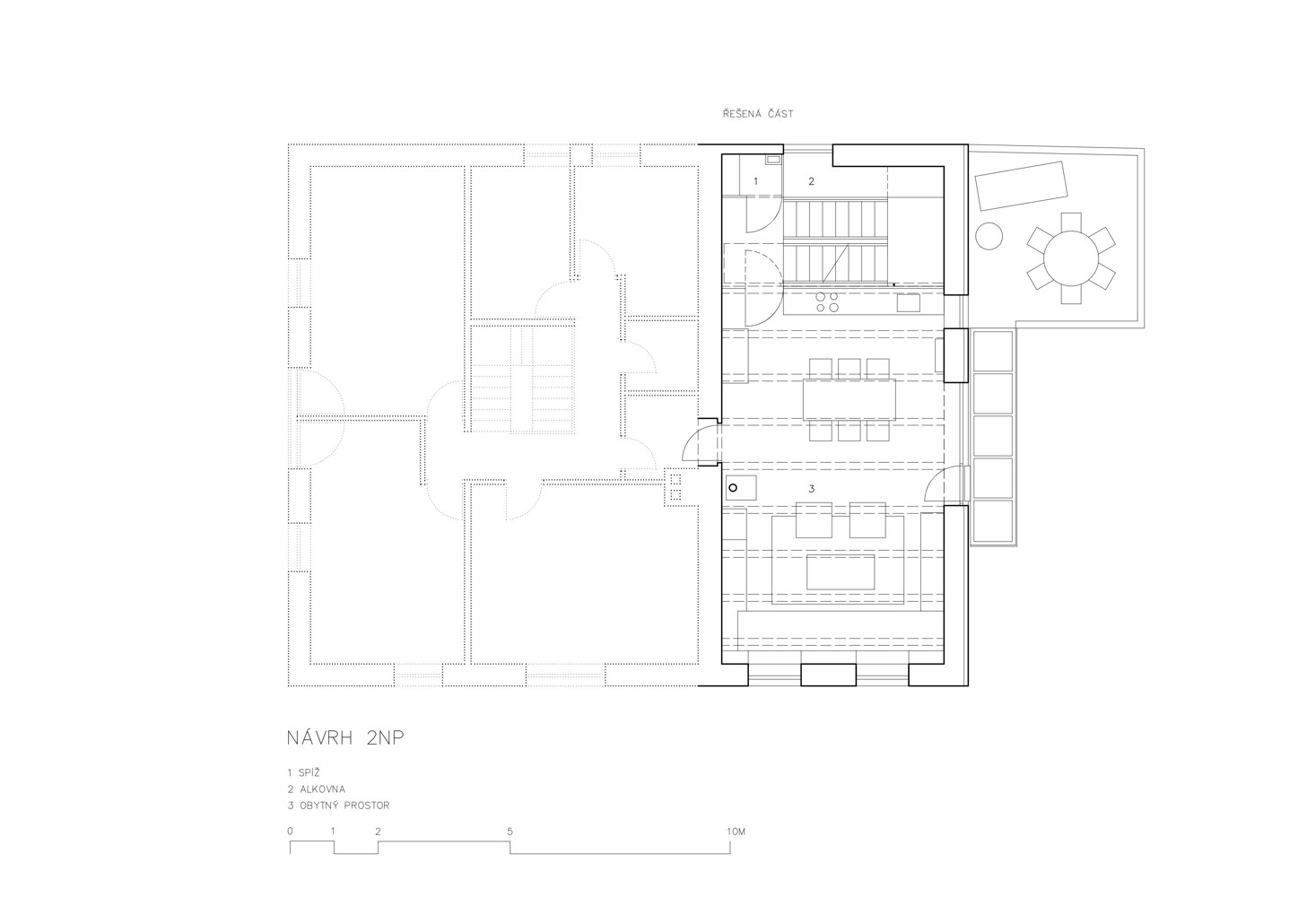
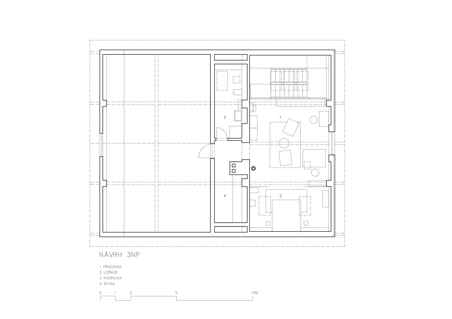
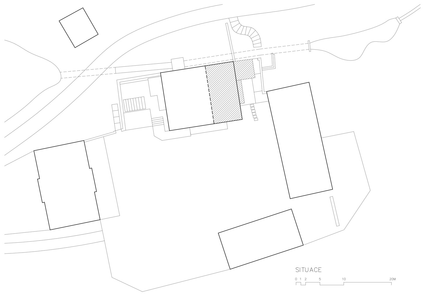
Dříve papírna, poté mlýn, dnes dvojgenerační bydlení architektovy rodiny - zrekonstruovaný objekt na hranici CHKO Křivoklátsko definitivně změnil svůj účel. Architekt Tomáš Petrášek ze studia DEBYT usiloval při návrhu rekonstrukce o udržení původního průmyslového a venkovského charakteru stavby, a to především zachováním otevřených prostorů a původních materiálů a volbou nových prvků. Vzhledem k prostorovému uspořádání objektu propojuje vertikálně nový byt osvětlené schodiště.

DEBYT , 22. 11. 2019

  • Autoři: Tomáš Petrášek
  • Ateliér: DEBYT
  • Země: Česká republika
  • Město: Ostrovec - Lhotka
  • Realizace: 2019
  • Užitná plocha: 219.00m2
  • Zahradní architektura: Tomáš Petrášek, Simona Rühmkorf, Vráťa Brabenec
  • autor: DEBYT *
  • publikováno: * 22. 11. 2019
  • zdroj: * Autorská zpráva

Klíčová slova:

přestavba mlýn

Mohlo by vás zajímat

Generální partner
Hlavní partneři