Ruinu mlynářského domu na jižní Moravě proměnili Pelčák a partner architekti na butikový penzion
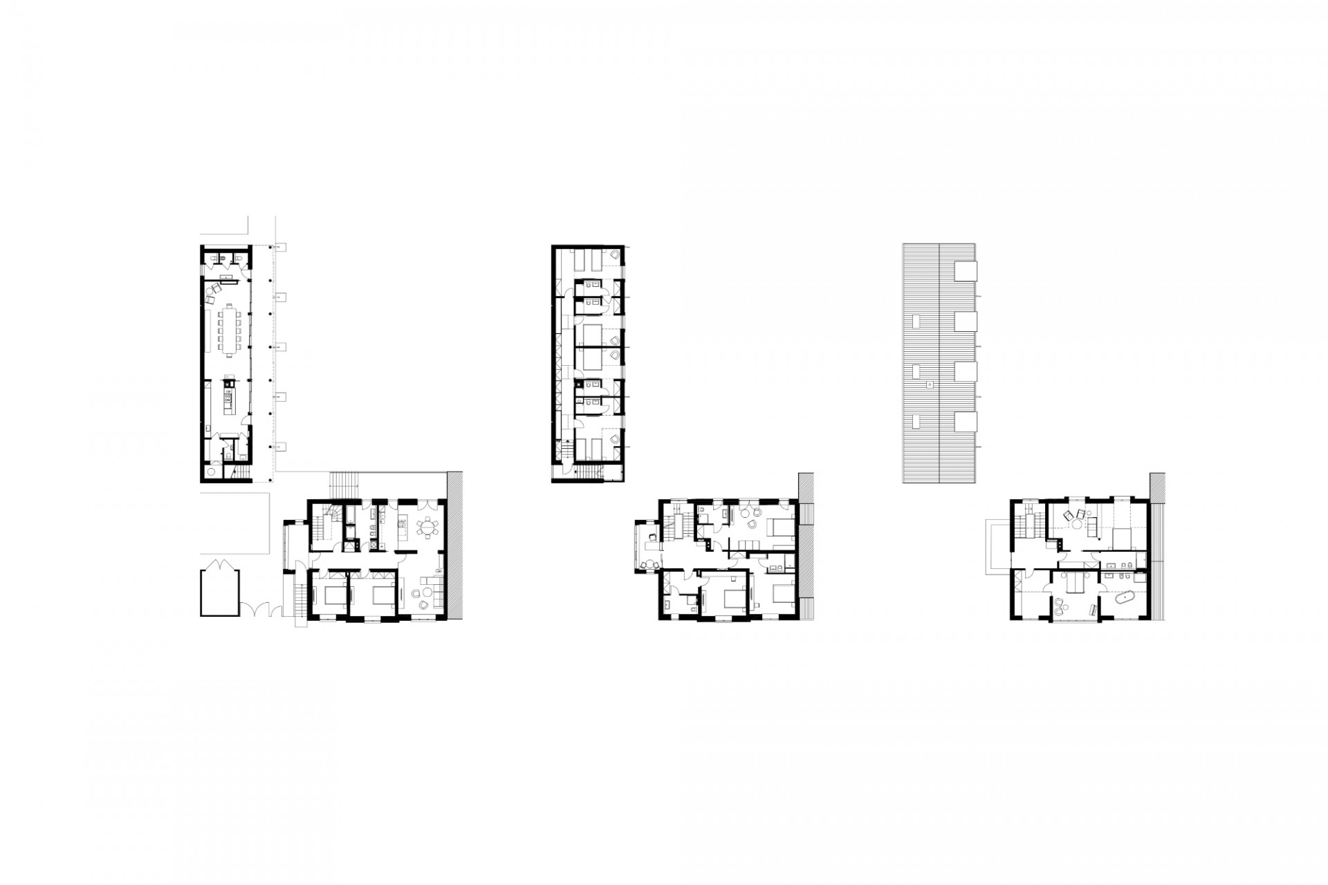
V malé jihomoravské obci Hrušky nedaleko Břeclavi vznikl před pár lety butikový penzion, který za svými zdmi ukrývá příběh místní mlynářské rodiny, jejíž plány na výtavbu velkého rodinného domu zastavil nástup komunistů. Nedokončeného objektu se po desetiletích chátrání chopil vnuk původních majitelů, který jej ve spolupráci s brněnskou kanceláří Pelčák a partner architekti (vedenou prof. Petrem Pelčákem) přestavěl na penzion Villa Hrušky nabízející 9 dvoulůžkových pokojů. Autoři návrhu věnovali pozornost každému detailu v interiéru i exteriéru, pokoje jsou vybaveny nábytkem vyrobeným lokálním truhlářem i kousky slavných designérů, stavby se pak otevírají do velké autorsky navržené zahrady.
Pelčák a partner architekti , 8. 1. 2021
- Autoři: Petr Pelčák, Petr Uhrín, Lenka Vořechovská
- Ateliér: Pelčák a partner architekti, Pelčák a partner architekti
- Země: Česká republika
- Realizace: 2017
- Město: Hrušky
- Ulice, číslo: U zbrojnice 442
- PSČ: 691 56
- Datum projektu: 2012
- Realizace: 2017
- Ferotypie: Vladimír Židlický