Růžová kuchyně jako šperk. V bytě od polské designérky převažují pastelové barvy

Polská designérka Natalia Mielczarek-Prym, která vede studio natalia m projekty, navrhla ve Varšavě byt plný vintage nábytku, pastelových barev a oblých tvarů.
EARCH.CZ , 8. 2. 2022 / Advertorial
Natalia Mielczarek-Prym je polská designérka, která se svým studiem natalia m projekty sídlí v polské Lodži. Dnes ale navrhuje interiéry po celém Polsku. Její vůbec první realizací se stal byt ve Varšavě pro mladou rodinu, která se nebála experimentu.
Pro práci Natalii Mielczarek-Prym je charakteristický hravý přístup a otevřenost vůči neobvyklým barevným kombinacím. Ve varšavském bytě proto převažují pastelové barvy, které doplňují masivní dřevěné kousky vintage nábytku a zlaté detaily.
Více k tématu
„Světle modré stěny vytváří společně s růžovou pastelovou kuchyní velmi jemné pozadí bytu, výrazné barvy se pak objevují v menších akcentech – na zelené futuristické pohovce nebo na originálních kaštanových židlích od polské značky The Good Living & Co,“ říká o barevné paletě bytu designérka.
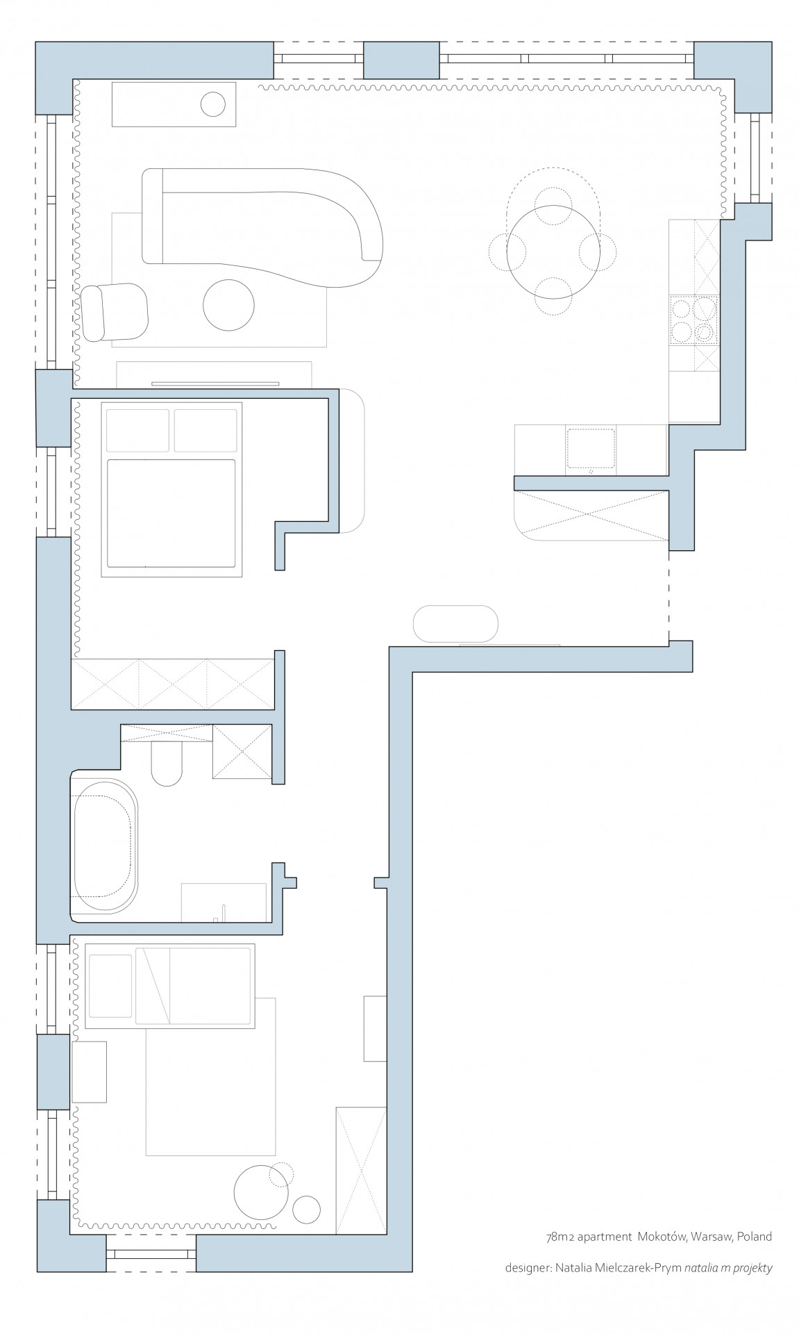
Z prostoru na první pohled čiší jeho „stará duše“, proto mnoho lidí překvapí, že se byt nachází v novostavbě. Designérka naplnila všechny pokoje – dvě ložnice, koupelnu a obývací pokoj s kuchyní – ušlechtilými a trvanlivými materiály. Vedle masivní dřevěné podlahy, která se táhne celým bytem, výrazných dřevěných skříní a jídelního stolu, je to i kamenná kuchyňská linka, která dodává celému bytu punc luxusu. „Myslím, že kámen nyní zažívá velkolepý návrat,“ podotýká.

Právě kuchyňská linka osazená pracovní deskou z tvrzeného kamene TechniStone® v dekoru Noble Olympos Mist se stala součástí nejodvážnějšího prvku celého interiéru – pastelově růžové kuchyně, kterou mladí investoři přijali s nadšením. „Znala jsem jejich vkus a byla jsem si téměř jistá, že se setkám s úspěchem. To, co vidíte na fotografiích, je první verze projektu, nic jsem nezměnila,“ vysvětluje Natalia Mielczarek-Prym.
Pastelové skříňky a šedou desku TechniStone® nakonec doplnila zlatými detaily – úchytkami a baterií – které navazují na další zlaté prvky v ostatních místnostech. Jednotlivé odvážné vstupy nakonec provázala volbou organicky tvarovaného nábytku, a vytvořila tak prostor s uceleným výrazem. „Šedá kuchyňská deska TechniStone®, černá lampa a vintage dřevěný stůl v této roli fungovaly skvěle,“ podotýká autorka na závěr.
- Autoři: Natalia Mielczarek-Prym
- Město: Varšava