
Sjednoceno dřevem. Na jižní Moravě je další vinařství od architektů, tentokrát staronové
Vinařství Kolby dostalo „facelift“ od architektů z ORA. Nesmělo se při něm bourat, pouze opravovat a přistavovat. Velkou službu udělaly nové fasády ze dřeva, které sjednotily různorodé stavební etapy. Nic teď nebije do očí.
EARCH.CZ , 24. 4. 2024
S upravováním starých areálů mají v ORA již zkušenosti. Rekonstruují je i doplňují novostavbami, hlavně jim ale vkládají architektonickou koncepci – aby byly funkční a esteticky provázané. Jejich takovým nejrozsáhlejším počinem je areál bývalé keramičky v Kravsku u Znojma.
Právě ve Znojmě má ORA jeden ze svých ateliérů. Vzhledem ke své poloze na jihu Moravy se už několikrát dostalo k práci na vinařstvích. Posledně to byly třeba interiéry winebaru Reisten v Pavlově. Teď se do jejich portfolia přidalo Vinařství Kolby v Pouzdřanech, opět blízko přehrady Nové Mlýny.

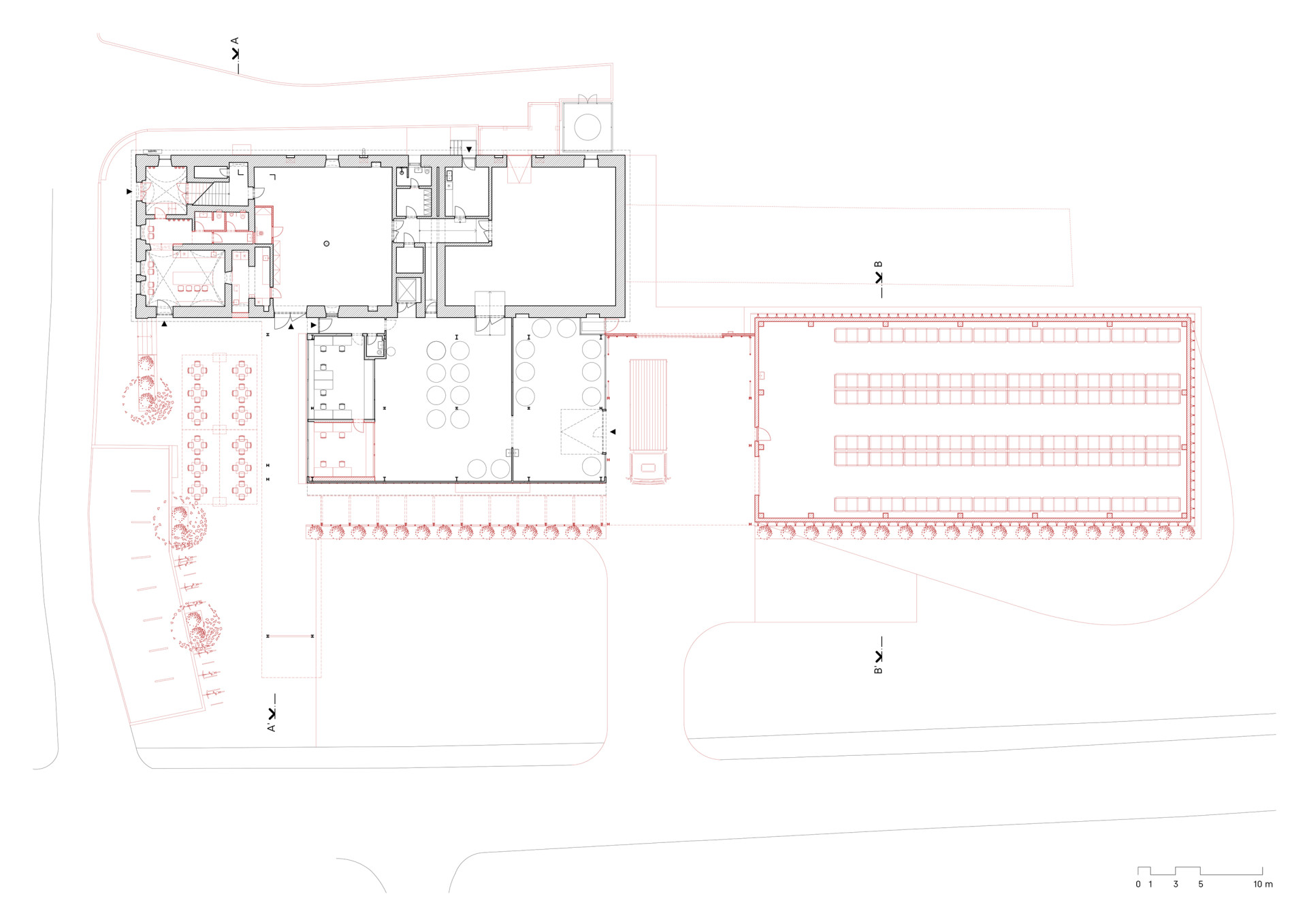
Studiu ORA je vlastní rekonstruovat, novostavbám se příliš nevěnuje. V Pouzdřanech se však od základů stavět ani nemohlo, vinařský areál tady už existoval a bourat se nesměl. „Protože celý areál nedávno prošel transformací, nebylo možné do stávajících objektů příliš zasahovat, nebo je dokonce demolovat,“ vysvětlují architekti.
Předmětem jejich zásahu byla historická budova vinařství s rozlehlými sklepy a objekt z desátých let. Přidat měli suchý sklad a vybudovat wine bar, tedy posezení pro návštěvníky. Pro první navrhli novostavbu, druhé umístili pod klenby starého vinařství. Je tady masivní dubový stůl pro degustaci, vínem je inspirovaná také autorsky navržená podlaha – jsou na ní vlnky ve vínové barvě.

Vývojových etap bylo na místě příliš mnoho na to, aby společně harmonicky korespondovaly. Architekti se proto rozhodli pro dva dominantní výrazy. První patří historickému domu, který je nově omítnutý. Druhé se nese ve znamení dřeva, předsazená fasáda z akátových latí sjednocuje starší přístavbu i nový sklad na víno.
„Fasáda má dvě úrovně – vnější řídká treláž, která slouží jako opora pro popínavé rostliny, a vnitřní husté laťování, které se místy líně sveze, aby zformovalo lavici. V místě, kde se vrstvy překrývají, akátová treláž degustační lavici stíní,“ popisují to architekti ve své autorské zprávě.
Více k tématu
Sklad na víno je částečně zapuštěný do terénu, opticky ho zmenšuje kopec při jeho straně. Jedná se o zeminu, která se při stavbě z místa vybrala. Teď tam vznikl příjemný palouček, na kterém roste tráva a u fasády popínavky.
Kultivovaných vinařských areálů je na jižní Moravě už řada, některá jsou až spektakulárně velkolepá, jako třeba vinařství Lahofer. Vinařství Kolby patří k těm umírněnějším, využívající původní prostory, u kterých šlo hlavně o to nastavit lepší provozní vazby a zatraktivnit je pro návštěvníky. Z tohoto důvodu dostalo Vinařství v Pouzdřanech novou tvář směrem do centra obce. Lidi tady vítá vydlážděný předprostor s pergolou – taky původní jen nově opláštěnou dřevem – kde se dá parkovat i pořádat akce.
- Autoři: Jan Veisser, Jan Hora, Barbora Hora
- Ateliér: ORA
- Spolupráce: Maroš Drobňák, Klára Mačková
- Země: Česká republika
- Město: Pouzdřany
- Adresa:: Česká 51, 691 26 Pouzdřany
- Projekt: 2021
- Realizace: 2023
- Investor: Kolby a. s.
- Fotograf: BoysPlayNice
- Krajinný architekt: Atelier Partero
- Projekce: Projekce 21
- Realizace stavby: PS Brno
- Projektové řízení: K4