
Autenticky ošuntělé. Kocanda Kravsko má nové pokoje pro hosty, v nichž se staré potkává s novým
Kocanda Kravsko na Znojemsku se rekonstruuje po etapách. Začalo se bývalým hostincem, teď se k životu probudilo několik industriálních objektů bývalé keramičky. Vznikly tu nové pokoje a restaurace, v nichž najdete formy na květináče a další pozůstatky původní výroby. Při letním putování po jižní Moravě si prohlédněte tuhle směs historie a současnosti, rekreace a industriálu.
Adéla Vaculíková , 21. 6. 2023
Když začali architekti a architekty ze studia ORA před lety navrhovat rekonstrukci Kocandy Kravsko, říkali, že se chtěli vyhnou efektu přílišné novosti. Fasády bývalého zájezdního hostince vyspravili lokálně, výsledek je tak zábavně flekatý a zároveň působí zcela přirozeně. Hostinec je totiž stará, původně barokní, stavba, ke které nedokonalosti jako projevy času patří.
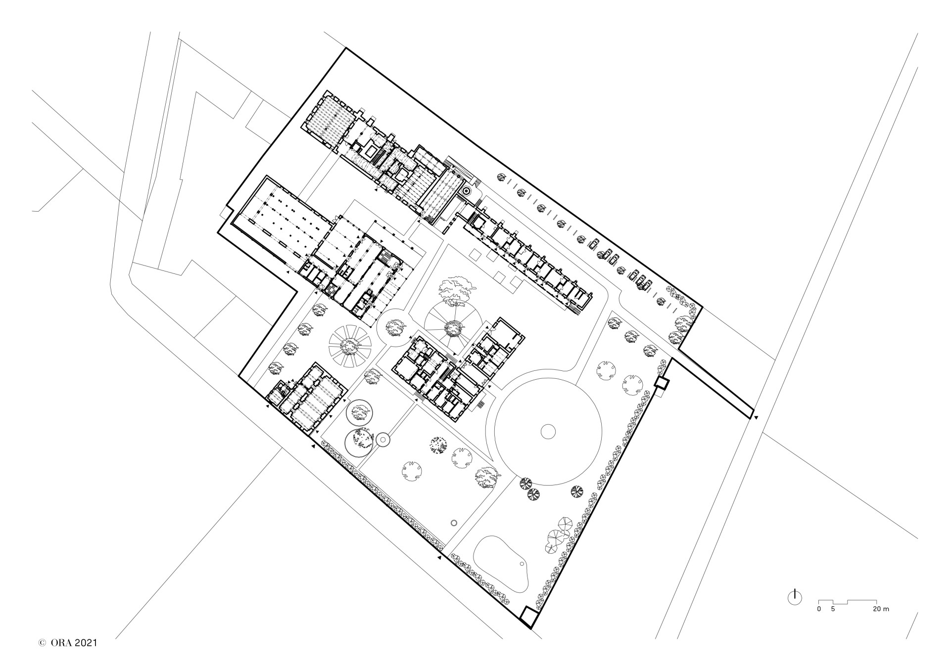
Na Kocandě ovšem není pouze hostinec, v 19. století se jeho okolí zaplnilo industriálními stavbami. Vznikla zde keramička s vysokým komínem jako dominantou – tou zůstal dodnes, nově ho lemuje výrazná rampa z probarveného betonu, která slouží jako hlavni vstup do areálu. „Na komíně je umístěný neon, který ho korunuje a přirozeně přitahuje návštěvníka k sobě,“ popisují architekti.
Více k tématu
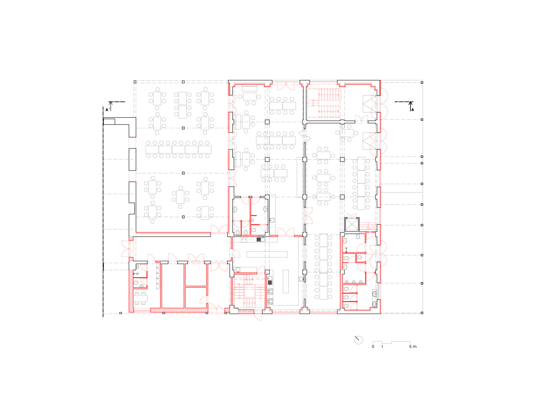
V areálu Kocandy Kravsko se můžete ubytovat nebo uspořádat společenskou akci. Kapacity původního barokního hostince nyní rozšířila konverze tří průmyslových objektů keramičky. Hned vedle komína, v prostoru bývalé míchárny, vznikla recepce a zázemí pro zaměstnance, v bývalé sádrovně jsou hostinské pokoje a třídírna keramických výrobků je restaurací a společenským sálem. Posedět se zde dá pod oprýskanou ocelovou konstrukcí, kterou vyplnily nové skleněné tabule. Zachování nedokonalostí jako stop minulého provozu je na Kocandě všudypřítomné.
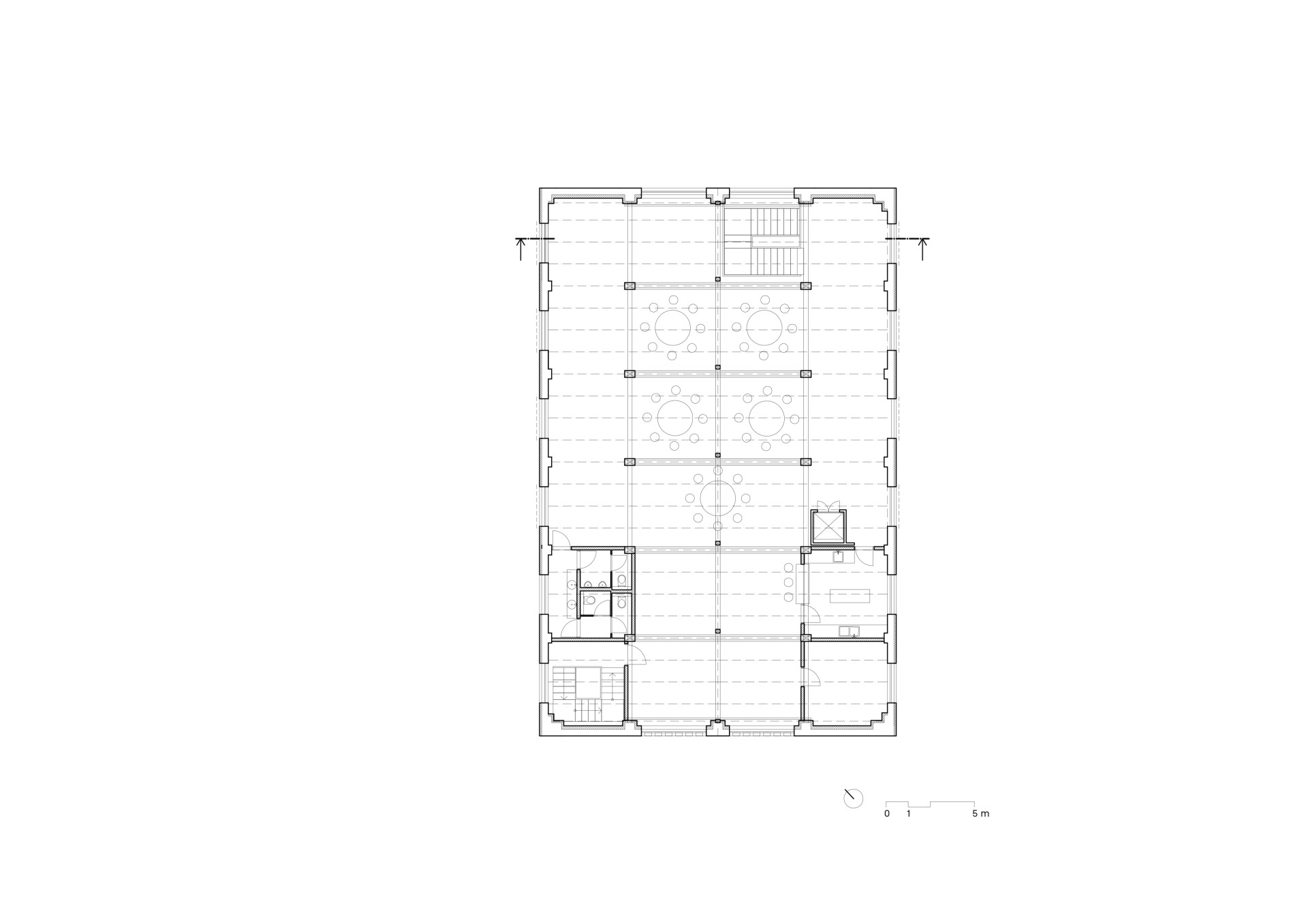
Přístup studia ORA je charakteristický svým důrazem na autenticitu. Manifestem jejich filozofie je dům v Jevíčku na Moravě, novostavba vestavěná do zchátralé ruiny. Podobné vyznění má na Kocandě bývalá sádrovna – podlouhlá stavba, která je vlivem zemních tlaků celá zvlněná. Kvůli tomu musela být zpevněna opěrnými sloupy. Uvnitř jsou hostinské pokoje, zůstaly v nich ale i sádrové formy na výrobu keramiky.

Aby se při stavbě nemuselo zasahovat do konstrukcí, zpřístupňuje patro nová dřevěná pavlač. Ta v přízemí vytvořila před pokoji kryté zádveří, útulnou clonu z latí, která je odděluje od zahrady. „Usilovali jsme o maximální zachování autenticity stavby, což nás v druhém podlaží donutilo stavbu izolovat zevnitř. Díky tomu zůstala na místě původní dřevěná opršelá fasáda, která je stále zdravá. Ve výrazu se tudíž dům příliš nezměnil,“ dodávají architekti.

V další etapě rekonstrukce mají přibýt další ubytovací kapacity. Architekti z ORA už pracují na projektu. A další fáze budou následovat - konverze čeká ještě přibližně polovinu industriálních budov.
- Autoři: Barbora Hora, Jan Hora, Jan Veisser, Maroš Drobňák
- Ateliér: ORA
- Země: Česká republika
- Projekt: 2019-2022
- Realizace: 2022
- Plocha pozemku: 6850 m²
- Adresa:: Umístění projektu Kravsko 45, 671 51 Kravsko
- Klient: ITVV spol. s r.o.
- Krajinné úpravy: Klára Jordánová