Architektura
/
občanské stavby
Školka s lentilkami
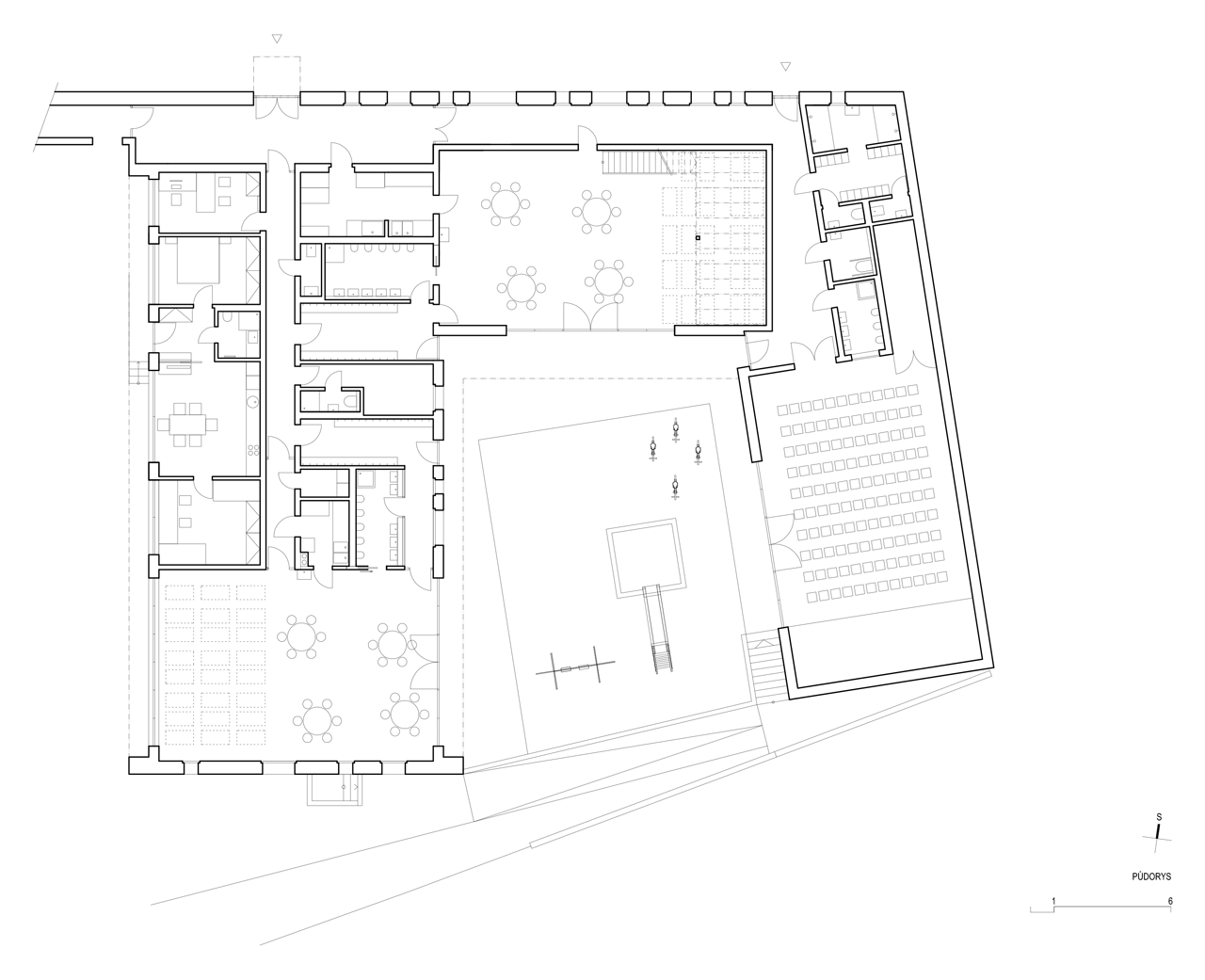
Nový pavilon školky v Klecanech už z dálky poutá proměnlivou výškou střech a modřínovým fasádním obkladem, z něhož tu a tam prosvítají barevné fólie různě velkých kruhových oken. Hravý vzhled doplňuje půdorys ve tvaru písmene „U“, který dětem umožňuje nerušenou zábavu a zároveň nabízí výhled na jih, do přírody.
Více k tématu
- Autoři: Martin Kožnar, Jiří Bíza, Lukáš Ballek
- Ateliér: Atelier25, ASLB
- Spolupráce: Kateřina Margoldová
- Země: Česká republika
- Realizace: 2014
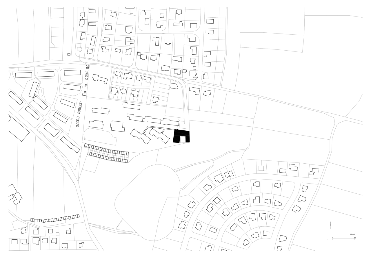
- Město: Klecany
- Ulice, číslo: Sídliště 375
- PSČ: 250 67
- Datum projektu: 2012
- Realizace: 2014
- Zastavěná plocha: 600.00m2