Školka z doby monarchie. Starodávný dům je přestavěný a dál slouží dětem
V obci Unterach na břehu malebného jezera Attersee v Horním Rakousku stojí jedna z nejstarších mateřských škol v Rakousku – Uhersku. Založena byla už na konci 19. století a na svých obrazech ji zachytil secesní malíř Gustav Klimt. Nyní prošla citlivou rekonstrukcí. Školka je tu dál.
Eva Klapka Koutová , 25. 3. 2024
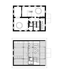
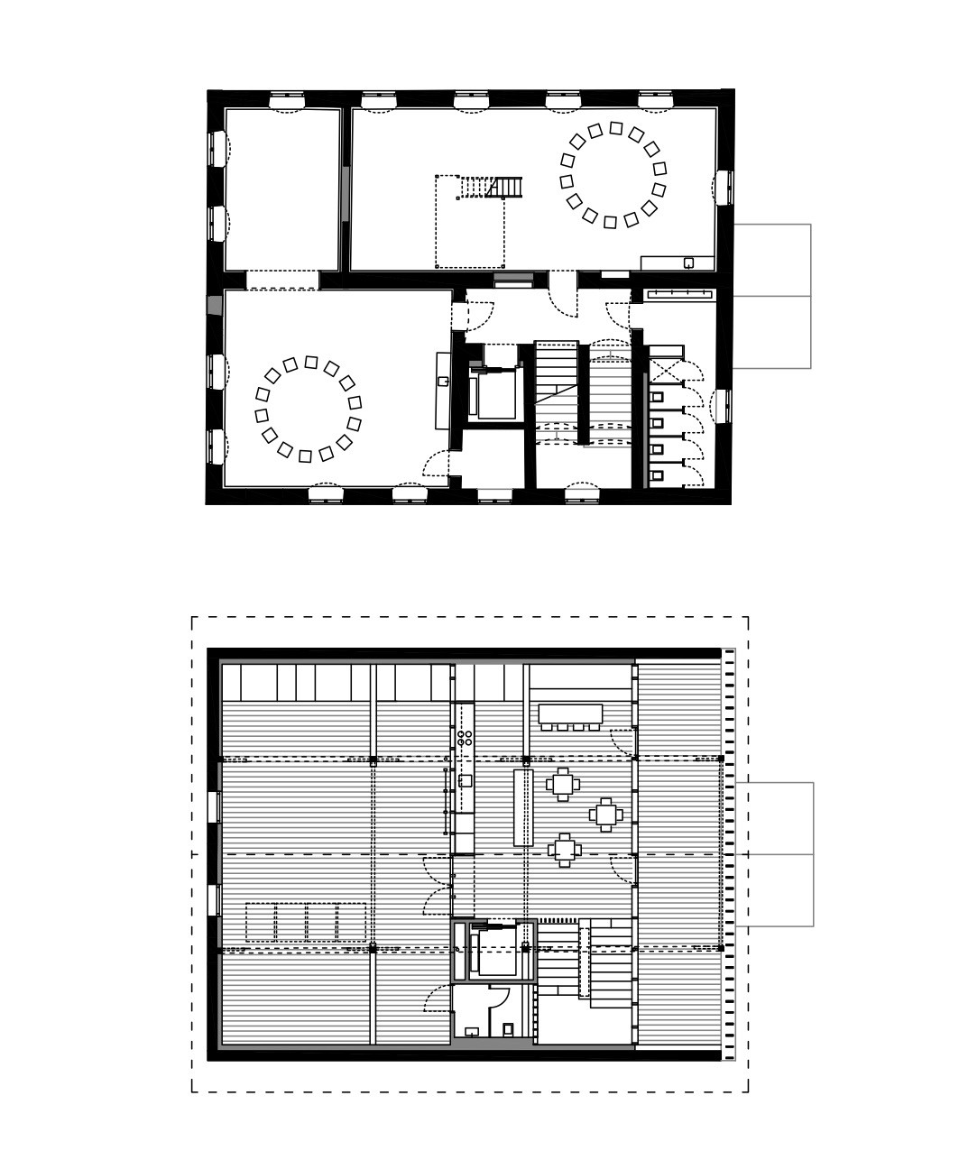
Památnou budovu více než stoleté mateřské školy bylo nutné pečlivě zrenovovat, aby si zachovala historickou hodnotu a zároveň dál mohla sloužit místní komunitě. Obec nicméně preferovala rekonstrukci původního objektu před výstavbou zcela nových prostor na zelené louce. Studiu Hohengasser Wirnsberger se povedlo navrhnout rekonstrukci, která citlivě zachovává budovu, zároveň ale umožní, aby fungovala podle současných standardů.
Více k tématu
Zásadním krokem byla výstavba nové střechy. Tím se podařilo nejen zvýšit prostorovou kapacitu, ale také vytvořit víceúčelové prostory, které lépe odpovídají současným potřebám vzdělávací instituce. Vysoké stropy dodaly místnostem vzdušnost a velkorysost.
V budově je výrazně přítomno světlé dřevo, které přispívá k atmosféře klidu a čistoty, zejména v podkrovních prostorech. Tento dojem je ještě umocněn drobným dětským nábytkem, který ladí s obkladovým dřevem a dává interiéru jednotný vzhled. Nově vytvořený prostor pro setkávání a odpočinek pod západním proskleným štítem zajišťuje bohatý přísun denního světla. Díky proskleným stěnám je prosvětleno také celé podkroví. K harmonii celého místa přispívá i minimalistické vybavení.

Sto let školky v Unterachu
Unterach je malá obec na jižním konci jezera Attersee. Je neobyčejně malebná, což lákalo mnoho slavných hostů, kteří do zdejších domů a vil jezdili na letní byt. Patřili mezi ně umělci, spisovatelé a významné osobnosti z celého světa.
V roce 1896–97 zdejší farář přišel s myšlenkou postavit v obci školku, která by přispěla ke vzdělávání a lepší budoucnosti zdejších dětí. Pokrokoví hosté i místní myšlenku podpořili. Instituce byla navíc spojená i s "řemeslnou školou", která měla poskytovat dětem praktické dovednosti a přípravu na zaměstnání.
Budova byla dokončena již koncem roku 1898 jako dvoupodlažní stavba nedaleko kostela. Stala se tak jednou z prvních institucí svého druhu v celé rakousko-uherské monarchii. Její význam však nekončil pouze v regionálním rámci – brzy se stala symbolem moderního vzdělávání a sociální péče. V letech 1915-1917 ji maloval zdejší host, secesní malíř Gustav Klimt.

Jak se však blížil konec 20. století, bylo nutné přistoupit k opravám. Charita, která byla za budovu do té doby odpovědná, předala správu objektu obci. Ta se naštěstí postarala o adekvátní péči. Poslední renovace budovy provedená podle projektu ateliéru Hohengasser Wirnsberger přinesla moderní a praktické prostory pro děti a zachovala historické dědictví pro budoucí generace. Spojila se tu minulost s přítomností a budova i nadále hraje významnou roli v životě obce.
- Ateliér: Hohengasser Wirnsberger, dunkelschwarz
- Autoři: Sonja Hohengasser, Jürgen P. Wirnsberger
- Země: Rakousko
- Město: Unterach am Attersee
- Adresa: Klostergasse 7a 14, Unterach am Attersee 48600
- Investor: Obec Unterach am Attersee
- Užitná plocha: 440 m²
- Realizace: 2017
- Fotograf: Volker Wortmeyer