Architektura / rodinné domy

Současná reinterpretace klasiky

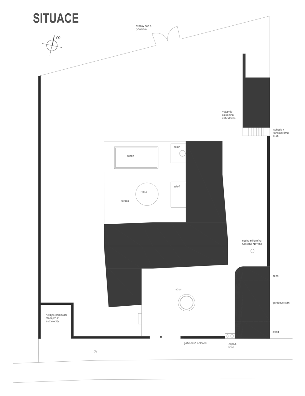
Jak k tomu uvádí sám autor, architekt Zdeněk Balík: „historii nemá smysl kopírovat, ale ani popírat.“ Obzvlášť když stavíte v krajině, která byla osídlena před několika tisíci lety a samotný pozemek vychází z gotické parcelace. Výsledkem je tak klasický vesnický dům, zároveň odkazující k současné architektuře.

ZETTE atelier , 6. 10. 2016

  • Ateliér: ZETTE atelier
  • Autoři: Zdeněk Balík
  • Země: Česká republika
  • Město: Mikulovice
  • PSČ: 530 02
  • Datum projektu: 2007
  • Realizace: 2011
  • Užitná plocha: 380.00m<sup>2</sup>
  • Zastavěná plocha: 320.00m<sup>2</sup>
  • Plocha pozemku: 3 000.00m<sup>2</sup>
  • autor: ZETTE atelier *
  • publikováno: * 6. 10. 2016
  • zdroj: * Autorská zpráva

Klíčová slova:

ZETTE atelier vesnice

Mohlo by vás zajímat

Generální partner
Hlavní partneři