Soukromí v centru města. Ve dvoře měšťanského domu na Moravě postavili nový rodinný dům
Symbióza starého s novým a podtržení historických kvalit výjimečného místa. Právě toho se snažil docílit ateliér IGLOO ARCHITEKTI svým návrhem rodinného domu, který vyrostl přímo ve dvoře památkově chráněné budovy v historickém jádru Nového Města na Moravě.
EARCH.CZ , 16. 3. 2022
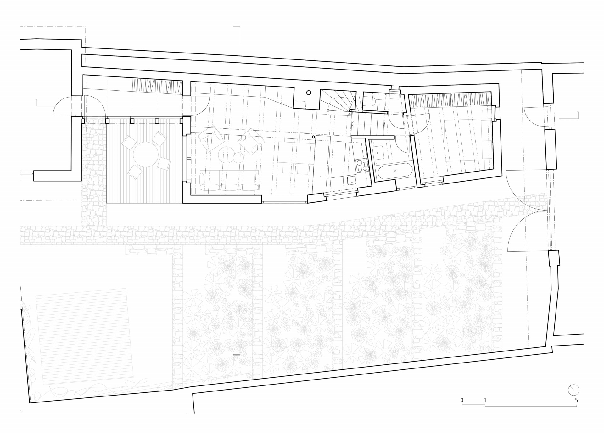
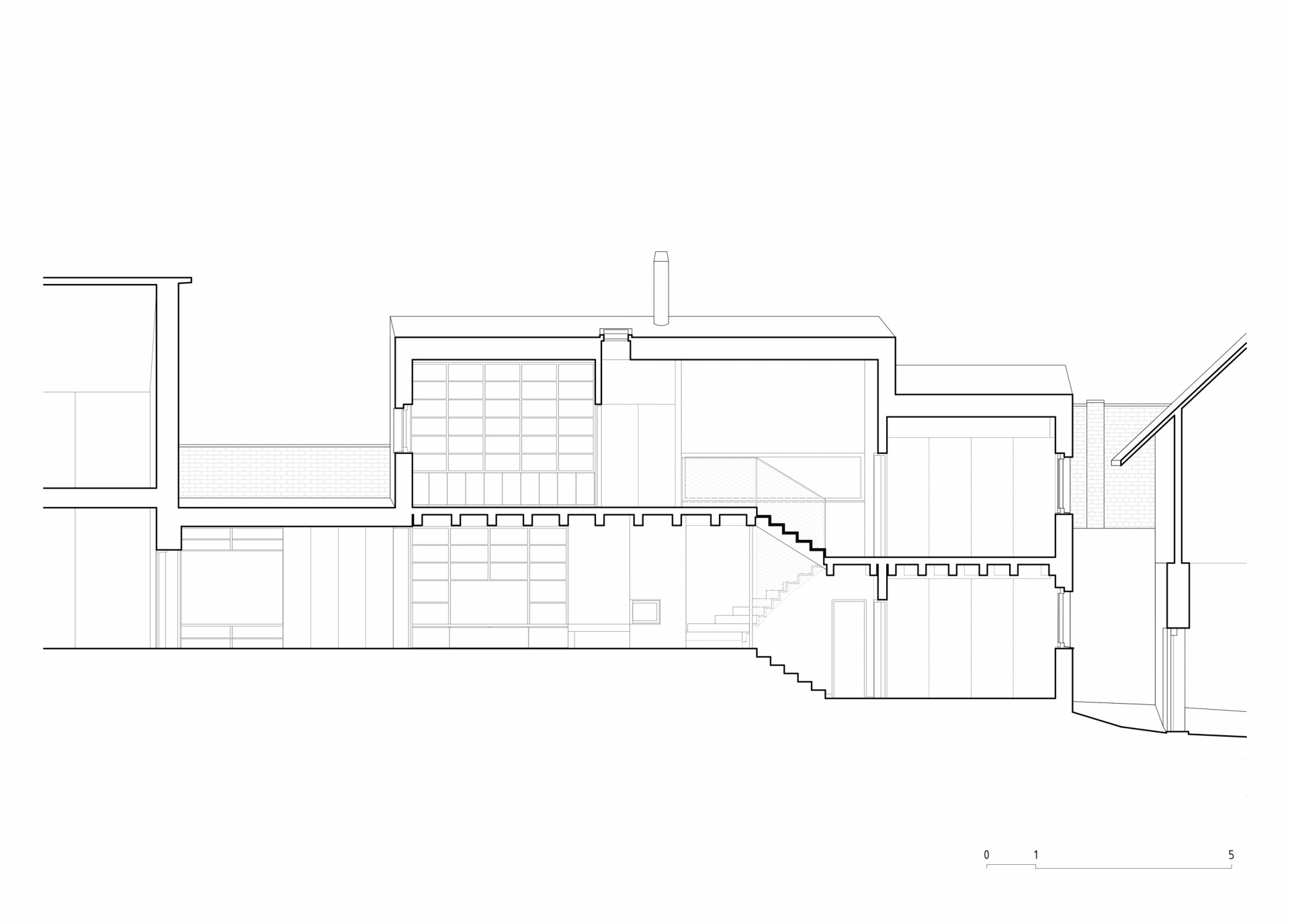
Ateliér IGLOO ARCHITEKTI oslovil před pár lety investor s poměrně neobvyklým zadáním – postavit přístavbu rodinného ve dvoře historického měšťanského domu, který se nachází přímo na Vratislavově náměstí v centru Nového Města na Moravě. Jak bývá v této části města obvyklé, jde o dlouhou a úzkou parcelu vymezenou stavbami a vysokými zdmi.
„Kvalitou místa je zachovalá historická struktura zástavby s původními stavbami a architektonickými detaily. Hodnotné jsou taktéž průhledy na okolní domy, kostelní věž, vrstvení střech a zdí,“ vyjmenovávají architekti hlavní přednosti místa, které svým návrhem chtěli dále posílit. Už v zadání se totiž počítalo se „zachováním a posílením ducha místa historické stavby“ i „struktury zástavby města“.
Více k tématu
Novostavbu architekti umístili podél vysoké zdi, tak aby zachovali logické návaznosti pozemku – ke zdem se ostatně přimyká většina hospodářských staveb také na sousedních parcelách. „Návrh vychází z geometrie pozemku, jeho orientace vůči světovým stranám a také kontextu zástavby vnitřních dvorů v dané lokalitě. Proto byla pro stavbu zvolena poloha podél severovýchodní hraniční zdi v ‚proluce‘ mezi stávajícím objektem původních chlévů a stodolou na jihovýchodní straně parcely v místě, které již v minulosti bylo zastavěno hospodářskými objekty,“ upřesňují autoři.

Vzhledem ke svažitosti pozemku je stavba členěna do několika výškových úrovní, což napomáhá jejímu přirozenějšímu zapadnutí do prostředí historické zástavby. Pro fasádu domu využili architekti bílou hlazenou omítku – celkově se pracovalo výhradně s tradičními přírodními materiály (kámen, dřevo, ocel).
„Okenní otvory jsou s rozvahou navrženy pouze v polohách, kde jsou důležité a opodstatněné. Jedná se o kompozici především čtvercových oken s různou pozicí v ostění tak, aby různorodost podpořila dojem vrstevnatosti a tvarové i konstrukční rozmanitosti místních dvorových staveb a stavbiček,“ vysvětlují svůj další záměr architekti.

Také díky pojetí oken působí interiér domu vzdušně a světle, na jeho útulnosti pak přidávají zejména dřevěné trámové stropy, které se do historického prostředí malého města dobře hodí
- Ateliér: IGLOO ARCHITEKTI
- Autoři: Jan Pačka, Igor Šimon
- Spolupráce: Radek Fila
- Země: Česká republika
- Město: Nové Město na Moravě
- Projekt: 2016-2017
- Realizace: 2021
- Užitná plocha: 122 m²
- Zastavěná plocha: 80 m²
- Hrubá podlahová plocha: 149 m²
- Fotograf: Filip Šlapal