Studio slavného Stevena Holla zvítězilo ve velké soutěži na novou koncertní síň v Ostravě
Ostravský běh na dlouhou trať je u konce – po mnoha letech úsilí získala slezská metropole konečně nový návrh moderní koncertní síně. Za jejím návrhem stojí renomované americké studio Steven Holl Architects + Architecture Acts, které zvítězilo v mezinárodní architektonické soutěži, již město vyhlásilo v srpnu loňského roku. Nová koncertní síň doplní akusticky dnes již nevyhovující Dům Kultury města Ostravy, který vznikl mezi lety 1956-1961.
EARCH.CZ , 5. 7. 2019
Hledání je u konce
O koncertní síň, jež by poskytovala moderní zázemí pro místní Janáčkovu filharmonii a dostatečné množství diváků, usiluje Ostrava již řadu let, během nichž vyhlásila několik architektonických soutěží. Zlomový okamžik přišel v loňském srpnu, kdy město vyhlásilo v řadě již pátou architektonickou soutěž, významem a rozsahem srovnatelnou se soutěží ze začátku minulého století, která se zabývala výstavbou Nové radnice. A bezmála po roce již zná Ostrava výsledky. Ze čtyřech finálových návrhů vypracovaných významnými zahraničními studii odborná porota vybrala projekt amerického studia Steven Holl Architects + Architecture Acts.
„Pro Ostravu je skvělou zprávou, že autorem návrhu je právě studio Steven Holl Architects plus Architecture Acts, které má na svém kontě řadu realizací špičkové světové úrovně. Právě americkému studiu se nejlépe podařilo propojit stávající kulturní dům s novou koncertní halou,“ komentuje výsledek soutěže ostravský primátor Tomáš Macura.
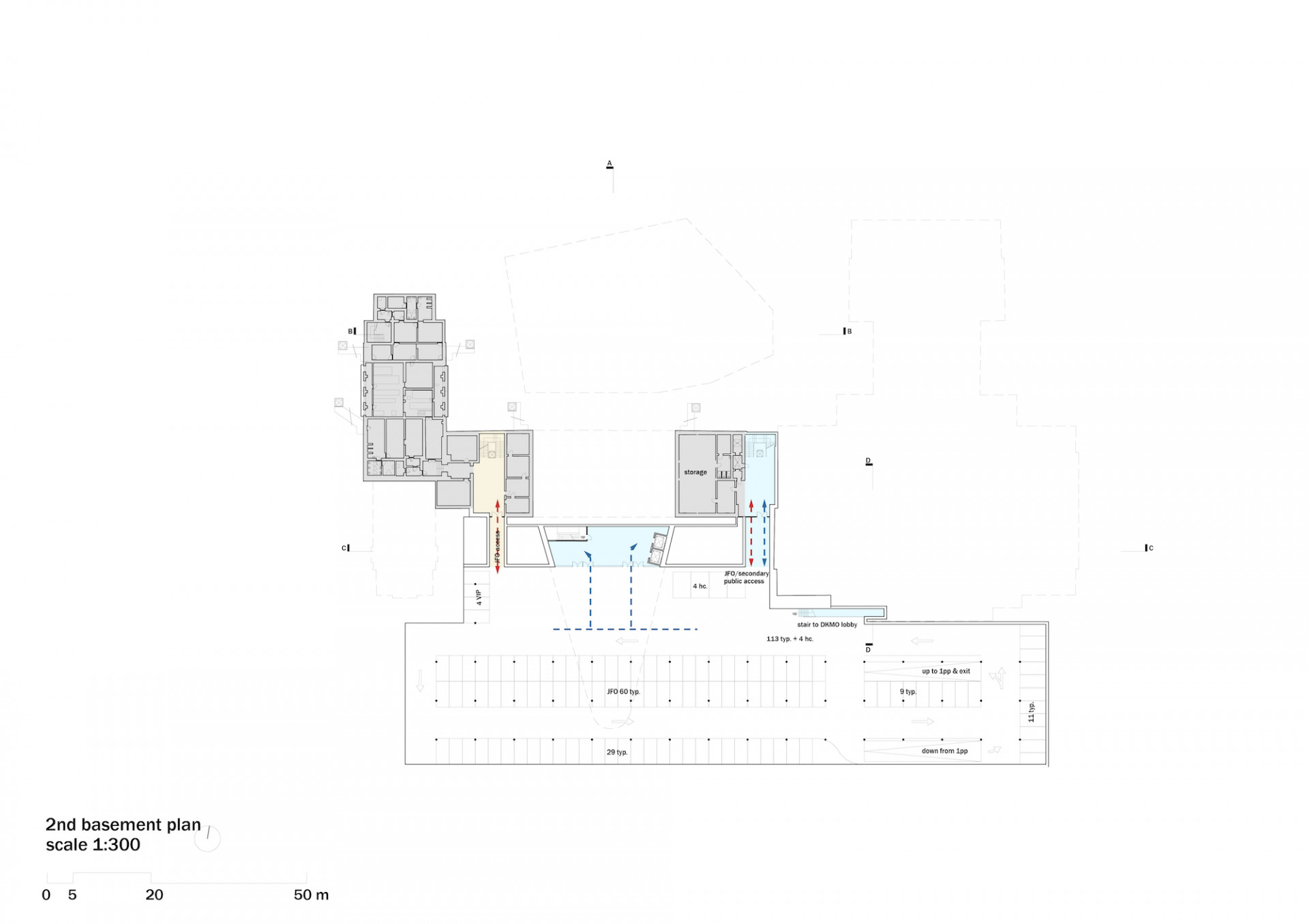
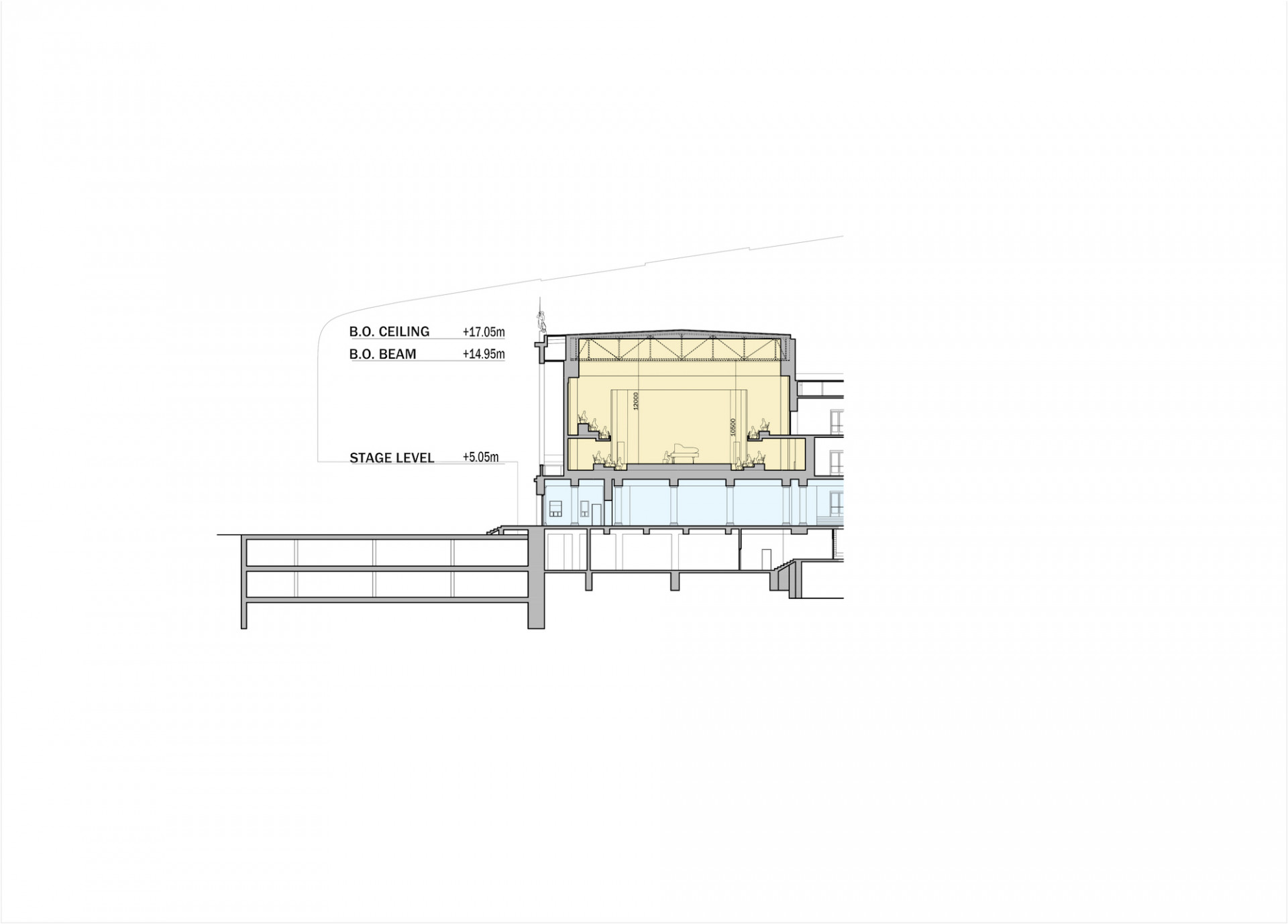
Studio původem z USA navrhlo organicky tvarovaný objekt, který se směrem k ulici 28. října výrazně zužuje a „propichuje“ stávající Dům Kultury města Ostravy. Masivní hmotu pak architekti rozbili velkolplošným prosklením vizuálně propojujícím objekt s ulicí i přilehlými sady Dr. Milady Horákové. Stejně materiálově čistě jako exteriér působí také vnitřní prostory objektu, přičemž hlavní sál s kapacitou 1100-1300 diváků je navržen jako aréna s jevištěm obklopeným diváckými sedačkami ze všech stran.
Více k tématu

Vítězné studio Steven Holl Architects + Architecture Acts bylo jedním ze tří vyzvaných ateliérů – vedle něj město oslovilo také dánské studio Henning Larsen Architects stojící za návrhem koncertní síně v Reykjavíku a polské Studio Koinor, v jehož portfoliu najdeme například koncertní síň z nedalekých Katovic. Zmíněnou trojici doplnily další tři zahraniční ateliéry – Architecture Studio z Paříže, Nieto Sobejano Arquitectos z Berlína a Van Dongen-Koschuch Architects and Planners z Amsterdamu –, které soutěžní porota vybrala z celkem 31 přihlášených účastníků. Jednou z mála podmínek kladených na zájemce o účast v soutěži byla předchozí zkušenost s projektem podobného charakteru a rozměrů, což značně limitovalo česká studia. Poslední plnohodnotnou koncertní halou postavenou v českém prostředí bylo totiž Rudolfinum pocházející již z konce 19. století.
Jaké budou další kroky?
Ještě tento podzim by město chtělo uzavřít s vítězem soutěže závaznou smlouvu, přičemž samotná výstavba by měla být zahájena v roce 2022. Veřejnosti by se pak koncertní síň měla slavnostně otevřít o dva roky později, tedy roku 2024. Na září tohoto roku Ostrava plánuje uspořádat výstavu čtyř finálových projektů, které postoupily do druhého kola soutěže.
Odhadovaný rozpočet nové koncertní síně spojené s rekonstrukcí stávajícího Domu Kultury města Ostravy je 1,5 miliardy korun. K financování příprav a realizace město zřídilo speciální fond, do nějž prozatím vložilo 250 milionů korun. Podporu projektu přislíbil moravskoslezský kraj i český stát zastoupený Ministerstvem kultury.

