Architektura / rodinné domy

Tajemná přístavba

TAKA architects si pro tentokrát vzali na starost pouze malý objekt. Architektura totiž není velká nebo malá, je pouze kvalitní a nepodařená. O tom, do které kategorie spadá realizace tohoto nevelkého dublinského dvorku, ovšem máme naprosto jasno.

EARCH.CZ , 18. 7. 2017

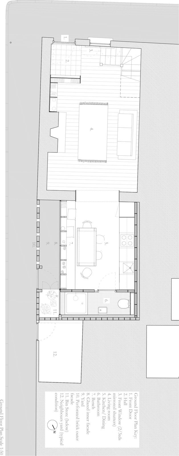
Malý dvorek uprostřed města prošel zásadní proměnou. Přiléhá k typickému dvoupodlažnímu domku a nachází se na úzké parcele. Původní přístavba vyrostla kolem malého introvertního dvorečku a měla tvar písmene L. Architekti se s novým rozvržením zaměřili především na využití konce terasy. Museli vyjednat dobrý kompromis mezi pohledem na ulici a přísunem světla, a aniž by to v této rušné lokalitě bylo na úkor soukromí.

Konstrukce objektu je velice jednoduchá. Tvoří ji pultová střecha, jejíž krokve jsou položeny na nosník podpíraný vertikálními dřevěnými fošnami. Za nimi už jsou skleněné tabule, které tvoří vysokou prosklenou fasádu umožňující co největší osvětlení vnitřních prostor.

Tenký dvorek je od ulice oddělen cihlovou zdí. V úrovní očí je plná, tudíž zamezuje pohledům zvenčí. V dolní části je ovšem perforovaná, propouští světlo, dovoluje cirkulaci vzduchu a na dvorku se díky tomu nedrží vlhkost.

Architekti trochu zasáhli i do podoby domu. Některé okenice vyměnili za zrcadla. Budovou se tak nadále šíří myšlenka dialogu mezi světlem a soukromím.

  • Ateliér: TAKA
  • Země: Irsko
  • Realizace: 2012
  • Město: Dublin
  • Ulice, číslo: Magennis Square
  • Realizace: 2012
  • Užitná plocha: 51.00m2
  • Materiál: dřevo

Mohlo by vás zajímat

Generální partner
Hlavní partneři