
Nájemní bydlení na Barrandově. V domě se zelení a citlivým měřítkem
Na pozemku v Podbělové ulici mohl stát vyšší dům, než je v okolí obvyklé. Investor se ale rozhodl jinak – nechtěl, aby novostavba nad stávající zástavbou vyčnívala. Vznikl proto třípodlažní dům s devíti nájemními byty.
EARCH.CZ , 3. 9. 2025 / Advertorial
Podbělová ulice na pražském Barrandově má nového souseda. Místo starého rodinného domu, který už nešel zachránit, tady vyrostl bytový dům s devíti nájemními byty. Nepůsobí ale jako vetřelec – investor se záměrně vyhnul možnosti vytěžit maximum z regulativů a spolu s architekty zvolil střídmou velikost a formu, která respektuje okolní měřítko.
„Investor si přál dům, který by zapadl a co nejvíce se přizpůsobil okolní zástavbě. Odmítl maximalistickou čtyřpodlažní variantu, kterou dovolovaly regulativy stabilizovaného území, protože se příliš tyčila nad okolí,“ říkají autoři stavby.
Cihla, beton a zeleň
Dům těží z kombinace tradičního a současného. Má kompaktní půdorys, nevypadá ale jako obyčejná kostka, jeho hmota přívětivě graduje. Až nad okna prvního patra vystupuje obklad z lícového zdiva (jedná se o produkt Terca Forum Prata od wienerberger). Nad ním pokračuje světlá omítka ve vertikálním rastru. Vše dokončuje plochá střecha s výrazným přesahem na jedné straně, stíní a kryje balkony zavěšené na boční fasádě.

Konstrukci domu tvoří cihly (Porotherm od wienerberger) a monolitické betony. Právě ty zůstaly místy přiznané, třeba na stropech ve společných chodbách. Beton je ale k vidění už venku před domem, jsou z něj zídky, opěrné stěny, schodiště. Interiér a exteriér je díky tomuto materiálu esteticky provázaný.
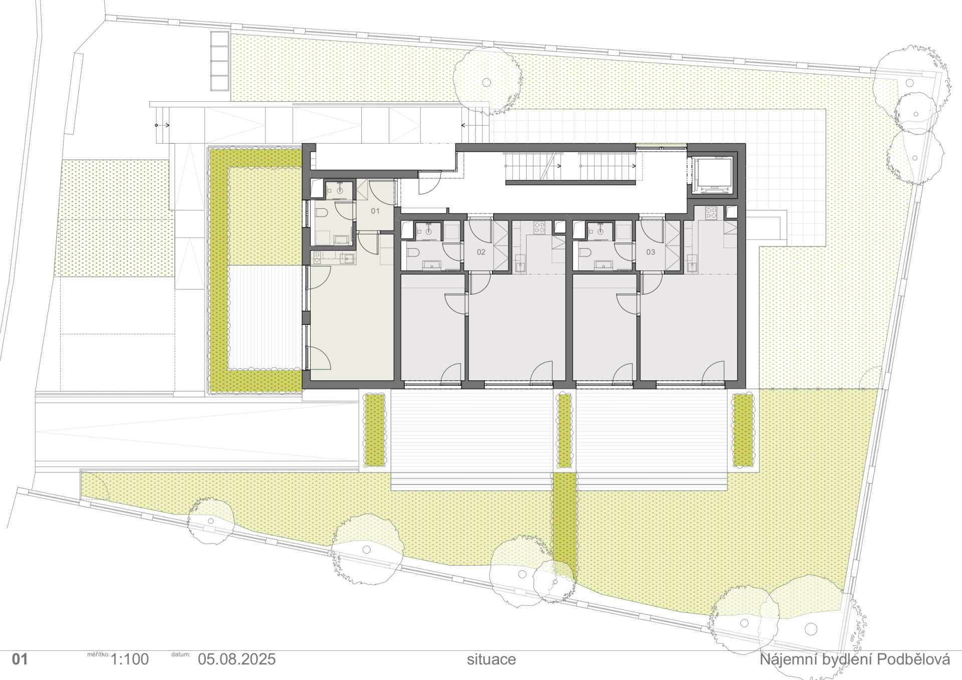
A velkou devizou celé realizace je zeleň, obklopuje takřka celý dům. Tráva prorůstá dokonce na venkovních parkovacích stáních. Původně na místě stál rodinný dům se zahradou, současný bytový dům má zahrádky taky – patří konkrétně ke třem bytům na přízemí. Největší z nich má skoro 100 metrů čtverečních. Do zahrádek se dostává rovnou z obývacích pokojů, na které navazují ještě dřevěné terasy.

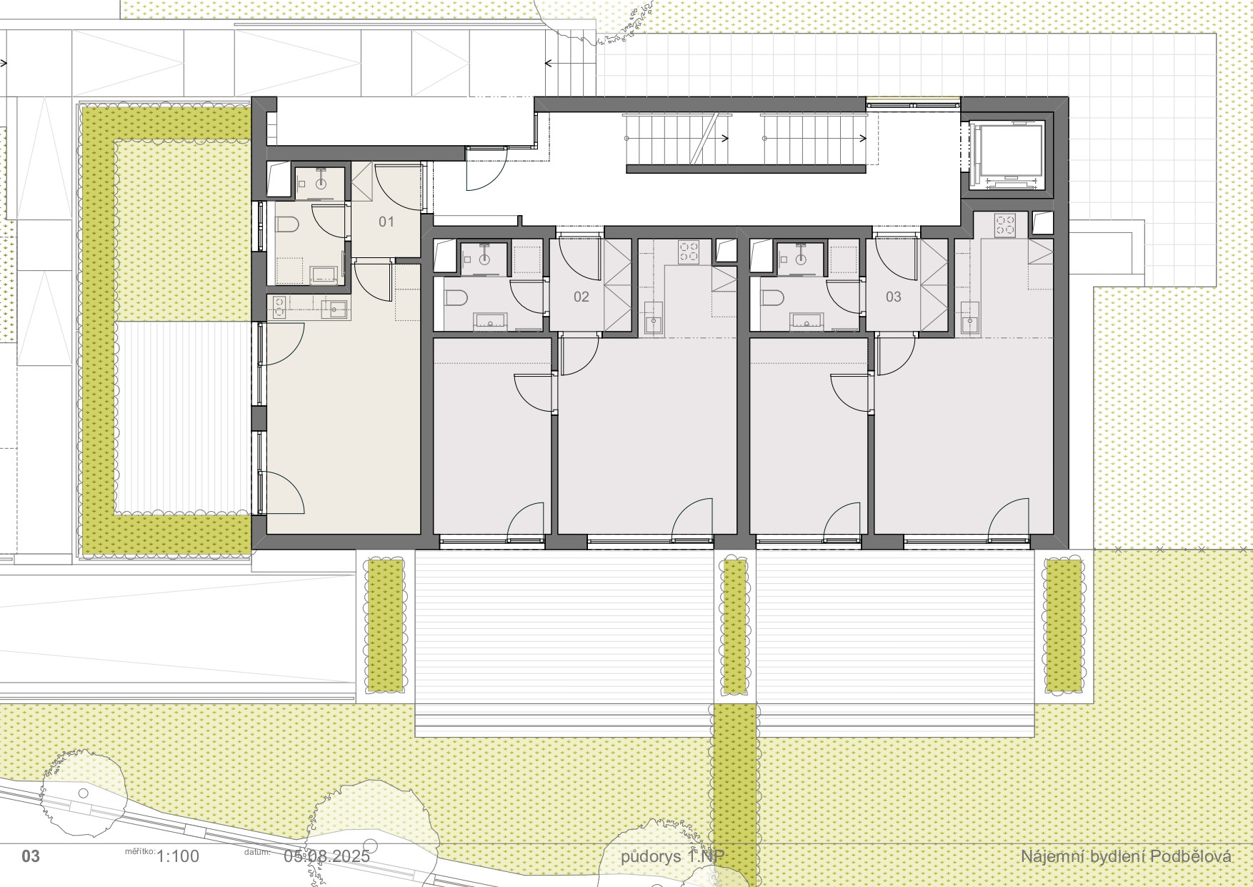
Devět bytů pro pohodlné bydlení
Bytový dům má tři nadzemní podlaží, na každém se nachází po třech bytech – vždy jedna garsonka a dvě 2+kk. Garsonky mají výměru okolo 31 m², 2+kk 48 m², to jsou příjemné velikosti, navíc podpořené účelnými dispozicemi. Například i nejmenší garsonky mají oddělené předsíně s dostatkem úložného prostoru. A uvnitř bude také přívětivé klima, všechny byty jsou napojené na vlastní tepelné čerpadlo vzduch–vzduch, rekuperaci a klimatizaci.

Byty, které nemají své vlastní zahrádky, mají vlastní balkon – zavěšené jsou jen na jižní fasádě domu a z ulice na ně není přímý výhled. To je příjemné jak pro nájemníky a nájemnice, tak pro vzhled domu. Zavěšené balkony neruší klidně ztvárněnou fasádu směřující k ulici.
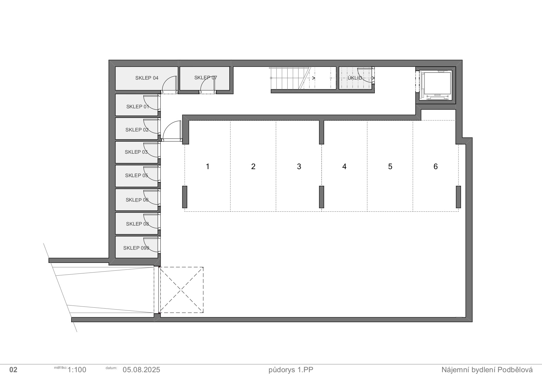
Dům má také vlastní podzemní garáž, automobily do ní zajíždějí po rampě na okraji pozemku. K dispozici jsou také sklepní kóje – ke každému bytu připadá vlastní.

Spolupráce, která se vyplatila
Byty v novostavbě pronajímá soukromý investor – v realitách zběhlý a podle architektů také uvědomělý. „Investor, jakého by si přál každý architekt a projektant, dokázal citlivě vyvážit vlastní požadavky a dlouhodobé zkušenosti s nájemním bydlením s doporučeními architekta i projektanta. Byla to třístranná obohacující spolupráce. Investor strávil na stavbě takřka každý den a přesto, že nemá stavební vzdělání, dokázal stavbu obohatit svými zkušenostmi, entuziasmem a nadšením,“ hodnotí autoři domu spolupráci. Podbělová na Barrandově z ní získala solidní bytový dům, podle architektů je navíc nadstandardně řemeslně provedený. „Generální zhotovitel, firma HOBST, spolu se stavebním dozorem, svým otevřeným přístupem a zkušenostmi posunuli dům do kvality, kterou jsme v projektu ani nepředpokládali,“ dodávají autoři na závěr.
Více k tématu
Produkty wienerberger
Na zděné konstrukce domu byly použity produkty Porotherm. Konkrétně Porotherm 24 Profi, Porotherm 30 AKU Z, Porotherm 25 AKU Z a Porotherm KP 14,5. Cihly Porotherm 24 Profi se svými vlastnostmi hodí pro realizaci omítaného jednovrstvého vnějšího i vnitřního zdiva. Cihly Porotherm 30 a 25 AKU Z jsou určené pro realizaci nosného zdiva i vnitřních příček. Díky své vyšší objemové hmotnosti a systému děrování mají výborné akustické a tepelně akumulační vlastnosti (s rezervou splňují požadavky ČSN na zvukovou izolaci a tepelné vlastnosti zdiva). Porotherm KP 14,5 jsou keramické překlady, které se používají jako nosné prvky nad otvory ve stěnových konstrukcích.
Terca jsou lícové cihly a obkladové pásky od výrobce wienerberger navržené tak, aby odolávaly náročným klimatickým podmínkám, zachovaly si trvanlivost a estetickou přitažlivost. Na nájemním domě v Podbělové ulici na Barrandově byly použity v odstínu Forum Prata.
- Autoři: maak, M.A.Tomáš
- Země: Česká republika
- Projekt: 10/2022-06/2023
- Realizace: 04/2024-08/2025
- Adresa:: Podbělová 8/1309, Praha-Barrandov
- Zastavěná plocha: 213 m2
- Užitná plocha: 722 m2
- Stavební firma: HOBST
- Stavební dozor: Ondřej Kopřiva