
Ubytování pod renesančním stropem. V Českém Krumlově vznikl apartmán pro pomalé turisty
Ve starobylém domě v centru Českého Krumlova funguje kavárna, která není jen pro turisty, ale i pro místní komunitu. V patře téhož domu nyní vzniklo i ubytování – také s úctou k místu i historii.
Adéla Vaculíková , 3. 1. 2024
Když se Masná 130 ocitla v majetku Petry Hanákové a Radka Techlovského, nebyla ještě ani napojená na kanalizaci. Zato měla neuvěřitelně cenný dřevěný krov pocházející už z konce 15. století. Ten byl citlivě obnoven, nahrazeny byly pouze jeho fatálně poškozené části. Úctyhodnost takového řešení potvrdil i Národní památkový ústav, když majitele v roce 2020 nominoval na cenu Patrimonio pro futuro, která každoročně vyznamenává počiny v oblasti péče o kulturní dědictví.
Více k tématu
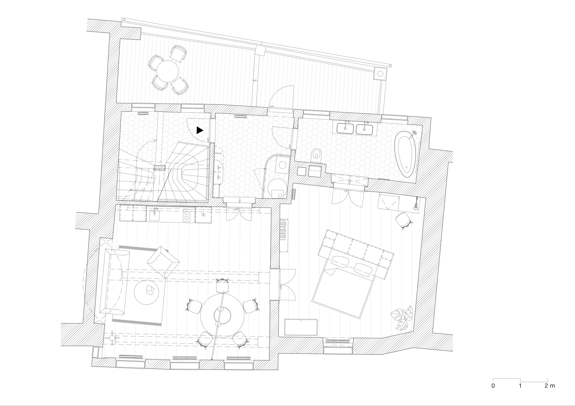
Podnikat v historickém centru Českého Krumlova znamená podnikat v místě plném turistických davů, které přicházejí místo jen rychle „zkonzumovat“ − pro tento jev se vžil název overturismus. Proto je ubytování, které zde provozují Petra Hanáková a Radek Techlovský jiné. V domě s adresou Masná 130 není několik malých pokojů vhodných pro přespání na jednu noc, je v něm jeden velkorysý apartmán, u něhož jsou majitelé nejraději, když v něm návštěvníci stráví delší pobyt.
„Koncept Masné jde naproti „pomalému“ návštěvníkovi města, který jej nechce jen rychle proběhnout jako historický skanzen. Hodně přemýšlíme o udržitelnosti a zátěži, kterou overturismus pro město představuje,“ říkají majitelé domu. V jeho přízemí už pět let provozují kavárnu, zaměřenou „nejen na turisty, ale i na místní komunitu“.

Apartmán v prvním patře Masné 130 nechává vyniknout původnímu prostorovému řešení. Do takové podoby ho dovedlo studio ORA, kterému je práce s historickými vrstvami vlastní. Zrestaurovány byly taky původní prvky, například renesanční strop s vyřezáváním nebo výmalby stěn.
V interiéru převládají tmavé a tlumené barvy. „Tmavé prostory člověka objímají, jeví se blíže než světlé,“ říkají architekti a architektky z ORA. Vybaven je hlavně solitérními kusy nábytku na míru, které nezabírají velké plochy. Mezi starým a novým se drží odstup, kuchyně stojí na mosazných nožkách, postel je postavená doprostřed ložnice.

Studio ORA spolupracuje s klienty, kterým na jejich domech záleží, proto spíše rekonstruují než staví. O stavebnících z Českého Krumlova přesto říkají, že jim jejich přístup učaroval. Jsou podle nich do domu skutečně zamilovaní. A hlavně proto je výsledek takový, jaký je.
- Autoři: Jan Hora, Jan Veisser, Barbora Hora, Klára Mačková
- Ateliér: ORA
- Země: Česká republika
- Adresa:: Masná 130, Český Krumlov
- Projekt: 2020-2023
- Realizace: 2023
- Užitná plocha: 80 m²
- Investor: Petra Hanáková, Radek Techlovský
- Fotograf: BoysPlayNice
- Nábytek: CREATISA design