Architektura / rodinné domy

Udržitelný dřevěný dům

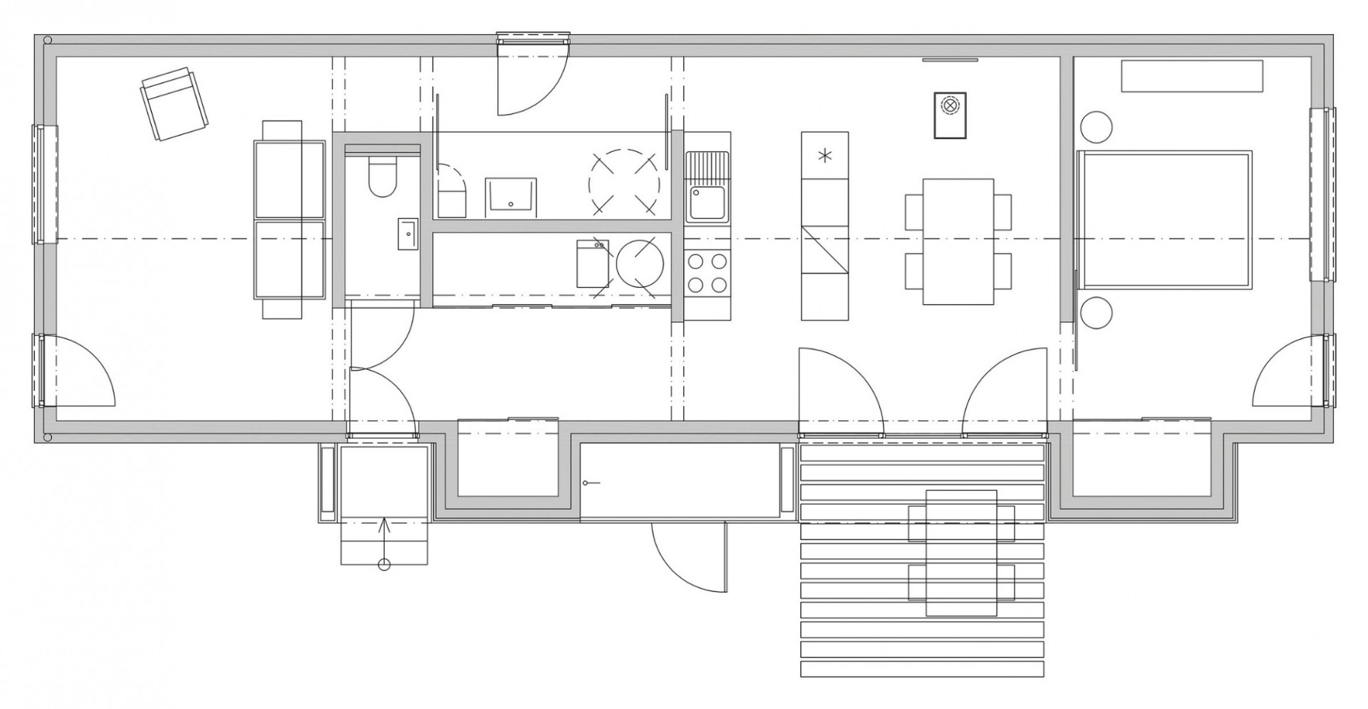
Co znamená udržitelný dům? Podle Jara Krobota je to dům, který využívá místní dodavatele ke stavbě, recyklovatelné materiály a který využije i části původního stavení. Navíc dokazuje, že tradiční členění domu mělo něco do sebe.

Jaro Krobot , 7. 2. 2017

  • Ateliér: Jaro Krobot architekt
  • Autoři: Jaro Krobot
  • Země: Slovensko
  • Město: Lučatín
  • Ulice, číslo: Lučatín 11
  • PSČ: 976 61
  • Datum projektu: 2013
  • Realizace: 2014
  • Užitná plocha: 77.00m<sup>2</sup>
  • Zastavěná plocha: 93.60m<sup>2</sup>
  • Plocha pozemku: 520.00m<sup>2</sup>
  • Materiál: dřevo
  • Poznámka: Foto © archiv autora
  • autor: Jaro Krobot *
  • publikováno: * 7. 2. 2017
  • zdroj: * autorská zpráva

Mohlo by vás zajímat

Generální partner
Hlavní partneři