Umělecké bydlení Na větru. Ateliér dvou sochařů se proměnil na rodinný dům
Sochařský ateliér prošel přestavbou – má teď novou koupelnu, terasu i garáž a žije a tvoří tu celé rodina. Změnilo se skoro vše, poezie ale zůstala. A „přátelé dobré vůle“ tu mají otevřeno.
Karolína Vránková , 31. 5. 2024
„Náhody nejsou,“ začíná autorská zpráva architektů z ateliéru A1. A tak si umělecky založená dvojice zakoupila velmi uměleckou nemovitost – ateliér zesnulého sklářského výtvarníka a medailéra Jiřího Harcuby, mimochodem autora české pětikoruny. Spolu s ním tu pracoval také sochař Aleš Grim.
Ateliér se nachází v půvabné lokalitě pražského Veleslavína, aby se však změnil na rodinné bydlení, byly potřeba dost razantní zásahy. Zajímavé je, že skoro nejsou vidět.

Původně navrhl ateliér roku 1968 architekt Miloslav Matašovský a otiskl do něj svůj rukopis. Jiří Harcuba jej neméně osobitě doplnil o předsazené ocelové závětří, které zároveň sloužilo jako „bariéra proti místním zlodějíčkům.“ Dům tím získal něco asijského, zároveň tu ale byl výhled na komín teplárny Veleslavín jako z obrazu Kamila Lhotáka. K tomu ještě stará zahrada se spletí kosodřevin – prostě nebývale poetický mix.
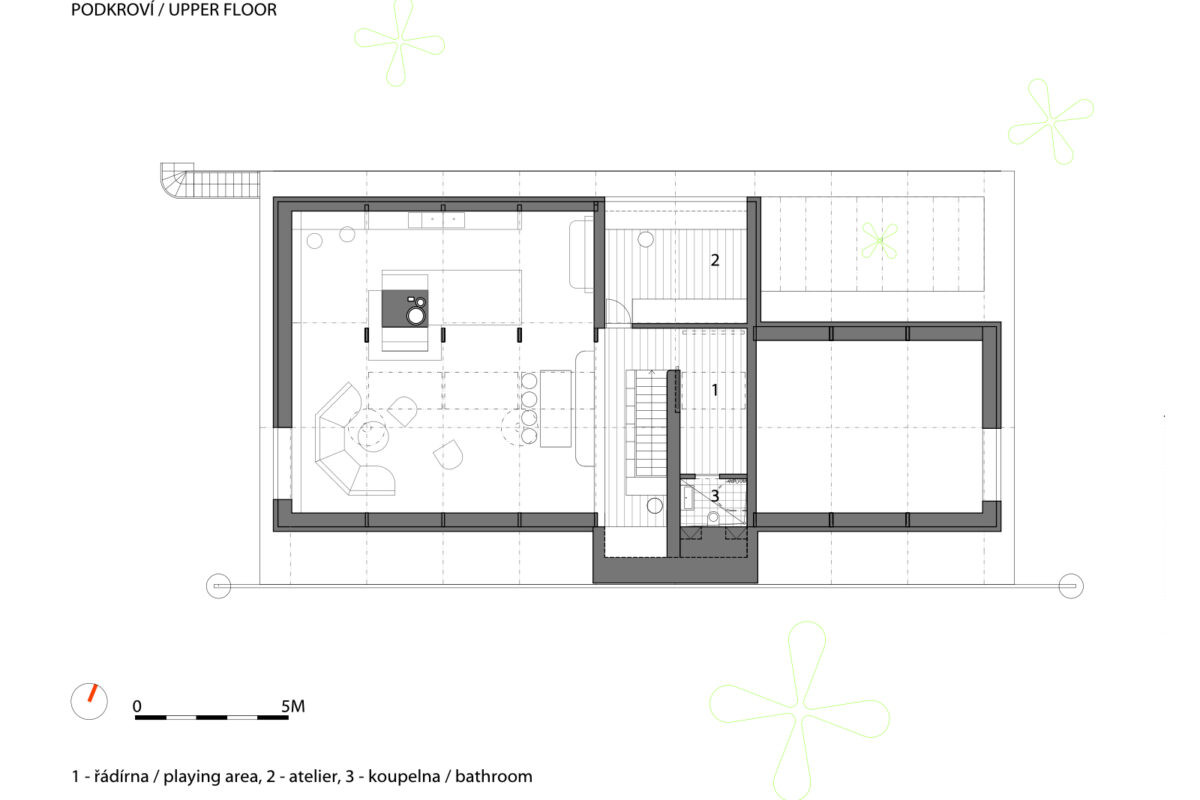
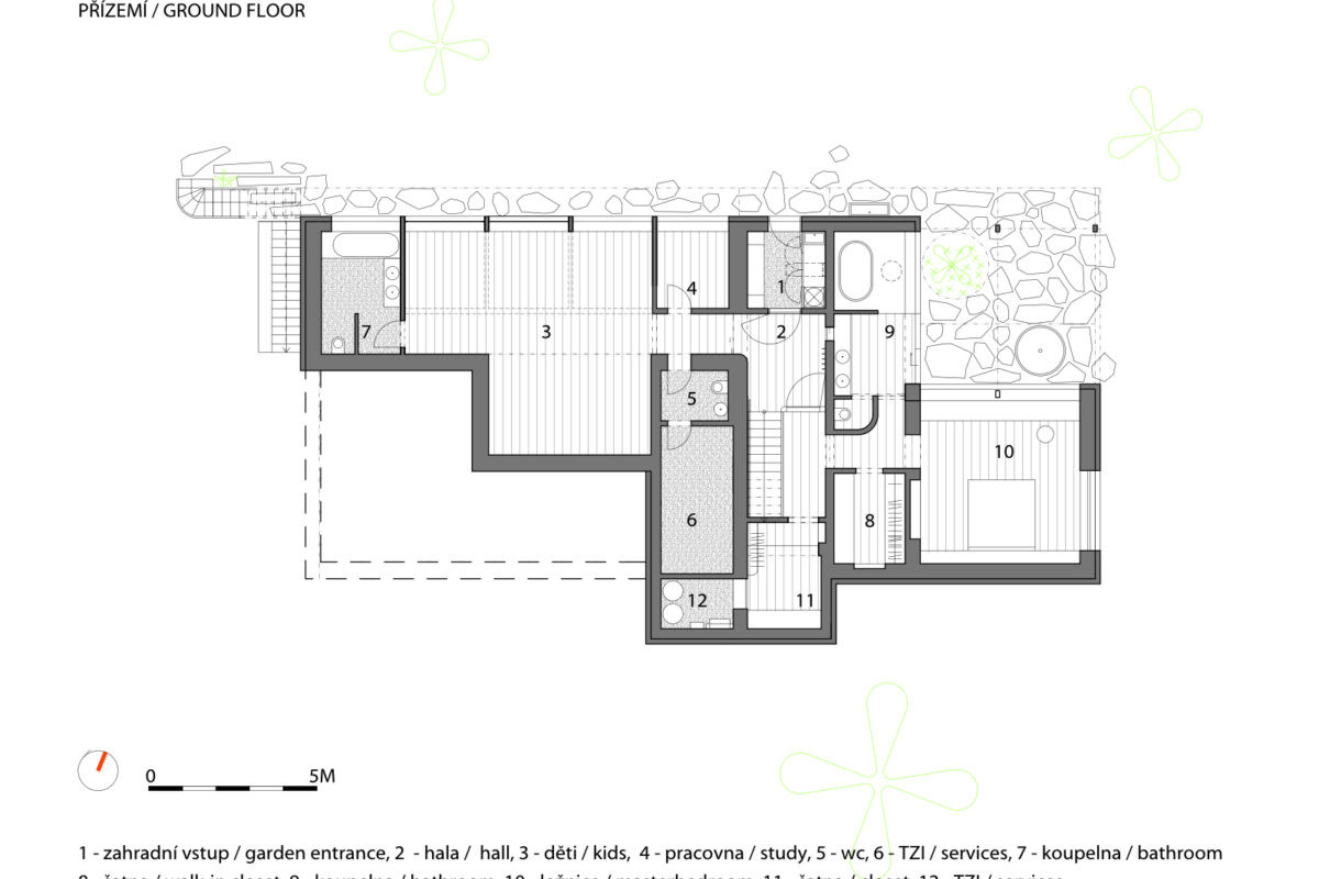
Přetvořit dům na současný standard ovšem vyžadovalo značné zásahy. Zcela se změnila dispozice: ateliéry obou umělců se spojily a vznikl obytný prostor. Vedle přibyl pokojík pro hosta. Jsou tu nové schody do podkroví a v něm ateliér stávajících majitelů. Hlavně bylo ovšem třeba vybudovat ložnice, dětské pokoje a koupelnu, to vše vzniklo v suterénu domu. Změny jsou patrné i zvenčí – je tu nová pavlač a terasa. A bylo také potřeba značně vylepšit tepelně izolační vlastnosti domu a další technické parametry.

„Vše jsme rafinovaně realizovali, tak aby prvky stavby původní splývaly s novými vstupy,“ vysvětluje architekt David Maštálka, který spolu s Lenkou Křemenovou a dalšími spolupracovníky z ateliéru A1 přestavbu navrhl. Zopakovali některé detaily, například podbití stropu dřevem či členění oken – ačkoliv okna jsou podle současných standardů, s dřevo-hliníkovými rámy a zasklená trojsklem, výraz domu se nezměnil. Na interiéru se podíleli také noví majitelé, najdeme tu jejich svítidla či skleněné skulptury, přišli také třeba s nápadem na dřevěnou koupelnu po vzoru japonských lázní.
Více k tématu
Vše prostě navázalo na umělecký život z minulé epochy. Architekti ho evokují v autorské zprávě: „Zavři oči, přenes se v myšlenkách v čase třeba do roku 1988, je pátek 6. prosince a Jiří Harcuba oslavuje šedesátiny, z tmavého kouta v ateliéru se line bručivý zvuk basy, prostorem se nese známá vůně čehosi dobrého, příští rok bude revoluce – je každopádně jedno jaký je rok, toto místo je navždy otevřené všem přátelům dobré vůle a vládne zde stále stejný duch a étos svobodného umění – svobodné společnosti.“
Toto je fantazie, že tak nějak to v domě chodilo prý potvrdila i vdova po Jiřím Harcubovi. Noví majitelé i architekti jako by jenom pokračovali v dávném večírku.
- Ateliér: A1architects
- Autoři: Lenka Křemenová, David Maštálka, Tereza Schneiderová, Zuzana Sagitáriová
- Země: Česká republika
- Město: Praha - Veleslavín
- Projekt: 2017-2019
- Realizace: 2020-2023
- Užitná plocha: 350 m²
- Statika: Jana Tůmová
- Projekce: S+S projekty
- Dodavatel oken: Stolařství Vašíček
- Dodavatel nábytku: HNT
- Dodavatel osvětlení: Unilight
- Realizace krbu: kamnářství Tomáš Jíra – vnitřní akumulační část; DNA design – vnější betonový plášť krbu
- Zahrada: arboreus