
Architektura
/
interiér
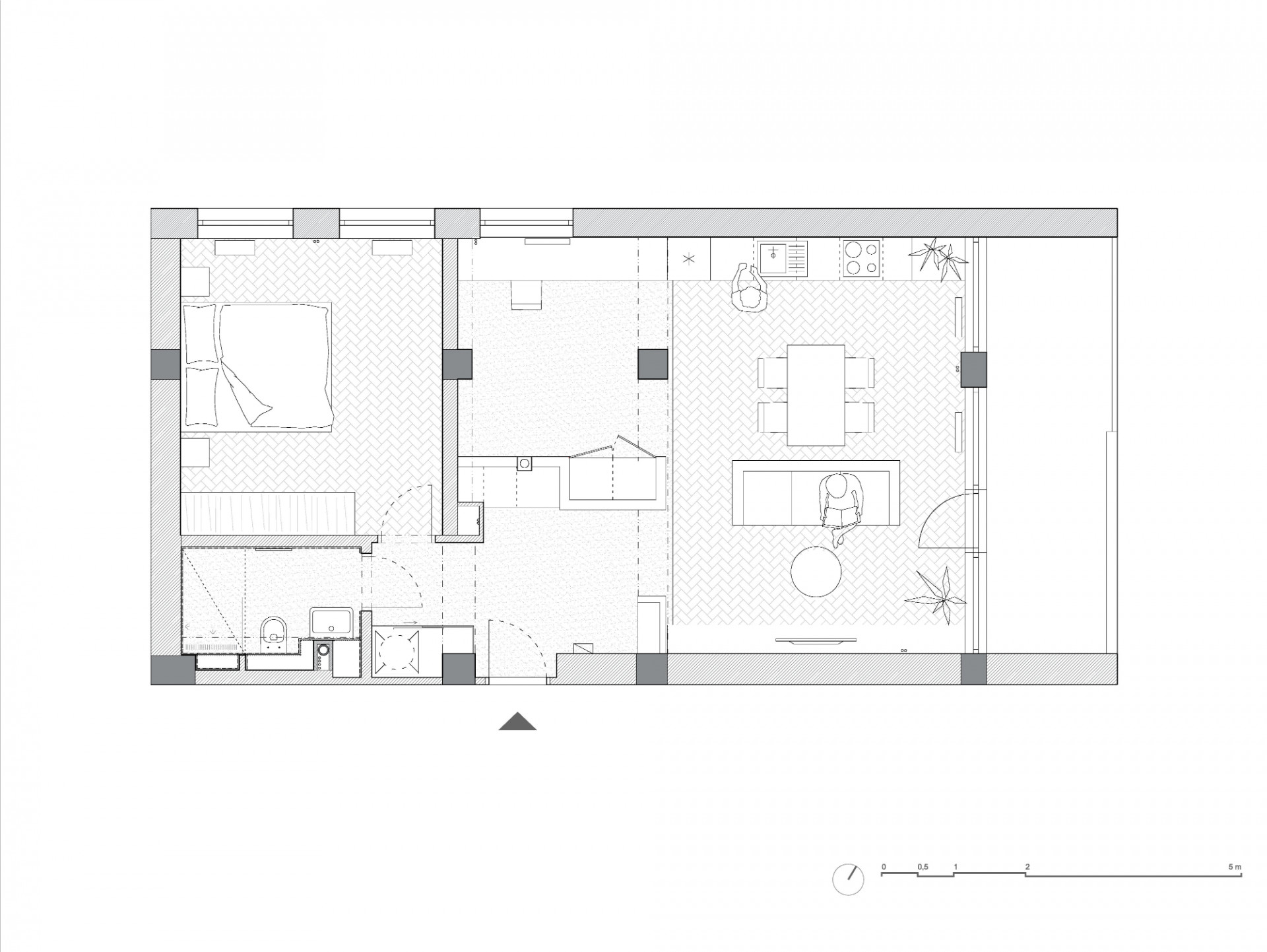
V interiéru kladenského bytu z 50. let odhalili Komon architekti betonový skelet
Pražské studio Komon architekti se při rekonstrukci menšího bytu z 50. let o velikosti 43 metrů čtverečních rozhodlo odhalit betonový skelet konstrukce a učinit z něj dominantní prvek interiéru. Dispozici bytu nově vymezují příčky, které autoři stejně jako vestavěný nábytek navrhli ze světlé březové překližky.
Komon architekti , 18. 3. 2021
- Autoři: Martin Gaberle
- Spolupráce: Ema Traplová
- Země: Česká republika
- Město: Kladno
- Datum projektu: 2016
- Realizace: 2019
- Užitná plocha: 43.00m2