
V Krkonoších kousek od Sněžky vyrostla nová chaloupka. Rub má červený, líc světle tónovaný
Správce lyžařského areálu Horní Malá Úpa se odhrabávání sněhu bát nemusí. Jeho nová chalupa se totiž vznáší nad zemí. Architekti ze studia ADR se dobře poprali s regulacemi na území Krkonošského národního parku. Postavili pokornou, a přesto moderní chalupu, která tam zkrátka patří.
Viktorie Majoberová , 15. 3. 2024
Krkonošský národní park chrání krajinný ráz parku, a to velmi nekompromisně – bez jejich razítka se stavět nedá. Další pravidla si stanoví konkrétní obce a města. Malá Úpa je pravděpodobně jedna z nejpřísnějších. Určuje např. velikost oken a tvar stavby, dalo by se říct, že v některých ohledech berou architektům možnost navrhovat. Chalupa od studia ADR je ale krásným příkladem, že i přes množství omezení může vzniknout moderní pokorná chalupa, která je na první pohled původní a na druhý pohled současná. Tato realizace by mohla jít příkladem nejen v Malé Úpě.
Více k tématu
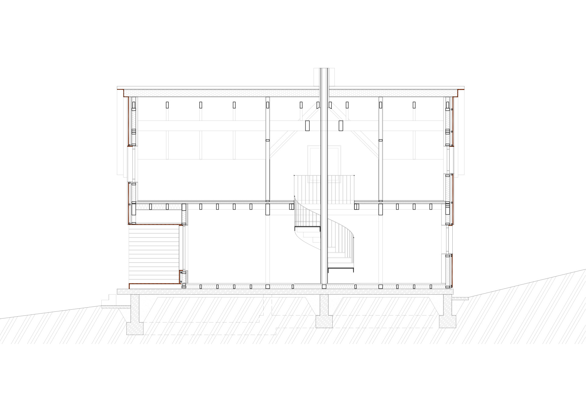
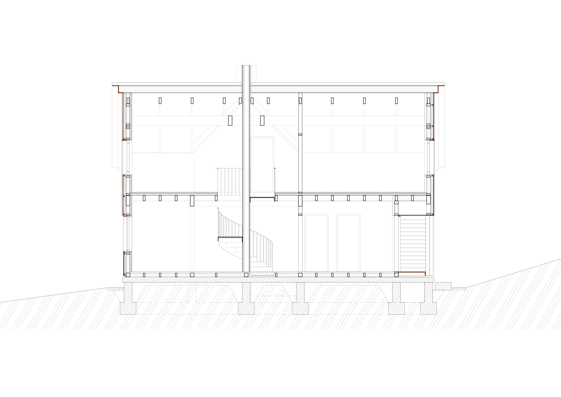
Kromě přísných požadavků musí mít architekti na paměti, že se nachází na nejvyšších vrcholcích Krkonoš. V takovém území se stavby potýkají s extrémními podmínky. Architekti Aleš Lapka a Petr Kolář předem počítají s množstvím sněhu, které každoročně stavbu zavalí. Přišli s jednoduchým, chytrým řešením. Základová betonová deska se vznáší nad zemí v takové výšce, že v zimních měsících sníh napadá tak akorát do úrovně vstupu do objektu. V měsících letních se do chalupy dostanete po předsazeném schodišti, které vede na zastřešenou terasu.

Současnost stavby prozrazuje také velikost oken v přízemí. I přes regulace územního plánu se autorům podařilo prosadit velkoformátové prosklení. Ty nejsou v Krkonoších tradiční. Staré chaloupky mají otvory co nejmenší, nicméně současné technologie a standard bydlení je již jiný, a tak si lze dovolit otvory zvětšit, místnosti prosvětlit, a naopak otevřít obyvatelům výhled do okolí. V červené chaloupce si díky tomu k snídani kromě cereálií s mlékem vychutnáte výhled na Sněžku.
Světnice světlá a dřevem vonící
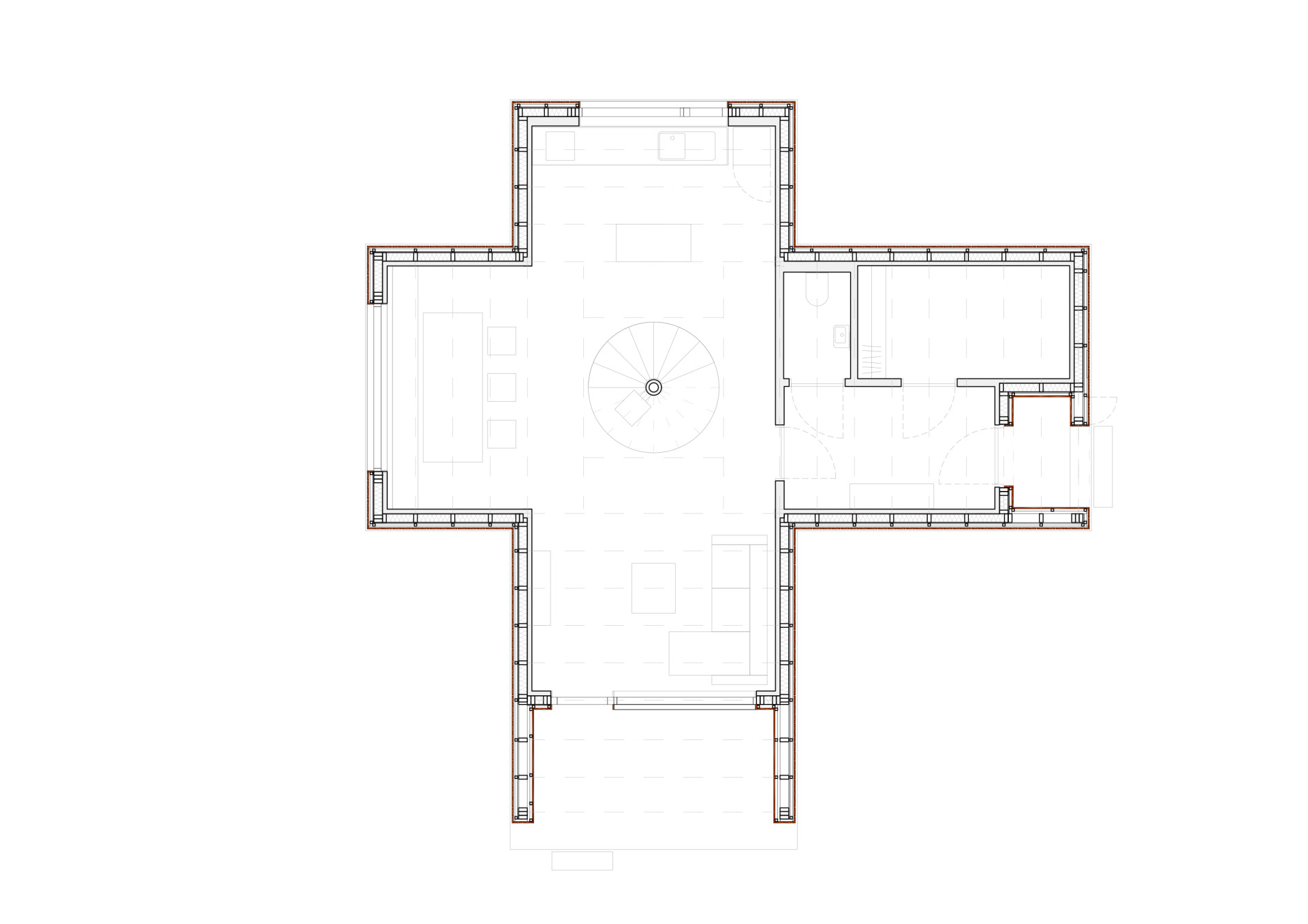
Majitelé si můžou užívat výhled do okolí také díky půdorysnému plánu chalupy. Autoři se inspirovali tvaroslovím kříže, který je pro danou lokalitu typický. Díky tomu je interiér neustále prosvětlený, neboť do něj proniká světlo ze všech světových stran.
Tahle chaloupka voní dřevem venku i uvnitř. Konstrukčně je to lehká montovaná dřevostavba. Fasáda je obložena postaru, svisle poskládanými nehoblovanými smrkovými prkny. Přes spáry prken jsou pak kladené další latě. Vše je natřeno rudým nátěrem. A to je dobře čitelné, a pro Krkonoše zkrátka typické tvarosloví se špetkou současnosti.

Říká se, že krb je srdce domu. Pak tahle chalupa má srdce omotané schodištěm. Autoři velmi chytře a úsporně navrhují krb uprostřed obývacího pokoje. Komínová roura ústí středem interiéru na střechu a zároveň se kolem ní točí kulaté schodiště do podkroví. Celé přízemí je navrženo skromně. Kombinace smrkového dřeva, bílé omítky a okenních otvorů, které rámují pohledy do okolní přírody. A to naprosto stačí.

Atmosféra v podkroví se od té v přízemí liší. A to tak, že se mnohem více podobá staré tradiční Krkonošské chalupě. Malá okna propouští do interiéru ideální množství paprsků, abyste se dostatečně vyspali po celodenním lyžování. Vleže si můžete vychutnat pohled na masivní dřevěné trámy, které přiznaně prochází interiérem a dodávají mu sebevědomé charisma.
Díky citlivé práci architektů se podařilo vytvořit současnou chaloupku. Ta dokázala vyhovět nejen po estetické stránce přáním autorů a klienta, ale také místní tradici a přírodě. Je nová, pokorná a zapadá.
- Autoři: Aleš Lapka, Petr Kolář
- Ateliér: ADR
- Spolupráce: Miloš Hradec, Pavel Čermák
- Země: Česká republika
- Město: Horní Malá Úpa
- Projekt: 2020
- Realizace: 2023
- Zastavěná plocha: 94 m²
- Hrubá podlahová plocha: 162 m²
- Užitná plocha: 124 m²
- Plocha pozemku: 2717 m²
- Investor: SKiMU
- Fotograf: BoysPlayNice
- Dodavatel konstrukce: KASPER CZ
- Dodavatel schodiště: Šolc konstrukce