
Variabilní rodinný dům se zubatou střechou
Rodinný dům pro mladý pár kombinuje atiku s pultovou střechou. Pasivní standard, promyšlená dispozice a spokojení majitelé - to jsou další charakteristiky domu ve Stupavě od architekta Pavola Pokorného.
Tomáš Kodet , 11. 10. 2017
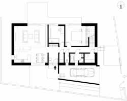
Spolupráce architekta s klientem byla ovlivňována především požadavkem na pasivní standard a rychlost výstavby. Mladý pár s očekávajícím potomkem ale své priority postupně přehodnotil. Nejdůležitější se pro ně stala mikrourbanistická dispozice reagující na rohový pozemek a sousední domy. Energetické nároky se staly sekundárními, přesto však montovaná dřevostavba nepřesahuje primární spotřebu tepla přes 14 kWh/m2.
Hmota domu kopíruje dvě linie. Výškový sklon pultové střechy a atiky reaguje na svažitý pozemek, půdorysné natočení garážového přístřešku pak na severní hranici pozemku. Zešikmení střechy je důsledkem kompromisu mezi objemem vytápěného vzduchu a zároveň vytvořením nadstandartních vnitřních prostor s variabilním uspořádáním nábytku. V budoucnosti je možné vytvořit i mezipatro. Původní myšlenka propojení pokojů přes střešní zelenou terasu se ale zatím nezrealizovala.
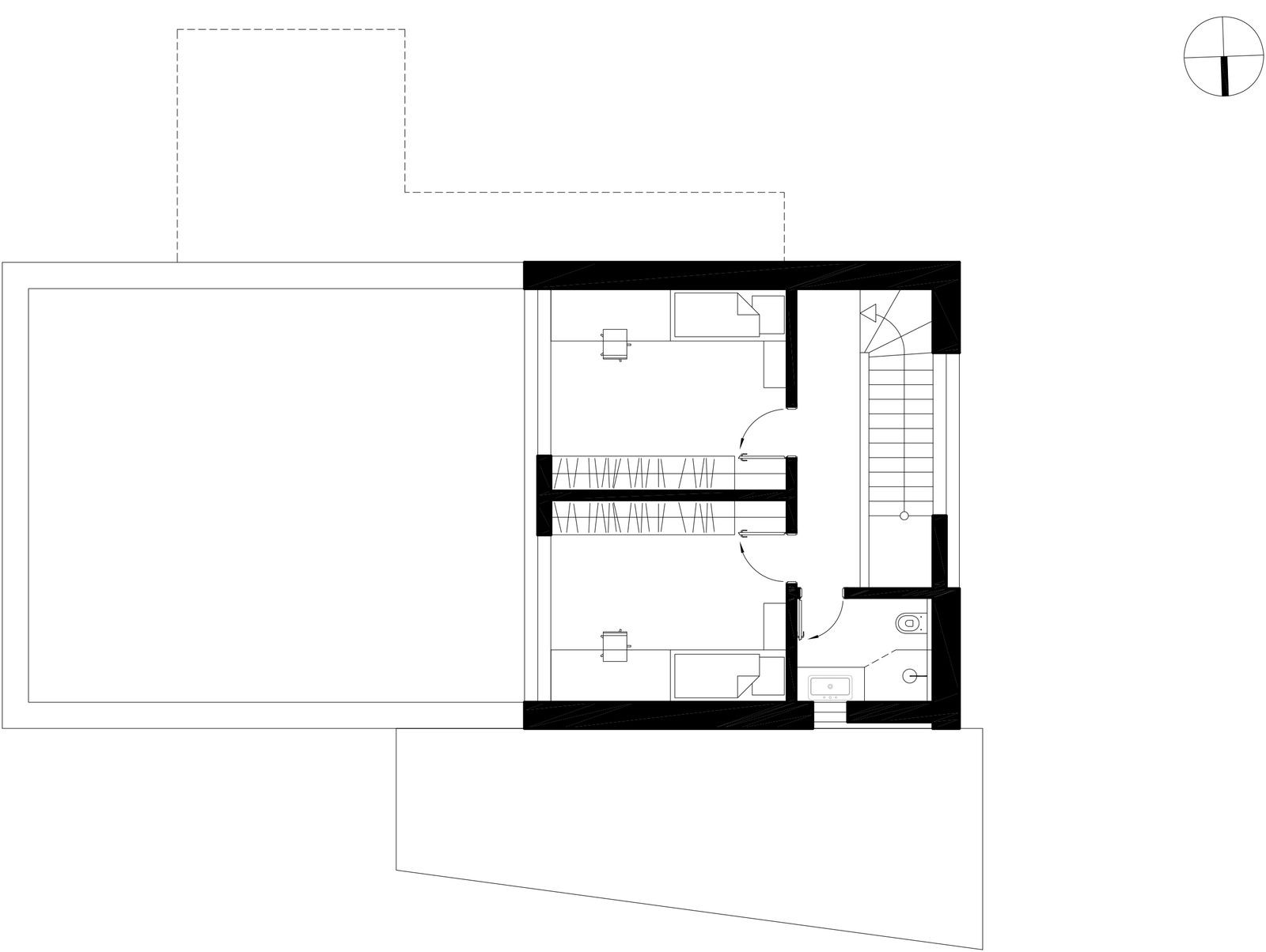
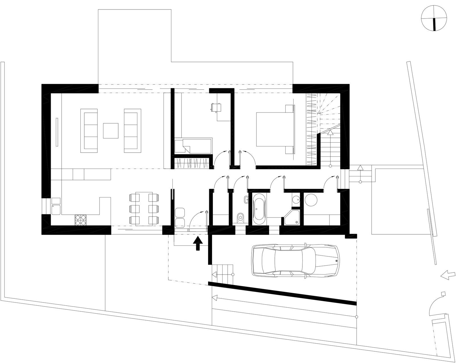
Horní dispozice je oproti té přízemní otočena o devadesát stupňů. Změnou orientace okenních otvorů se zabránilo přehřívání dětských pokojů v letních měsících a umožňuje jim zanechat patřičné prosklení. Díky krytí zvýšené atiky je navíc dětem zajištěno patřičné soukromí.
Velká francouzská okna na jižní fasádě domu tvoří jednoduchý obdélník zakomponovaný do zubatého průčelí. Kombinace skla a dřeva vsazeného do bílé minimalistické omítky působí velmi dobře. Dřevo ovšem není jen estetickou hodnotou, v letních měsících zajišťuje stínění a zabraňuje přehřívaní obývacího prostoru.
V okolní zástavbě je tento architektonický prvek jako pěst na oko. Do okolí nezapadá, nereaguje na něj a nesnaží se mu přizpůsobit. To je ale dobře. Protože jinak by na pozemku ve Stupavě stál katalogový bungalov.
- Autoři: Pavol Pokorný
- Ateliér: POKORNY ARCHITEKTI
- Země: Slovensko
- Město: Stupava
- Ulice, číslo: Na Kremenici
- Datum projektu: 2012
- Realizace: 2013
- Užitná plocha: 150.00m2
- Zastavěná plocha: 130.00m2
- Materiál: dřevo
- Foto ©: Daniel Veselský