Architektura / rodinné domy

Atriový bungalov o velikosti bytu vyřešil komplikovanou parcelu

Složitá situace s malým a úzkým pozemkem ohraničeným sousedními budovami se neřešila snadno. Dodržení uliční čáry a procentuální zastavěnosti plochy pozemku tomu moc nepomohlo. Architekt Pavol Pokorný si s tím ale poradil a vytvořil černý kvádr s výrazným bílým atriem.

Tomáš Kodet , 23. 10. 2017

Malý pozemek se zdál téměř nezastavitelný. Původní ruina, které se sousedi báli, šla dolů jako první. Volná plocha činila sice jen 4,7 aru a jednu z hranic pozemku tvořil štít sousedního domu, ale majitelům se koupě vyplatila - zvolili si totiž správného architekta. Ten svůj návrh po konzultaci s klientem představil i sousedům a stavebnímu úřadu. Po souhlasu všech zainteresovaných stran se teprve pustil do konečné fáze projektu.

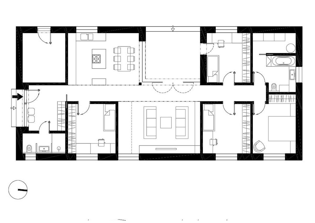
Přáním majitelů byl přízemní dům se třemi ložnicemi, pracovnou a světlým obývacím pokojem. Užitková plocha 145 m2 je tak akorát pro větší byt než samostatný dům. Atrium a zelený pruh trávy kolem ovšem jasně deklarují, že se jedná o rodinný domek.

„Líbí se mi, že při pohledu z ulice je vidět jen malý černý box, který neprozrazuje nic o tom, co je za čelní fasádou. Působí jako nejmenší dům v okolí a do ulice nemá orientovaná žádná okna, jen vstupní dveře – při navrhování rodinných domů je to moje oblíbené téma,“ popisuje architekt Pavol Pokorný.

Středem dispozice vede dlouhá komunikační osa, od které se odvíjí celé rodinné dění. Dům si s návštěvníkem pohrává, jednoduchý betonový plot, maloformátová dlažba, květiny a starý smrk zprostředkovávají černé stěně se vstupními dveřmi dokonalé pozadí. Po vstupu se naskytne pohled do hloubky, zdánlivě malého domu, který je příjemně nasvětlen a láká ke vstupu. O pár kroků dál se ale nachází další překvapení - malé atrium, které rozšiřuje pobytový prostor domu směrem do zahrady. Kryté před deštěm, větrem a sluncem láká k posezení s dostatkem intimity podstatnou většinu roku. Posuvné dveře nepřinášejí jenom světlost, ale interiér s exteriérem lze propojit do jednoho celku a pobytovou plochu významně rozšířit. Chodba s atriem sousedí, sklo ale nebývá vnímáno jako bariéra, takže chodba ve výsledku není dlouhou úzkou nudlí, ale postupně se otevírajícím prostorem.

Mnoho omezujících podmínek nepřinutilo architekta vytvořit násilný experiment nebo vynucený kompromis. Šel po jednoduchém, jasném a efektivním řešení, s minimem dekorativních prvků, velkými plochami a velkorysým přísunem slunečního světla.

  • Autoři: Pavol Pokorný
  • Spolupráce: Martin Bujna
  • Země: Slovensko
  • Generální dodavatel: ForDom
  • Užitná plocha: 145.00m2
  • Zastavěná plocha: 160.00m2

Mohlo by vás zajímat

Generální partner
Hlavní partneři