 
				
					
                    					1/30
				
			 
						
				 
				
					Byt na Dunaji, Create Space / Peter Fritsch, Silvia Mládenková
                                            Foto: Jarolim.sk
                    					2/30
				
			 
						
				 
				
					Byt na Dunaji, Create Space / Peter Fritsch, Silvia Mládenková
                                            Foto: Jarolim.sk
                    					3/30
				
			 
						
				 
				
					Byt na Dunaji, Create Space / Peter Fritsch, Silvia Mládenková
                                            Foto: Jarolim.sk
                    					4/30
				
			 
						
				 
				
					Byt na Dunaji, Create Space / Peter Fritsch, Silvia Mládenková
                                            Foto: Jarolim.sk
                    					5/30
				
			 
						
				 
				
					Byt na Dunaji, Create Space / Peter Fritsch, Silvia Mládenková
                                            Foto: Jarolim.sk
                    					6/30
				
			 
						
				 
				
					Byt na Dunaji, Create Space / Peter Fritsch, Silvia Mládenková
                                            Foto: Jarolim.sk
                    					7/30
				
			 
						
				 
				
					Byt na Dunaji, Create Space / Peter Fritsch, Silvia Mládenková
                                            Foto: Jarolim.sk
                    					8/30
				
			 
						
				 
				
					Byt na Dunaji, Create Space / Peter Fritsch, Silvia Mládenková
                                            Foto: Jarolim.sk
                    					9/30
				
			 
						
				 
				
					Byt na Dunaji, Create Space / Peter Fritsch, Silvia Mládenková
                                            Foto: Jarolim.sk
                    					10/30
				
			 
						
				 
				
					Byt na Dunaji, Create Space / Peter Fritsch, Silvia Mládenková
                                            Foto: Jarolim.sk
                    					11/30
				
			 
						
				 
				
					Byt na Dunaji, Create Space / Peter Fritsch, Silvia Mládenková
                                            Foto: Jarolim.sk
                    					12/30
				
			 
						
				 
				
					Byt na Dunaji, Create Space / Peter Fritsch, Silvia Mládenková
                                            Foto: Jarolim.sk
                    					13/30
				
			 
						
				 
				
					Byt na Dunaji, Create Space / Peter Fritsch, Silvia Mládenková
                                            Foto: Jarolim.sk
                    					14/30
				
			 
						
				 
				
					Byt na Dunaji, Create Space / Peter Fritsch, Silvia Mládenková
                                            Foto: Jarolim.sk
                    					15/30
				
			 
						
				 
				
					Byt na Dunaji, Create Space / Peter Fritsch, Silvia Mládenková
                                            Foto: Jarolim.sk
                    					16/30
				
			 
						
				 
				
					Byt na Dunaji, Create Space / Peter Fritsch, Silvia Mládenková
                                            Foto: Jarolim.sk
                    					17/30
				
			 
						
				 
				
					Byt na Dunaji, Create Space / Peter Fritsch, Silvia Mládenková
                                            Foto: Jarolim.sk
                    					18/30
				
			 
						
				 
				
					Byt na Dunaji, Create Space / Peter Fritsch, Silvia Mládenková
                                            Foto: Jarolim.sk
                    					19/30
				
			 
						
				 
				
					Byt na Dunaji, Create Space / Peter Fritsch, Silvia Mládenková
                                            Foto: Jarolim.sk
                    					20/30
				
			 
						
				 
				
					Byt na Dunaji, Create Space / Peter Fritsch, Silvia Mládenková
                                            Foto: Jarolim.sk
                    					21/30
				
			 
						
				 
				
					Byt na Dunaji, Create Space / Peter Fritsch, Silvia Mládenková
                                            Foto: Jarolim.sk
                    					22/30
				
			 
						
				 
				
					Byt na Dunaji, Create Space / Peter Fritsch, Silvia Mládenková
                                            Foto: Jarolim.sk
                    					23/30
				
			 
						
				 
				
					Byt na Dunaji, Create Space / Peter Fritsch, Silvia Mládenková
                                            Foto: Jarolim.sk
                    					24/30
				
			 
						
				 
				
					Byt na Dunaji, Create Space / Peter Fritsch, Silvia Mládenková
                                            Foto: Jarolim.sk
                    					25/30
				
			 
						
				 
				
					Byt na Dunaji, Create Space / Peter Fritsch, Silvia Mládenková
                                            Foto: Jarolim.sk
                    					26/30
				
			 
						
				 
				
					Byt na Dunaji, Create Space / Peter Fritsch, Silvia Mládenková
                                            Foto: Jarolim.sk
                    					27/30
				
			 
						
				 
				
					Byt na Dunaji, Create Space / Peter Fritsch, Silvia Mládenková, perspektiva
                    					28/30
				
			 
						
				 
				
					Byt na Dunaji, Create Space / Peter Fritsch, Silvia Mládenková, půdorys původní stav
                    					29/30
				
			 
						
				 
				
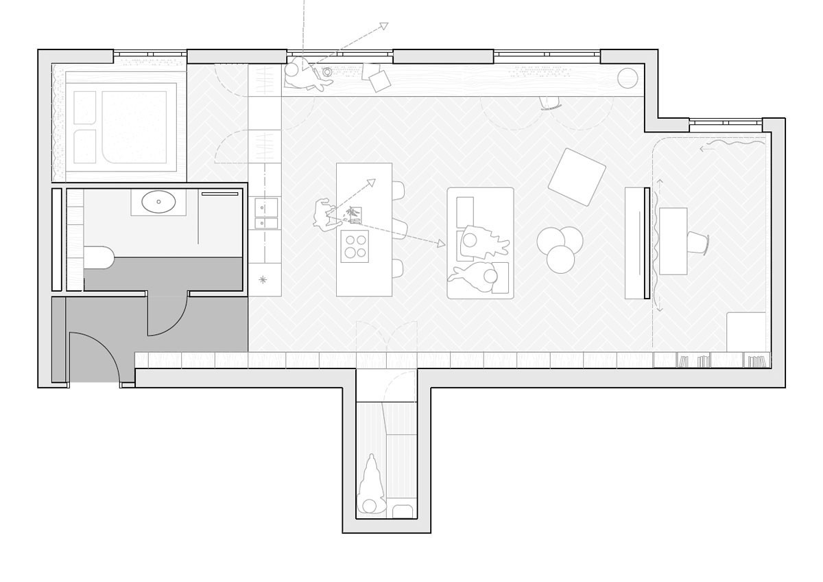
					Byt na Dunaji, Create Space / Peter Fritsch, Silvia Mládenková, půdorys stav po rekonstrukci
                    					30/30