
Vila Heike patřila jedné z nejbohatších rodin Berlína. Po rekonstrukci slouží umělecké scéně
Na dvě desítky let se železné vstupní dveře vily Heike zabouchly. Ticho trvalo dlouho, ale nyní září jedna z prvních železobetonových staveb v Berlíně v novém lesku. Po pečlivé rekonstrukci Christofa Schuberta tu vznikly ateliéry a výstavní prostor.
Sára Kročková , 8. 8. 2023
Moderní, multifunkční, na svou dobu avantgardní. Před 113 lety si vilu v berlínské čtvrti Lichtenberg nechal postavit jeden z nejbohatších mužů Berlína, výrobce strojů a zařízení na zpracování masa Richard Heike.
Později sloužila jako záchytné středisko sovětské tajné policie nebo jako archiv pro spisy z dob národního socialismu. Na konci 20. století budova osiřela a desítky let postupně chátrala. V roce 2015 ji začal rekonstruovat německý architekt Christof Schubert.
Více k tématu
Architekt chtěl zchátralou vilu proměnit na kancelářskou a ateliérovou budovu. Velmi nákladná rekonstrukce byla částečně uhrazena z veřejných peněz a Schubertův plán na záchranu zafungoval. Od roku 2019 jsou tu ateliéry a pracoviště umělců a dalších kreativních profesí a také studia Christof Schubert Architekten.

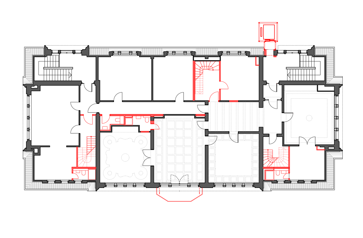
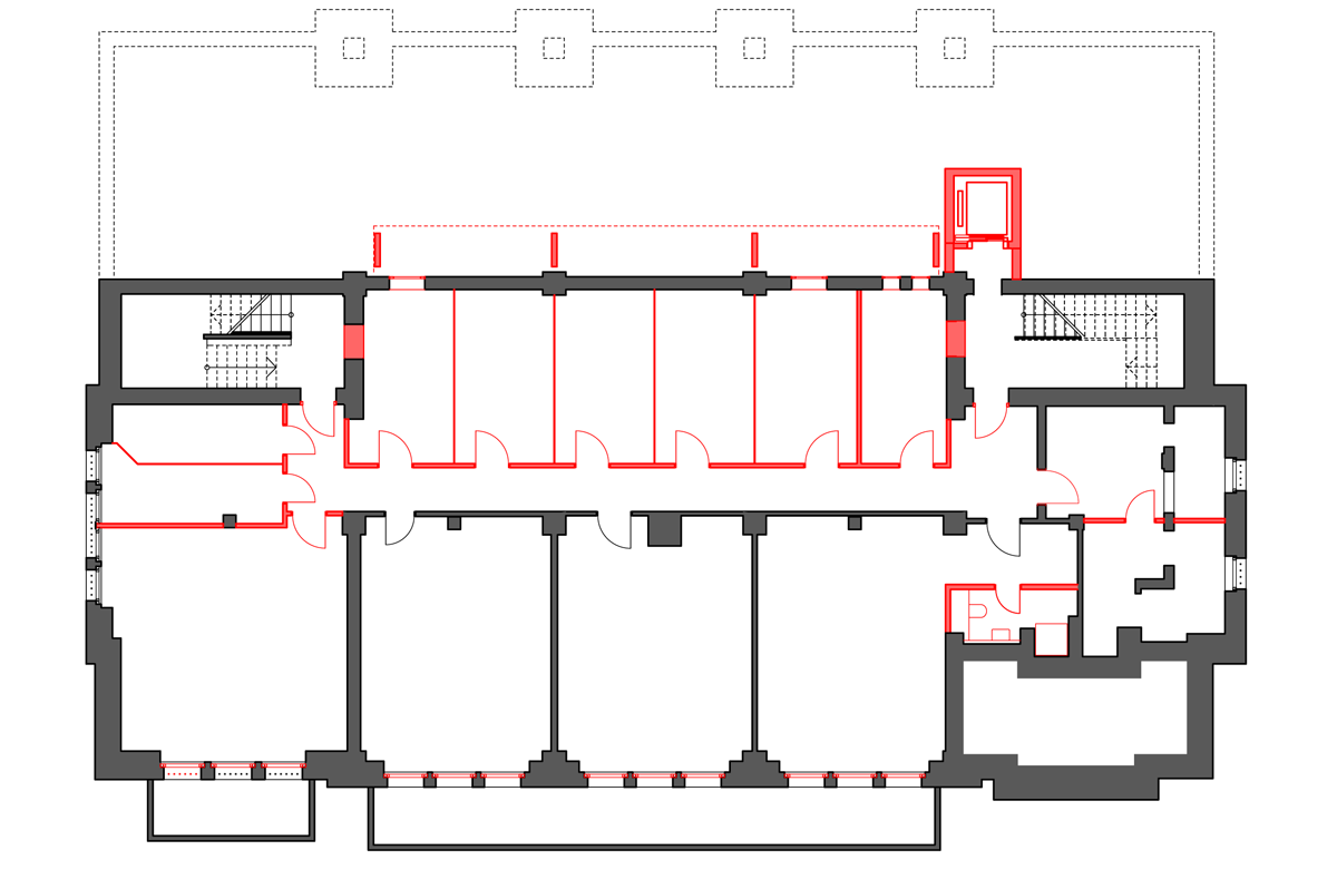
Vila se skládala z haly, kanceláří a bytu výrobce. Důstojnost prostorům dodávala světlá výška, které dosahuje pěti metrů. Velkorysý vestibul v minulosti asi překvapil nejednoho návštěvníka, jelikož budova nestála v luxusní čtvrti, ale poměrně daleko za branami Berlína. Richard Heike v ní vystavoval své stroje na zpracování masa.
Jedná se o jednu z prvních železobetonových staveb v Berlíně, která spojuje historismu a art deco. Vstupní hale dominuje osm mohutných sloupů po vzoru antiky, kazetový strop nad nimi však už připomíná modernu a Bauhaus. Vše je po rekonstrukci sjednoceno do pískovcové barvy, kterou doplňuje teracová podlaha.

V prvním a druhém patře se nacházely kanceláře, a tak to také zůstalo. „Cílem bylo využít budovu tak, aby se nemusela příliš měnit,“ vysvětluje architekt. Kanceláře jsou oproti vestibulu strohé. Mají jednoduché bílé omítnuté stropy a zdi a zrenovovaná špaletová okna. Z budovy vyzařuje historie, která fasicnuje i Christofa Schuberta. Ve své kanceláři má řadu upomínek na staré časy vily – třeba fotografie rodiny Heike nebo originální katalog masokombinátu z 30. let.
- Ateliér: Christof Schubert Architekten
- Země: Německo
- Město: Berlín
- Realizace: 2018
- Užitná plocha: 2400 m²