Architektura / rodinné domy

Vilu ve tvaru bumerangu usadili Majo architekti na úzký skalní hřbet

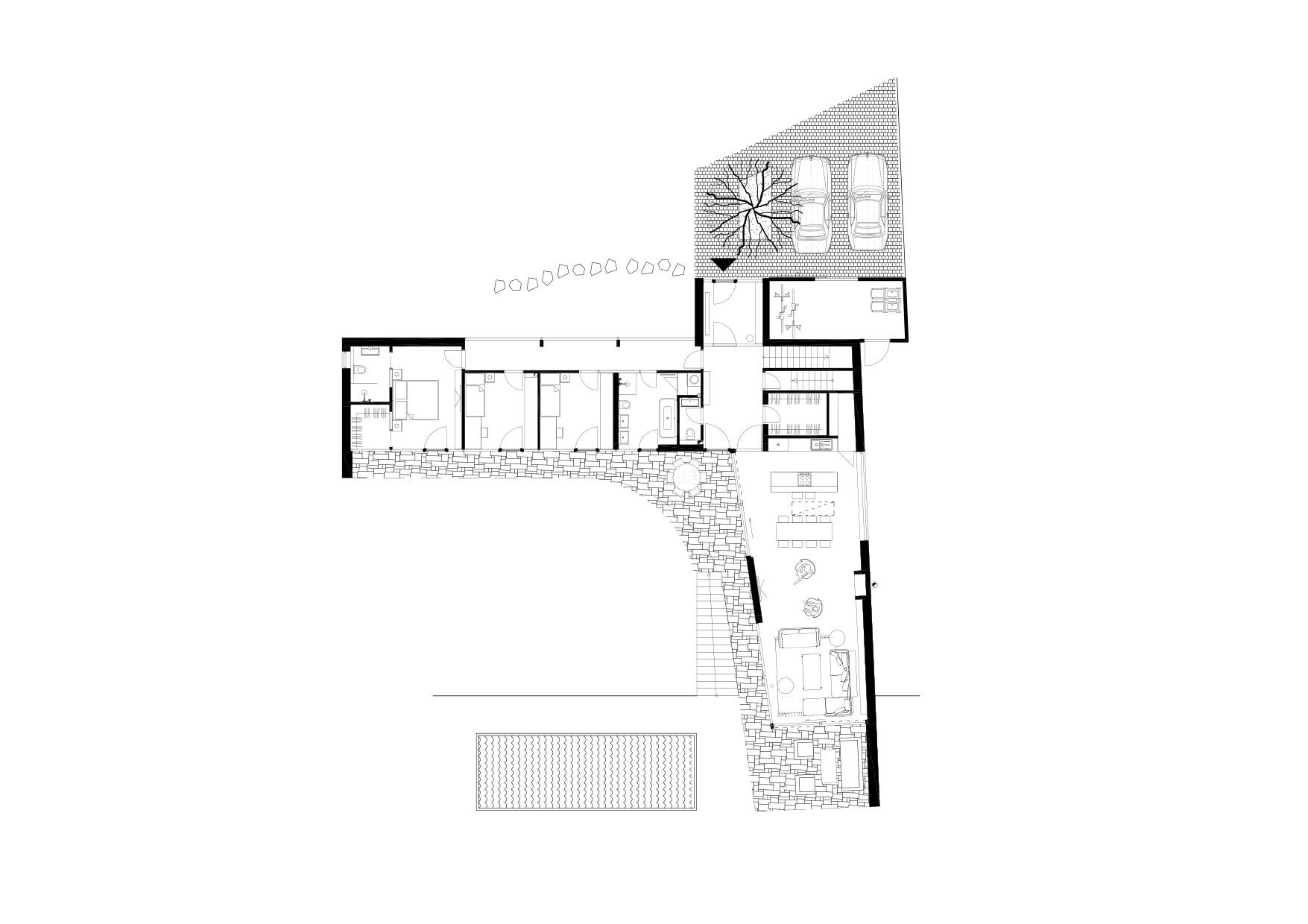
Vila, kterou navrhl pražský ateliér Majo architekti, těží ze svého postavení na vyvýšeném skalním hřbetu. Prohnutá stavba ve tvaru bumerangu nabízí svým majitelům velkou krytou terasu, ze které se otevírají krásné výhledy na okolní krajinu. Vila sestává ze dvou křídel – jedno je určeno jako noční a nachází se zde ložnice, druhé pak obsahuje otevřený obývací pokoj. Realizace využívá zejména přírodní materiály jako třeba modřínové dřevo, kterým je obložena fasáda. Díky velkým proskleným plochám dochází k propojení interiéru s exteriérem.

majo architekti , 6. 10. 2021

  • Ateliér: majo architekti
  • Země: Česká republika
  • Datum projektu: 2018
  • Realizace: 2020

Nabídky práce

Mohlo by vás zajímat

Generální partner
Hlavní partneři