Vyhořelý venkovský dům na okraji Prahy rozehrávají po rekonstrukci neobvyklé prvky. Garáž umístil architekt pod zem
Obyčejný venkovský dům na Zbraslavi prošel zevrubnou rekonstrukcí pod vedením ateliéru Martin Neruda Architektura, která mu navrátila jeho původní podobu okořeněnou mnohými novodobými vstupy.
Adéla Vaculíková , 20. 12. 2022
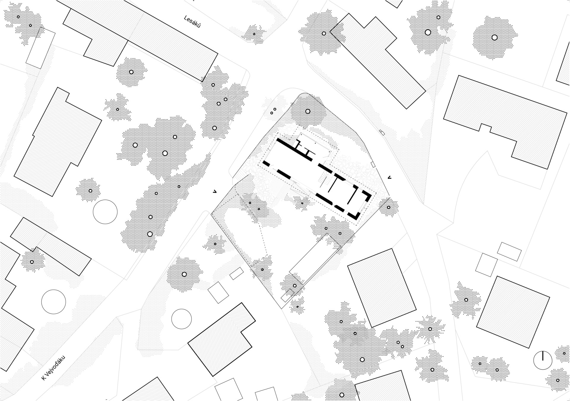
Rekonstrukce podle návrhu ateliéru Martin Neruda Architektura vrátila rodinnému domu v osadě Baně na Zbraslavi zpět jeho „obyčejnost“. Požár, který zničil především stropy a střechu, dal celé rekonstrukci poměrně netradiční obrysy – zvenčí však stavba působí, jako by se s ní nikdy nic fatálního nestalo. „Navržené stavební úpravy respektují původní objem domu i jeho půdorysnou stopu. Výraznou proměnou prošla také okolní zahrada, do které se dům otevírá novými průhledy a průchody,“ popisuje koncepci rekonstrukce Martin Neruda.
Více k tématu
Dům na podlouhlém půdoryse je završený sedlovou střechou, kolem se rozléhá upravená zahrada a nově na pozemku přibyla také garáž. Martin Neruda ji záměrně nechal zabudovat pod zem, aby při pohledu z domu nebo pobytu na zahradě nerušila – obrací se pouze k příjezdové cestě. „V zahradě garáž vytváří mírný zelený svah a maximalizuje její plochu,“ doplňuje Martin Neruda.

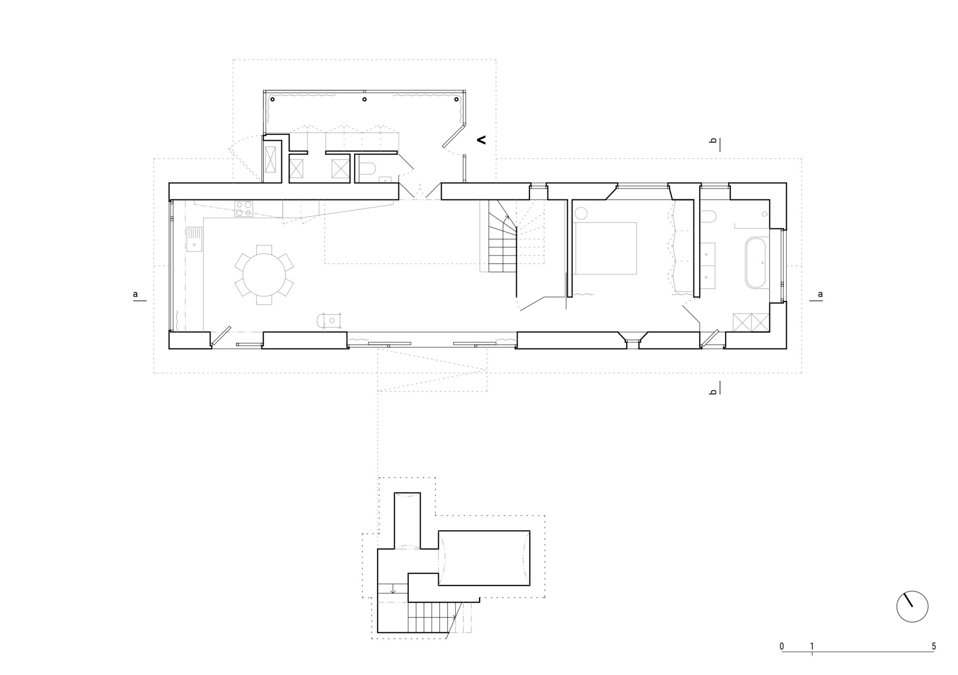
Z exteriéru má rodinný dům tradiční výraz, zdivo je omítnuté světlou omítkou, střecha je pokrytá terakotovými taškami. Originalitou zpracování vynikají interiéry, které jsou plné přírodních materiálů a rafinovaných detailů. Domem se táhnou masivní dřevěné podlahy, ze dřeva je i vestavný nábytek, kuchyně nebo menší kusy vybavení. Světlý a útulně působící prostor pak místy dělí jemné textilní závěsy.
Nejvelkorysejší místností v domě je obývací pokoj, který se otevírá do krovu, nad jídelní a kuchyňskou částí se zase vznáší železobetonový strop s překvapivou strukturou. „Místnostem v přízemí dominují železobetonové stropy, jejichž jednotlivá žebra jsou v průřezu tvarována do trojúhelníků,“ říká Martin Neruda. Efektní konstrukci má každopádně i krov, který lze obdivovat zblízka v podkroví. „Konstrukční součástí recyklovaného krovu jsou tenké ocelové kleštiny, které formují prostor podkroví a zároveň fungují jako stínítka,“ dodává Martin Neruda.

Do světlých barev laděných místností proniká velké množství denního světla. Pokoje v přízemí se do zahrady otevírají velkými okny nebo dokonce předsazeným zaskleným zápražím. Podkroví s galerií uvnitř pak osvětluje pásové okno táhnoucí se podél hřebene. Architekt Martin Neruda si tak po atriovém domě v Lanškrouně připsal na konto další pozoruhodnou realizaci.
- Ateliér: Martin Neruda Architektura
- Autoři: Martin Neruda
- Spolupráce: Petr Hanzal, Lada Piskáčková
- Země: Česká republika
- Město: Praha
- Realizace: 2021
- Užitná plocha: 174 m²
- Statika: Tomáš Novotný