
Z malého velký a vzdušný. Byt s okny do dvora změnily barvy a světlo
Architekti z ateliéru Grau Architects tak trochu „nafoukli“ malý bratislavský byt. Zrušili příčky a doplnili jej o pestrou paletu materiálů a barev. A také ukázali starý strop.
Jan Bureš , 20. 9. 2023
Od jiných typů projektů se úpravy a rekonstrukce interiérů odlišují tím, že jsou architektům a architektkám vnějšími stěnami jasně dány hranice, ve kterých mohou pracovat. Hlavním jejich úkolem je tak především vytvořit na stejné ploše „větší“ a vzdušnější interiér.
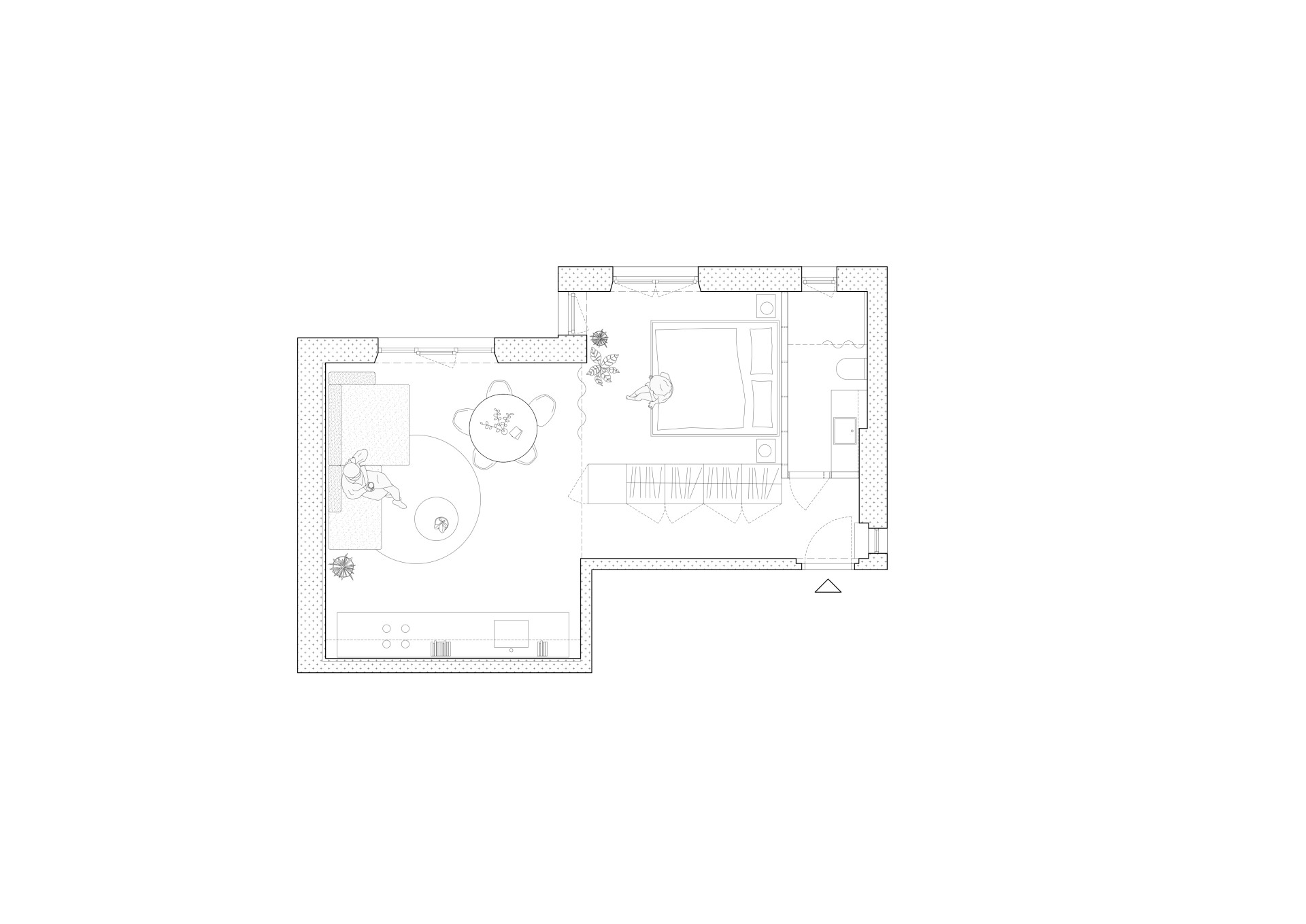
V případě rekonstrukce bytu na jedné z nejznámějších ulic v Bratislavě – Grosslingova, tomu není jinak. Přizemní byt byl kvůli svojí velikosti, a především kvůli prosvětlení pouze z vnitrobloku, poměrně temný a stísněný. Už tak malá plocha byla příčkami rozdělena na dva pokoje – obývací pokoj a ložnici – a koupelnu.
Více k tématu
Úkol, který si architekti z ateliéru Grau Architects společně s klientem stanovili, zněl jasně. Interiér „zvětšit“, provzdušnit a prosvětlit. Vcelku logicky se tedy nabízelo všechny vnitřní příčky odstranit a z rozděleného bytu vytvořit jeden souvislý prostor propojující všechny jeho zóny.

Místo, aby oddělili vstupní prostor od zbytku bytu příčkou, vytvořili architekti zádveří za pomoci delší šatní skříně mezi vstupem a ložnicí. Skříň na rozdíl od stěny nejde až ke stropu, do zádveří se dostává světlo a prostor může plynout.
Zajímavého vylepšení a zvětšení se dočkala také koupelna. Ta je od ložnice oddělena dřevěnou příčkou s vrchním světlíkem. „Příčka v koupelně je u stropu zakončena celoplošným střešním oknem. Světlík přes den osvětluje prostor koupelny a chodby a v noci vytváří na stropě ambientní osvětlení,“ upřesňují Grau Architects.

Příjemným překvapením byl objev původního stropu. Ten se autoři rozhodli odkrýt, aby dotvořil celkovou atmosféru bytu. Strop však nebyl takový, jak původně čekali. „Při rekonstrukci jsme očekávali klasický dřevěný strop, ale objevili jsme unikátní betonový strop s dřevěným záklopem, který dodává bytu na jedinečnosti a autentičnosti“ dodávají.
Atypický strop s jasným členěním se stal dominantním prvkem rekonstrukce, dodávající bytu ojedinělý charakter. Zbytek interiéru je – jak to autoři mají ve zvyku, doplněn o prvky jasných barevných odstínů, které mu dodávají na živosti, v kombinaci s dřevěnou podlahou a nábytkem. Ovšem všeho s mírou, a tak akorát, díky čemuž celý interiér, i přes svou živost, působí jednotně, uceleně a harmonicky.
Rekonstrukce bytu G potvrzuje: bratislavský ateliér Grau Architects patří, co se týče autorského rukopisu, momentálně k nejzajímavějším a nejviditelnějším ateliérům na Slovensku. I tady znovu ukázali svůj citlivý a poetický přístup k zadání a schopnost pracovat s bohatou paletou materiálů a barev.

- Autoři: Andrej Olah, Filip Marčák, Matej Kurajda, Jana Filípková, Dominika Kopiarová
- Ateliér: Grau Architects
- Země: Slovensko
- Město: Bratislava
- Realizace: 2022
- Užitná plocha: 38 m²