 
					
                                            Hravá barevnost. Nízkonákladová přístavba rozšířila rodinný dům pro pětičlennou rodinu v Londýně
Zástavba řadových domů v Londýnské čtvrti Islington je dosti monotónní. Architekti ze studia Artefact ji oživili přístavbou rodinného domu, která hraje barvami.
Jan Bureš , 25. 8. 2023
Sídliště Grove ve čtvrti Islingtonu v Londýně pochází z 80. letech 20. století. Skládá se z architektonicky nevýrazných a monotónně se opakujících dvoupatrových řadových domů, které mezi sebou mají soukromé zahrady, které od ulice dělí slepé cihlové stěny.
Do tohoto kontextu si pětičlenná rodina pozvala místní architekty ze studia Artefact, aby jim pomohli dům rozšířit do zahrady. Architekti se na tento kontext rozhodli zareagovat kontrastem a monotónní unifikovanost sídliště v zahradě narušit vzdušnou barevnou přístavbou s osobitým architektonickým jazykem.
Více k tématu
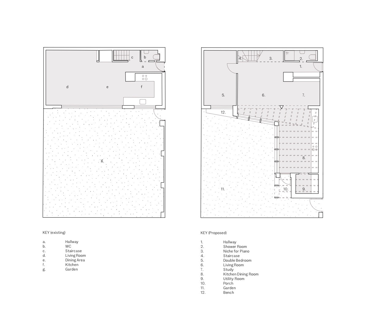
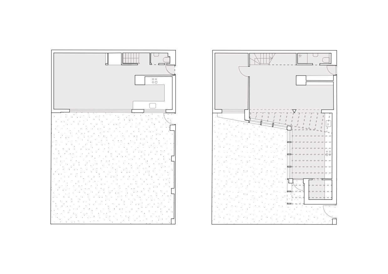
„Zadáním bylo vytvořit novou ložnici, technickou místnost, kuchyň, obývací pokoj a jídelnu. Tyto vzájemně propojené, ale odlišné místnosti se otáčejí kolem trojúhelníkového modrého sloupu a vytvářejí chvíle k odpočinku, vaření, studiu, práci či hře na klavír,“ upřesňují autoři.
 
Hlavním těžištěm nového vnitřního prostoru je právě výrazný modrý trojúhelníkový sloup, kolem kterého se otáčí nově rozšířený obytný prostor. Díky tomuto konceptu si dům získal název Pirouette House. Trojúhelníkový sloup vyznačuje přechod nového a starého, nachází se totiž v místně původní stěny.
Přístavba má tvar písmene L a skrze velkorysou prosklenou stěnu, kterou v rytmicky dělí červené dřevěné nosníky, se otevírá do zahrady. V podélné části je umístěna dlouhá kuchyňská linka, jídelna a technická místnost.
 
Barevná paleta interiéru je doplněna bíle natřeným obkladem stěn, žlutou knihovnou a výrazným stropem s přiznanými dřevěnými vazníky. Celý dům je vlastně jakousi oslavou dřeva jako stavebního materiálu v různých podobách. Kombinace výrazných barev, prosvětlení a příjemné dynamiky prostoru dodává celému interiéru vzdušnost a nevídanou lehkost.
„Bylo vzrušující vytvořit expresivní, hravou přístavbu, která ve svém prostředí působí velmi nečekaně. S ohledem na uhlíkovou náročnost a náklady byl náš návrh cvičením v tom, jak využít snadno dostupné dřevěné výrobky k vytvoření osobitého charakteru. Nízkonákladový a nízkouhlíkový dům proměnil životní prostředí mladé rodiny,“ doplňují architekti.
 
A co klienti? „Artefact odvedli skvělou práci a proměnili obyčejný dům ve skrytý klenot v srdci Islingtonu. Maximálně využili stávající prvky a zároveň vytvořili jedinečný prostor, který naší rodině dokonale vyhovuje. Navíc byli nápomocní po celou dobu od návrhu, žádosti na úřadě až po výběr světel v koupelně,“ uzavírají spolupráci spokojená pětičlenná rodina.
- Ateliér: Artefact
- Země: Velká Británie
- Město: Londýn
- Realizace: 2022
- Dodavatel: MM Projects
 
                             
                             
                             
                             
                             
                                 
            		 
            		 
                             
                             
                             
                             
                             
                             
                             
                             
                             
                             
                             
                             
    
	 
            		 
            		 
            		 
            		 
            		 
            		 
            		 
            		 
                     
                     
                     
            		 
            		 
            		 
            		 
            		 
                     
					 
                                                         
                                                         
                                                         
                                                         
				 
				 
				 
				 
				 
				 
				 
				 
				 
				 
				 
				 
				 
				