Za 150 let bude v plné kráse. V památníku v Letech vysadili les, který bude pomalu růst jako se pomalu sbližují Češi a Romové
Krajinářští architekti léčí místo, kde byl za 2. světové války koncentrační tábor Romů a Sintů. Vznikl tu les a louka. Součástí památníku v Letech je také návštěvnické centrum s výstavou – otvírá 12. května.
Karolína Vránková , 2. 5. 2024
„Nechtěli jsme nic monumentálního, žádný pomník, říkali jsme si, že nejlepší bude jenom naznačit. Mysleli jsme, že by se tím dalo odžít nebo napravit, co se tu stalo,“ popsala to Lucie Vogelová z krajinářského ateliéru Terra Florida v rozhlasovém pořadu Bourání v době, kdy spolu s kolegy zvítězila v mezinárodní architektonicko-krajinářské soutěži.

Hlavním pomocníkem napravování a léčení je tu příroda. Přímo na místě tábora vznikla louka. Kolem je chodník ve tvaru betonové kružnice a v ní jsou na kovových proužcích jména všech vězněných. Opodál je vysazený smíšený les. Sazenice pochází z nedalekého schwarzenberského panství. Zatím jsou malé, budou ale pomalu růst a les bude „za 150 let v plné kráse,“ jak říká další z autorů, krajinářský architekt Jan Sulzer. „Zajímavé je, že pozůstalí se toho možná ani nedožijí, ale chtěli to tak pro svoje děti a vnoučata,“ vysvětlil. Les bude růst pomalu, a i to má symbolickou sílu – je to jako pomalé sbližování Čechů a Romů.
Květiny, stromy, informace
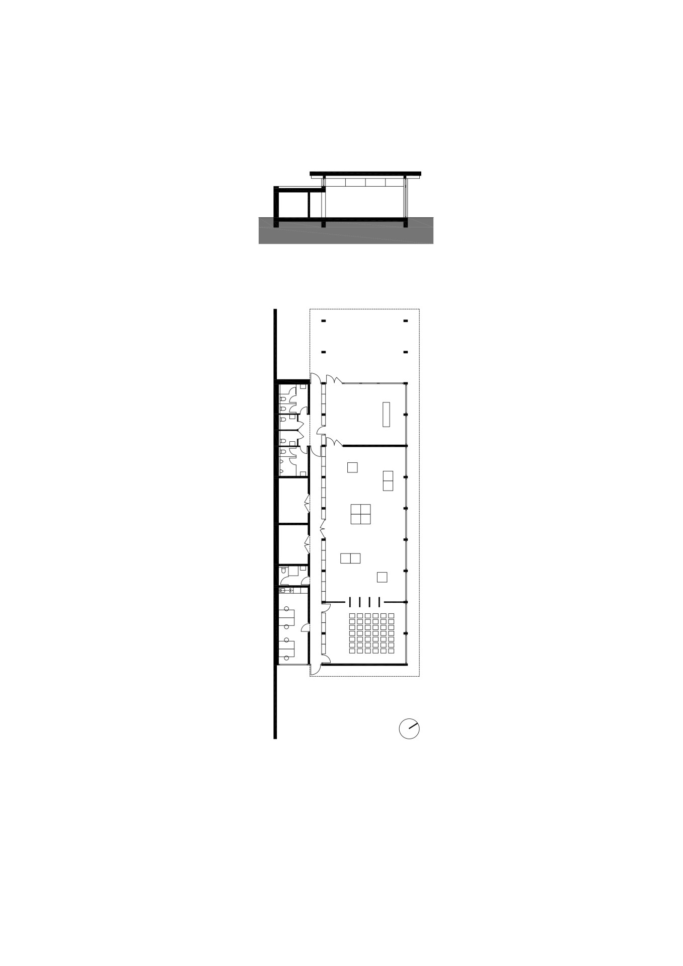
Zatím je vše čerstvě vysazené a více méně holé. Postupně se však začnou zelenat i další pasáže: květinová „peřina“ na táborovém hřbitově či přísný rastr stromů dřezovců u vstupu. Každá má svou symboliku. Vše o táboře i památníku se návštěvník dozví v nové budově návštěvnického centra od studia Stempel&Tesař architekti. Zde budou k vidění také některé předměty, nalezené při archeologickém průzkumu - drobnosti jako hřebínek nebo figurky z Člověče nezlob se nejlépe připomínají, že tady trpěli konkrétní lidé. A že během 2. světové války se na nich páchaly zločiny.

V Německu došlo k označení „cikánů“ za „gaunerskou populaci“ už v roce 1933 a od té doby se pronásledování Romů v Německu přiostřovalo. Také v Protektorátu Čechy a Morava se přijímala protiromská opatření: v roce 1939 to například byl zákaz kočování, v roce 1940 byly otevřeny kárné tábory pro „osoby práce se štítící“ – jeden v Hodoníně a druhý právě v Letech. V roce 1942 byl vydán rozkaz o „potírání cikánského zlořádu“ a do koncentračních táborů se začaly ve velkém posílat Romové, často celé rodiny.
Kapacita tábora v Letech byla mnohonásobně překročena, ve špatných podmínkách zde bylo vězněno celkem kolem 1300 lidí; většina z nich byly děti. Vypukla zde tyfové epidemie – na tyfus nebo dalším strádáním zde zemřelo přes tři sta lidí, kteří byli pochováni v mělkých hrobech vedle tábora. Ostatní byli transportováni do Osvětimi, kde zahynuly další stovky.
Od vepřína k památníku
V 70. letech vznikl na místě velkokapacitní vepřín a o existenci koncentračního tábora se nikde nemluvilo. Až na začátku 90. let novinář Markus Pape, historik Ctibor Nečas a další upozornili na fakt, že na místě vepříná byl romský koncentrační tábor, řízený českými četníky.
Více k tématu
Až v roce 2017 český stát za 450 milionů vepřín vykoupil a došlo k demolici – na místě zbyla pouze dvě torza hal jako připomínka této etapy. V roce 2020 proběhla mezinárodní soutěž. Zvítězil návrh krajinářských architektů Jana Sulzera a Lucie Vogelové a architektů Jana Světlíka, Vojtěcha Šedého a Filipa Šefla.
Otevření proběhlo na konci dubna za účasti prezidenta Petra Pavla i premiéra Petra Fialy:„Nebyl to jen zločin někoho jiného, ale byl to i zločin náš. Toto vyrovnávání, jakkoli je nepříjemné, je nutné,“ řekl ve svém projevu. Louka a les by mohly pomoci.
- Ateliér: Terra Florida, Stempel Tesař architekti, Jan Sulzer
- Autoři: Jan Sulzer, Lucie Vogelová, Ján Stempel, Jan Jakub Tesař
- Země: Česká republika
- Město: Lety u Písku
- Autoři koncepce a krajinářské architektury: Jan Sulzer a Lucie Vogelová
- Autoři budovy návštěvnického centra: Ján Stempel a Jan Jakub Tesař
- Generální projektant: TERRA FLORIDA
- Projekt: 2021-2022
- Realizace: 2024
- Plocha pozemku: 105 000 m²
- Zastavěná plocha návštěvnického centra: 572 m²
- Hrubá podlažní plocha návštěvnického centra: 434 m²
- Čistá podlažní plocha návštěvnického centra: 393,4 m²
- Objem stavby návštěvnického centra:: 2 600 m³
- Investor: Muzeum romské kultury
- Zhotovitel: Protom Strakonice
- Fotograf památníku: Benedikt Markel
- Fotograf návštěvnického centra: Filip Šlapal