
Mumifikace struktury. Rodný statek Josefa Mašína v Lošanech přeměnili architekti na Památník tří odbojů
Malá obec Lošany na Kolínsku je známa především jako rodiště generálmajora Josefa Mašína. Po dekádách chátrání se historický statek jeho rodiny dočkal pozoruhodné proměny na Památník tří odbojů, jehož návrh vypracovalo architektonické studio IXA společně se studenty Fakulty architektury ČVUT v Praze.
EARCH.CZ , 16. 1. 2023
„V roce 2017 získala paní Zdeňka Mašínová po téměř třiceti letech od pádu komunistického režimu rodný statek svého otce Josefa Mašína v Lošanech. Ve stejném roce vznikl spolek s cílem vytvořit zde veřejně přístupný Památník tří odbojů a jeho prostřednictvím uchovat památku a odkaz generálmajora Josefa Mašína a jeho rodiny, která ve 20. století přinesla velké osobní oběti v boji za vlast, svobodu a demokracii,“ objasňují autoři návrhu ze studia IXA počátek projektu.
Více k tématu
Tématu proměny Mašínova statku na památník se architekti Klára a Tomáš Hradeční věnovali společně se studenty a studentkami Fakulty architektury ČVUT v Praze už v rámci svého školního ateliéru. Jeden z těchto studentských projektů, který vypracoval Walbert Schmirler, navíc zvítězil ve fakultní soutěži Olověný Dušan jako nejlepší architektonický návrh roku 2018.

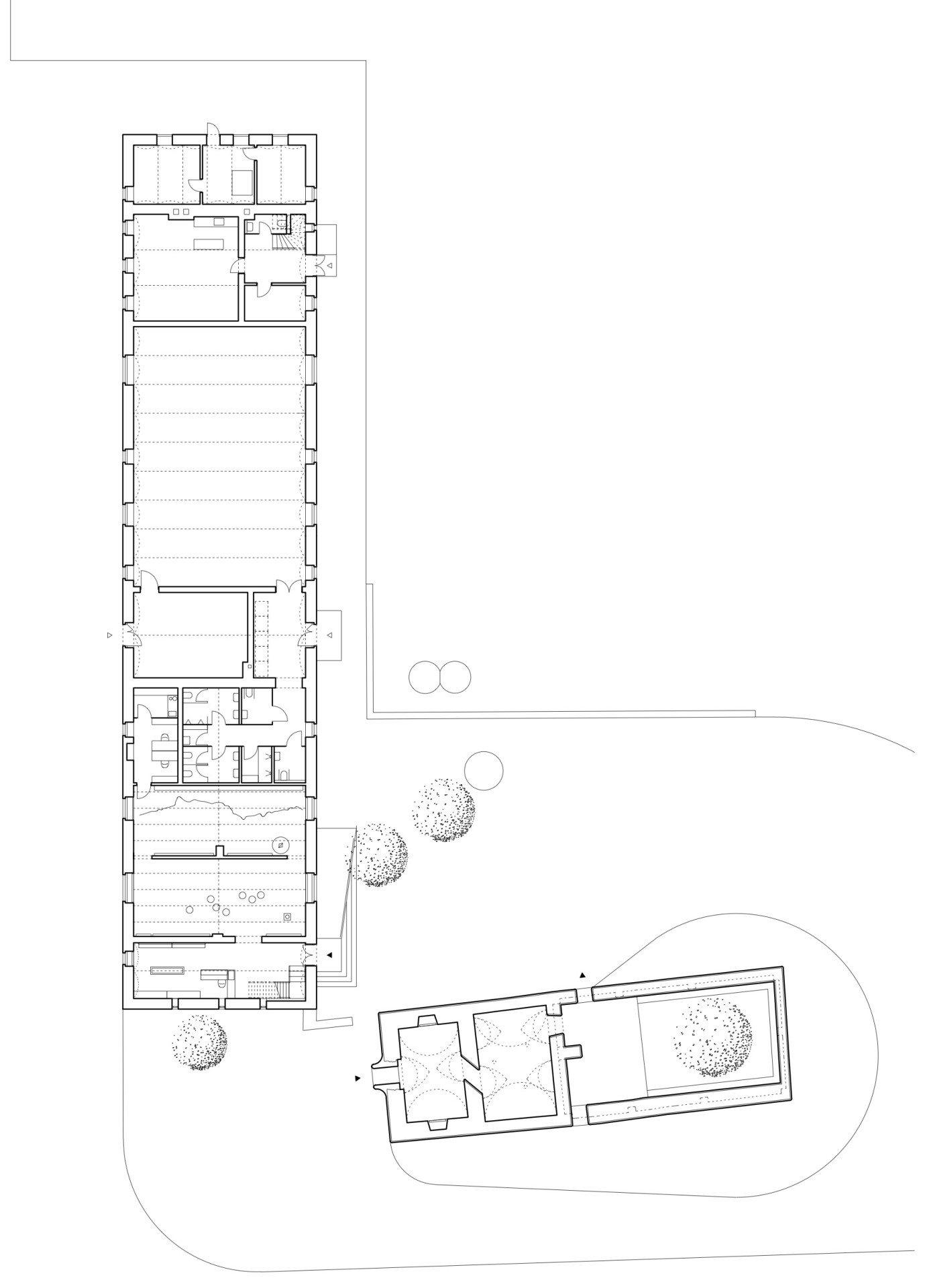
Rod Mašínů obýval statek v Lošanech po staletí, takže v něm byl stále přítomný silný historický odkaz. Architekti pracovali jak s rodinným domem, tak i bývalým zemědělským objektem a přilehlým pozemkem. „Památník chápeme jako místo uchování paměti připomínající nejenom podmínky vzniku a života tří odbojů, ale i jejich souvislosti a integritu,“ říkají architekti.
Statek byl po nástupu komunistů znárodněn a v 50. letech přešel pod správu JZD, kvůli čemuž postupně chátral. A protože se oprav nedočkal ani po revoluci, dochoval se do roku 2017 ve velmi zbídačeném stavu, který tak zásadně ovlivnil architektonické řešení památníku.

„Původní rodný dům Josefa Mašína ztratil mnohými přestavbami svůj charakter. Stopu autenticity tak nese především zdivo a klenuté místnosti v přízemí, které je zachované a ukryté pod skořápku stříkaného betonu. Ten plní ochrannou a stabilizační funkci. Ostatní měkké části objektu jako nepůvodní okna a dveře, krov a trámový strop byly odstraněny. S odkazem na umělkyni Rachel Whiteread lze říci, že se jedná o mumifikaci základní struktury, do jejíchž útrob lze vstupovat a procházet skrze ně,“ vysvětlují architekti.
Rodný dům je rozdělen do tří částí. V protilehlých nikách vstupní místnosti je instalován text motáku Josefa Mašína, ve kterém se loučil se svou ženou a dětmi v předvečer popravy. Do klenby navazující druhé místnosti nechali architekti vsadit trojici světlovodů v barvách československé trikolóry symbolizující tři odboje. Větší část domu však zůstala nezastřešená a v jejím středu roste moruše jakožto symbol rodu Mašínů.

Expozice věnovaná historii statku, rodu Mašínů a třem československým odbojům pak najdeme v části přízemí bývalého hospodářského stavení, přičemž jeho zbylé prostory se mají rekonstrukce teprve dočkat.
„Rozlehlý hospodářský dvůr původního statku zůstává prázdný, připravený přijmout větší skupiny návštěvníků či sloužit jako zázemí při slavnostních a společenských akcích s prezentací historie odbojové činnosti,“ dodávají architekti.
- Autoři: Tomáš Hradečný, Klára Hradečná, Julie Kopecká, Benedikt Markel, Bronislava Volentičová, Silvia Snopková, Vladěna Bockschneiderová, Jakub Kochman
- Ateliér: IXA
- Spolupráce: Michael Baroch, Dominika Kovandová, Branislav Kožej, Magdalena Piterková, Patrik Ölvecký
- Země: Česká republika
- Město: Lošany
- Adresa:: Lošany 1, 280 02 Kolín
- Investor: Mašínův statek — památník tří odbojů, z. s.
- Realizace: 2022
- Projekt: 2019
- Multimediální řešení: st.dio
- Osvětlení: Etna iGuzzini