
Architektura
/
rodinné domy
Zahradu atypického rodinného domu na Vysočině rozšiřuje střecha garáže
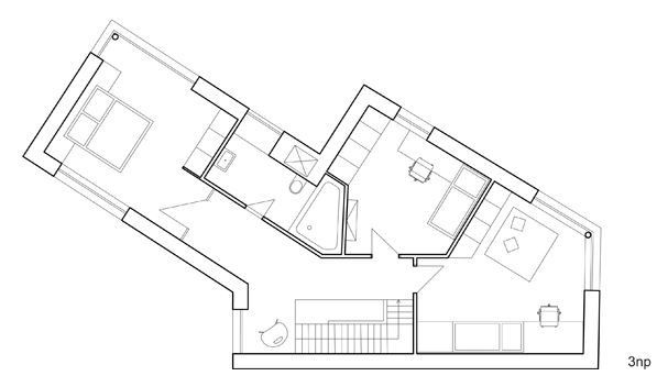
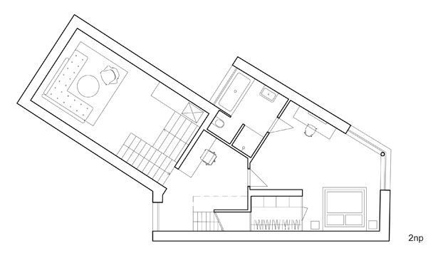
V malé obci Pacov na Vysočině stojí na rozhraní nové a staré zástavby velmi atypický rodinný dům. Po hmotové stránce se jedná o dva výrazné objemy - vertikální a horizontální. První z nich navazuje na okolní zástavbu a slouží obytným prostorům, druhý pak funguje jako garáž, jejíž střecha ovšem rozšiřuje plochu zahrady a dodává jí umělý svah.
ateliér 111 architekti , 26. 12. 2017
Více k tématu
- Autoři: Jiří Weinzettl, Lukáš Smetana
- Ateliér: ateliér 111 architekti
- Země: Česká republika
- Město: Pacov
- Realizace: 2011
- Zahrada: Zdeněk Marek