Architektura / rodinné domy

Zrekonstruovaná stodola od Studia Raketoplán oslavuje rustikální způsob života

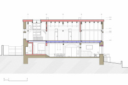
Stodola z roku 1882 v malé obci ve středních Čechách po rekonstrukci slouží jako základna pro příjemný venkovský život. Studio Raketoplán při návrhu dbalo na zachování původních prvků a využití autentických materiálů. Středobod domu tvoří otevřený prostor propojující kuchyň s velkorysou hlavní místností pro setkávání obyvatel. Architekti tak chtěli poukázat na přirozenost pohybu našich předků, kteří pobývali především ve společných světnicích. Oproti starým časům se stodola krásně prosvětlila, přibylo několik oken a velký světlík.

Studio Raketoplán , 29. 5. 2018

  • Ateliér: Studio Raketoplán
  • Země: Česká republika
  • Realizace: 2016
  • Užitná plocha: 300.00m<sup>2</sup>
  • Zastavěná plocha: 145.00m<sup>2</sup>
  • Plocha pozemku: 2 140.00m<sup>2</sup>

Mohlo by vás zajímat

Generální partner
Hlavní partneři