Zvenku tradiční, zevnitř inovativní dům kombinuje dřevo s pohledovým betonem
Na mírně svažitém pozemku poblíž Salzburku navrhlo mladé lokální studio Dunkelschwarz rodinný dům z přiznaných materiálů, který svou formou navazuje na tvarosloví sousedních staveb, překvapí však originálně zpracovaným interiérem.
EARCH.CZ , 31. 8. 2022
Dunkelschwarz je mladé architektonické studio sídlící v rakouském Salzburku, které má za sebou zatím jen několik málo realizací. Tou nejčerstvější je rodinný dům v pětitisícové obci Elsbeten na jihovýchodním předměstí Salzburku. Stavba z přiznaného dřeva a betonu je součástí poklidné rezidenční zástavby rodinných domů. Architekti dům pojali kontextuálně a při pohledu zvenčí jej přizpůsobili okolním objektům – má pravoúhlý půdorys, strmou sedlovou střechu a na fasádách dřevo.
Více k tématu
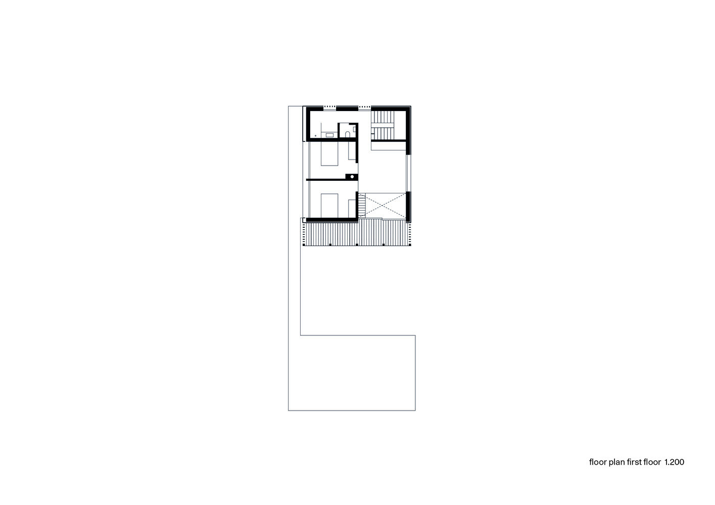
Dům je umístěn v mírném, západně orientovaném svahu a pod třemi nadzemními patry se nachází ještě suterén. Přízemí zahrnuje hlavní obývací prostor s kuchyní a koupelnou. Téměř cele prosklená stěna zaručuje bohatý přísun denního světla. Nad jídelním stolem navíc „chybí“ strop, který supluje síť pro relaxaci a hry dětí, takže se světlo může volně šířit do vyššího patra, kde jsou dvě ložnice s koupelnou. Nevyšší patro osvětlují střešní okna a je téměř bez příček, pouze skleněné zábradlí chrání před úrazem na schodech.

Dřevo je dominantním materiálem jak exteriéru, tak i interiéru. Dřevěné schody ladí s podlahou a obložením stěn a vše doplňuje převážně dřevěný vestavěný nábytek v přirozené povrchové úpravě. Se světlým dřevem tak kontrastuje pouze pár černých prvků, jako je piano, kamna nebo závěsy.

Bezúdržbovost, soukromí, otevřená a světlá atmosféra interiéru, plynulý přechod mezi interiérem a exteriérem – to byla stěžejní přání klientů, která se architektům podařilo naplnit.
- Ateliér: dunkelschwarz
- Země: Rakousko
- Město: Elsbethen
- Realizace: 2021
- Užitná plocha: 292 m²