Dům se sloupy z douglasky od ARCHCON atelieru

Rodinný dům na první pohled zaujme svými mohutnými sloupy z opracovaných kmenů, které podpírají přesah střechy. Douglaska tisolistá kdysi stávala na pozemku, na němž majitelé léta žili ve starším domě. Když bylo nutné stromy porazit, rozhodl se majitel použít jejich kmeny alespoň při stavbě nového domu. Masivní kmeny sám opracoval a nyní tvoří charakteristický prvek celého nového domu.

Nízkoenergetická dřevostavba

S ohledem na místní terénní podmínky i orientaci ke světovým stranám se architekti z Archcon atelier rozhodli zapustit dům mírně do terénu. Volili půdorysný tvar ve tvaru „L“, čímž dosáhli přehledné dispozice, optimálního prosvětlení interiéru i vzniku příjemného zákoutí severní terasy navazující na hlavní obytný prostor. Dům s obvodovou konstrukcí z masivních dřevěných panelů splňuje parametry nízkoenergetické stavby, čemuž napomáhá i řízené větrání s rekuperací a kvalitní okna s izolačním trojsklem. Dřevěný obklad fasády tvoří cedrové dřevo bez nátěru. Meziokenní pilíře zvýrazňuje decentní změna obkladu fasády v podobě horizontálně skládaného cedrového šindele. Jako kontrast k medovému odstínu rustikální fasády použili autoři hliníková okna Schüco v antracitové barvě.

 

Archcon - dům se sloupy z douglasky

 

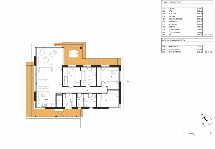
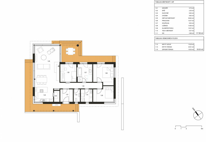
Přehledná dispozice s dostatkem přirozeného světla

Vstupní dveře výrazné červené barvy nenechávají přicházející hosty na pochybách, kudy vstoupit. Hned za nimi majitele vítá dlažba s motivem stromu coby symbolu rodiny. Na zádveří umístěné zhruba ve středu dispozice navazuje chodba, z níž se dostaneme do všech navazujících částí domu. Dispozici rozdělili architekti na dvě zóny. Severozápadní část zaujímá hlavní obytný prostor spolu s jídelnou a kuchyní se spíží. Prosklení na celou výšku místnosti zajišťuje dokonalé propojení s okolní zahradou. Díky posuvným dveřím se obytný prostor navíc elegantně zvětší o navazující terasu. Srdce domu představuje výrazný krb s místem pro relaxaci.

Kuchyni prosvětluje rohové okno, které přispívá vizuálnímu propojení se stávajícím domem a přístupovou cestou. Do jihovýchodní části domu situovali architekti klidové funkce. Nalezneme zde ložnici, pokoj pro hosty a pracovnu, koupelnu s výhledem do zahrady, samostatné WC a technickou místnost. Ze všech místností na severní straně domu je možné vyjít na průběžnou krytou terasa, která nabízí příjemné posezení v návaznosti na hlavní obytný prostor.

 

Archcon - dům se sloupy z douglasky

v lese. Okna na celou výšku místnosti umožňují ničím nerušený výhled - foto © Martin Zeman

 

Osm druhů dřeva

Interiér domu se nese ve znamení dřeva – dominují mu cedrové obklady na stropech a dubové podlahy a nábytek. Koupelnu pak zdobí dřevo olivové, pokoj hostů je pro změnu březový. Symbolické propojení nového a starého tvoří jídelní stůl s intarzií třešňového dřeva ze zahrady do dubového základu. Další tři druhy dřeva pak nalezneme v exteriéru - smrkové dřevo tvořící přesah střechy, modřín, který byl použit na podlahy terasy a ochozů, a již zmiňované kmeny douglasky.

Architekti z Archcon atelier vytvořili rodinný dům, který voní dřevem a kde je dostatek přirozeného světla jednou z priorit.

 

Archcon - dům se sloupy z douglasky

 

  • Ateliér: ARCHCON atelier, s. r. o.
  • Země: Česká republika
  • Realizace: 2018
  • Generální dodavatel: DŘEVOSTAVBY BISKUP, s. r. o.
  • Datum projektu: 2017
  • Realizace: 2018
  • Užitná plocha: 117.58m2
  • Zastavěná plocha: 175.60m2
  • Poznámka: Foto © Martin Zeman

Klíčová slova:

dřevostavby

Mohlo by vás zajímat

Generální partner
Hlavní partneři