Archholiks - Dom Hora

Novostavba rodinného domu sa nachádza na okraji malebnej dediny Mošovce pod úpätím pohoria Veľká Fatra. Pozemok s mierne svažitým klesaním na juh je situovaný na bývalých “záhumniach”, ktoré sú pre turčiansku dedinskú architektúru typické drevenými stodolami s čiastočne murovanými stenami a veľkou stanovou strechou. Tradičný vizuálny vzhľad objektov vidieka bol východiskovým bodom pri tvorení hmotovej skladby, materiálového riešenia fasády a pri formovaní strešnej krajiny.
Rodinný dom tvorí kompaktná základňa obdĺžnikového tvaru s dvojitou sedlovou strechou, ktorá sekundárne pripomína štylizáciu najatraktívnejších kopcov Veľkej Fatry - Tlstú a Ostrú. Ďalším aspektom, ktorý výrazne ovlivnil koncepciu návrhu a priestorové radenie domu, boli potenciálne výhľady na okolitú scenériu hôr a ich zachovanie aj pri budúcom zastavaní okolitých pozemkov.
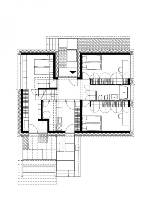
Vertikálne sa dispozícia rozkladá na výškovo rôznych úrovniach, ktoré vytvárajú priestorovú hru - Raumplan. Prvá a druhá úroveň sú čiastočne pod úrovňou terénu. Predstavujú nočnú - súkromnú časť domu. Do objektu sa vstupuje zo severovýchodnej strany cez prestrešené závetrie na 2. úroveň, na ktorej sa nachádza vstupná hala, detské izby, kúpeľňa a technická miestnosť. Z nej je možnosť priameho východu do záhrady. Prvá úroveň, nižšia o 1m od vstupnej, poskytuje komfort rodičom v podobe spálne, samostatnej toalety, priechodného šatníka a kúpeľne so sprchovým kútom, z ktorej je možný východ do pátia. Zo vstupnej haly na 2. úrovni vedú schody na ďalší tretí level, kde je navrhnutá kuchyňa s jedálňou s výstupom na terasu a na najvyššiu platformu slúžiacu ako obývacia izba s pracovným kútom. Tretia a štvrtá úroveň sú prepojené a vytvárajú veľkorysý životný priestor. Invertným radením dennej a nočnej časti v rámci domu sa zabezpečili výhľady na okolitú prírodu a scenériu Veľkej Fatry. Zakopaním nočnej časti si zároveň priestory jedálne a obývacej izby zachovali priamy kontakt s terénom a v neposlednej rade nočná časť získala na tepelnej pohode počas teplých letných dní.
Z konštrukčného hľadiska sa jedná o stavbu s kombinovanými konštrukčnými systémami. Spodná stavba (1. a 2. úroveň) je železobetónová s priznaným betónom v interiéri s otlačenou kresbou dreva z debnenia vyrábaného na mieru. Horná stavba je drevostavba so stĺpikovou konštrukciou so záklopom z veľkoformátovej biodosky. Aj v dennej časti je smrekový obklad výrazným interiérovým prvkom, ktorý dodáva priestoru jedinečnosť a útulnosť. Výraz stavby z exteriéru odzrkadľuje konštrukčný systém - spodná stavba je zateplená striekanou tepelnou izoláciou ošetrenou sivým epoxidovým náterom s UV ochranou. Jej prevedenie a nerovnosti opäť poukazujú na fasády starých sýpok a humien. Na hornej stavbe je prevetrávaná fasáda s dreveným obkladom rôznych profilov zo sibírskeho smrekovca kladená vertikálne a vytvárajúca reliéf. Okenné otvory a vstupné dvere sú v prevedení drevohliník. Na streche je použitá plechová krytina.
Interiér rodinného domu je jednoduchý, funkčný, udržateľný. Použité sú prírodné materiály doplnené čiernymi akcentami a kombinovaním drevených plôch so striekanou MDF v čiernej farbe. Interiér domu materiálovo odzrkadľuje konštrukčným systém stavby, zemité farby a kresba dreva sú jeho silným nositeľom.
Predpolie domu je tvorené kombináciou betónových veľkoformátových plôch so štrkom, záhrada je rozdelená na viacero častí, ktoré sa líšia svojou funkciou. K segregácii dopomohla modelácia terénu. Doplnkovou stavbou na pozemku je lodný kontajner, ktorý slúži z 2/3 ako sklad náradia a v 1/3 je navrhnutá sauna so sprchou a pohotovostným wc.
- Autoři: Michal Tartaľ, Jana Tartaľová
- Ateliér: ARCHHOLIKS
- Země: Slovensko
- Město: Mošovce
- Datum projektu: 2016
- Realizace: 2019
- Zastavěná plocha: 102.30m2
- Plocha pozemku: 900.00m2
- Podlažná plocha: 160,30 m2
Související architekti
Související ateliéry a firmy
Mohlo by vás zajímat






































