Archport - RD Bohnice

Dle dohledaných podkladů byl prapůvodní dům postaven ve třicátých letech dvacátého století a dále pak kompletně přestavěn v sedmdesátých letech. Před navrhovanými úpravami měl dům komplikovanou a nepřehlednou dispozici přízemí, převážně neobytné podkroví a sklepní prostory s technickým zázemím ve velmi špatném stavu. Původní rodinný dům měl sedlovou střechu s výrazným sedlovým vikýřem do ulice a malý přístavek s hlavním vstupem a koupelnou směrem k průjezdu. Na pozemku se dále nacházela dvougaráž, která byla skrze původní vjezd pro většinu dnešních osobních automobilů nepřístupná.
Rodinný dům se nachází na začátku (konci) skupiny řadových domů v Praze v Bohnicích. V porovnání s ostatními domy v ulici (v řadě) zůstal původní objekt „zakrslý“ a svým měřítkem neadekvátně ukončoval souvislou řadu domů. Naším cílem bylo tuto souvislou řadu vhodně zakončit domem se „správnou velikostí“. V tom nás však limitoval drobný „detail“ v podobě okna ve štítové stěně sousedního objektu, které i přes snahu diskutovat s vlastníky muselo být zachováno.
Rozhodli jsme se proto blok domů zakončit nárožním hliníkovým vikýřem, který udává charakter uliční fasádě a výškově navazuje na římsy sousedních objektů. Kompozice nárožního prvku je doplněna o plechovou římsu, ve které je schovaný okapový žlab. Zbytek domu je omítnut světle šedou tenkovrstvou omítkou. Sedlová střecha je opláštěna betonovými střešními taškami zinkově šedé barvy.
V rámci úprav jsme dům očistili o veškeré přebytečné přístavky. Detailními průzkumy jsme zjistili, které části konstrukce domu je vhodné zachovat a které je třeba odstranit. S ohledem na zjištěný stav konstrukcí byly z původního domu zachovány pouze přízemní obvodové stěny.
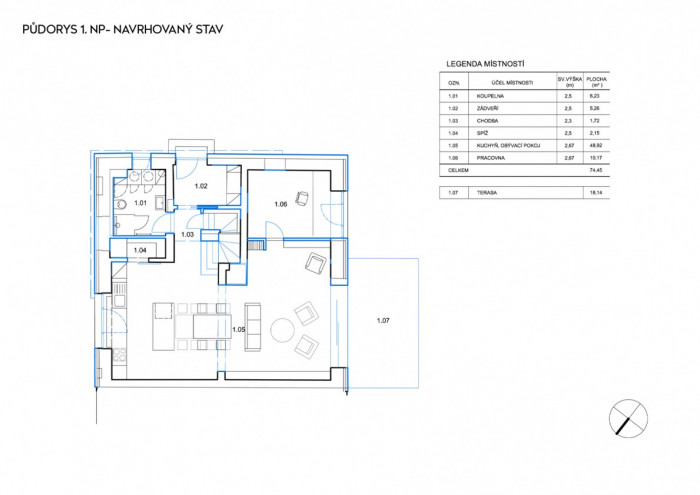
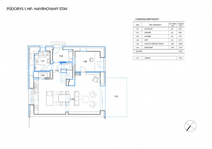
Základním požadavkem bylo maximálně zefektivnit stávající dispozici a na malé zastavěné ploše vytvořit plnohodnotný rodinný dům pro čtyřčlennou rodinu. Výsledným řešením jsou maximálně otevřené prostory a minimální komunikační plochy, které by domu ubíraly cenné metry čtvereční, byť jsou v navrhované dispozici zřetelné stopy původního domu, zejména v přízemí. Tím nejdůležitějším prostorem v domě je obývací pokoj s kuchyní s přímou návazností na venkovní terasu a zahradu. Těžištěm obývacího pokoje je tmavý blok s krbovou vložkou. Prostor je opticky dělen výrazným překladem v místě původní nosné stěny. Na obývací pokoj navazuje směrem do zahrady pracovna, která je skryta za „tajnými“, posuvnými dveřmi.
V podkroví je dominantním prostorem schodišťová hala. Středobodem této haly je kvádrový piedestal pro interiérovou zeleň, která hraje v interiéru domu významnou roli i v dalších místnostech. Pokoje a ložnice jsou vybaveny vlastními úložnými prostory a skýtají dostatek soukromí. Koupelna v podkroví je koncipována jako prostor pro relaxaci s minimem rušivých elementů.
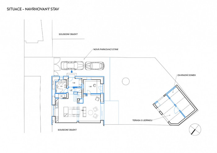
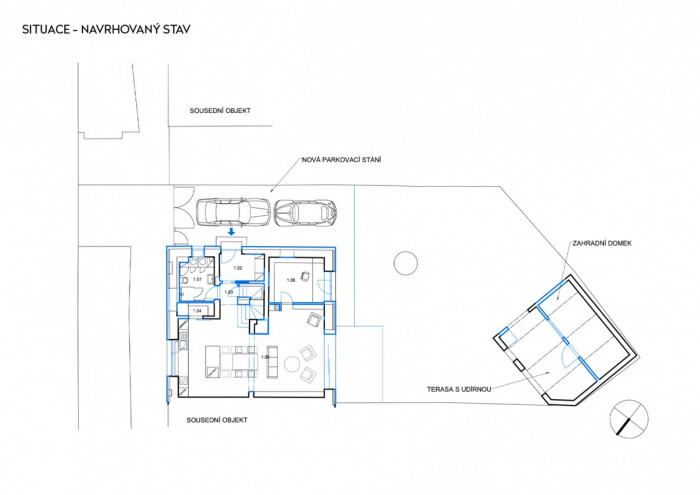
Původní garáž na pozemku byla přestavěna na zahradní altán se saunou, malým dvorkem s grilem a úložným prostorem pro zahradní nábytek a nářadí. Měřítko garáže bylo zachováno, jen jsme ho podpořili vertikálou komína vytvářející dominantu zahrady. Střecha garáže byla osázena zelení.
- Autoři: David Dvořák, Vojtěch Hybler
- Ateliér: Archport
- Spolupráce: Stanislav Hybler
- Země: Česká republika
- Město: Praha - Bohnice
- Datum projektu: 2014
- Realizace: 2017
- Užitná plocha: 174.00m2
- Zastavěná plocha: 108.00m2
- Plocha pozemku: 362.00m2
- Realizační firma domu: JTM Partners s.r.o.
Související projekty
Související architekti
Související ateliéry a firmy
Mohlo by vás zajímat


















































