Atelier Hoffman - Bývalá Výrobna uzenin

Uprostřed nuselského vnitrobloku jsme oživili výrobní objekt uzenin věhlasného nuselského řezníka Augustina Šebka. Mimo jiné Šebkův bratranec byl BIG JOE Z NUSLÍ – Josef Šmejkal, zápasnický mistr Evropy, který přepral holýma rukama býka, vařil pivo v Mnichovicích a zvítězil nad Gustavem Frištenským.
Vždy nás překvapí, co zapomenutých příběhů se dá dohledat v ruinách domů, jež často stojí mimo centrum našeho zájmu. To je i příběh našeho domu. Tři činžovní domy postavené na počátku 20. století patřily původně jedné rodině a k nim byla v roce 1926 ve dvoře dostavěna velkovýrobna uzenin, která zásobovala uzeninami nejen vlastní obchůdek, ale i široké okolí. Postupem času, jak se majetky dědily, zestátňovaly a privatizovaly, tak se z bývalého uzenářského impéria stal jeden z mnoha „obyčejných“ dvorních objektů. Natrvalo opuštěn v 90. letech. Místo s atmosférou a téměř dvacetimetrovým komínem.
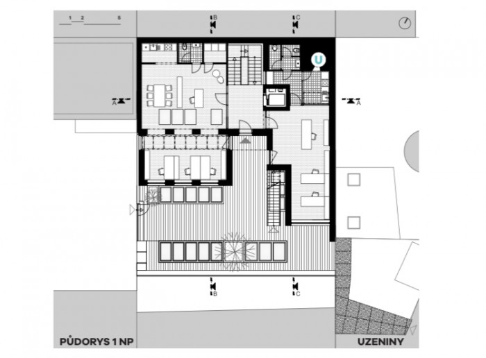
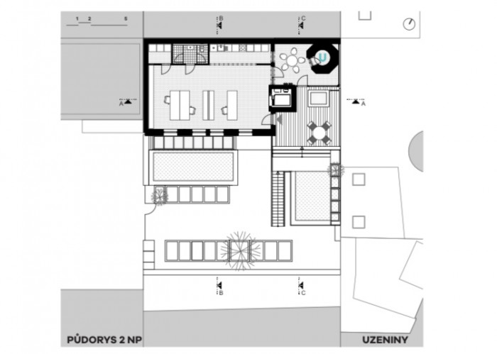
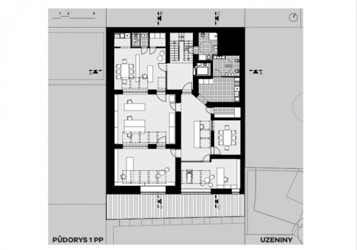
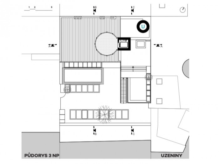
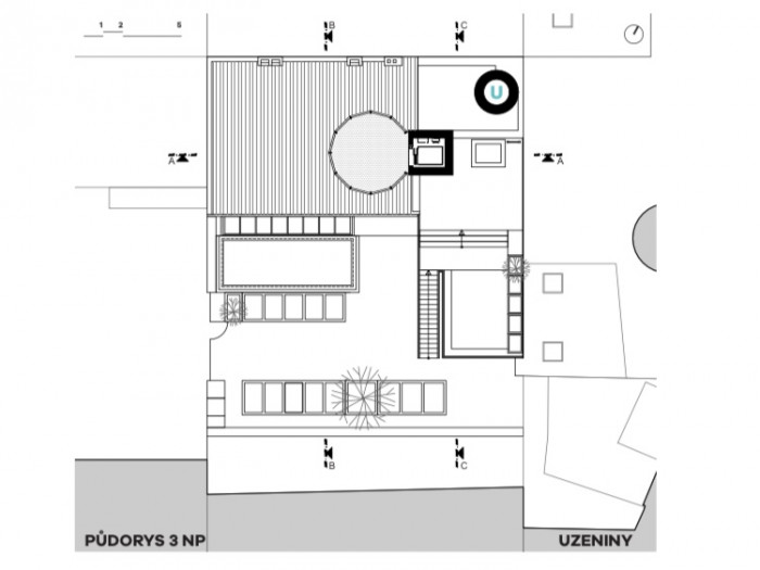
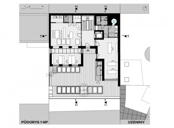
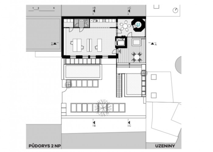
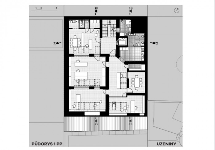
Naší snahou bylo očistit dům od nevhodných stavebních úprav a zachovat nejen jeho industriální charakter, atmosféru místa, ale i příběh jenž se v něm odehrál. Tvar domu se zásadně nemění, až na nově provedené okenní otvory a světlíky, které dovnitř přivádí více světla. Objemové změny spočívají pouze v lehké přístavbě v prvním patře „za komínem“ a zvětšením technické místnosti v patře druhém. Nově je možné vstoupit do komína a nasát vůni uzeného. Všechna podlaží jsou propojena výtahem.
Dispozice a vnitřní uspořádání byly upraveny, aby vyhovovaly novému provozu. Asi největším zásahem je přesun schodiště propojujícího přízemí a suterén do středu dispozice, aby navazovalo na výtah a hlavní vstup na úrovni přízemí. Do patra je zachován samostatný vstup po exteriérovém schodišti, přes terasu. Náladu výrobny uzenin dokreslují všudypřítomné dlaždičky tyrkysové barvy.
- Autoři: Patrik Hoffman
- Ateliér: Atelier Hoffman
- Spolupráce: Pavla Krásová, Peter Panulin
- Země: Česká republika
- Město: Praha 4 - Nusle
- Ulice, číslo: Náměstí Bratří Synků
- Datum projektu: 2014
- Realizace: 2018
Související projekty
Související architekti
Související ateliéry a firmy
Mohlo by vás zajímat
























