RAW - Polyfunkční dům Bratislavská

Polyfunkční objekt je dostavbou proluky ve stávající zástavbě činžovních domů. Dům respektuje uliční čáru ulice Bratislavská. Ve styku se štítem sousedního činžovního domu navržená hmota ustupuje a navazuje na stávající šikmou sedlovou střechu. Západní fasáda domu respektuje návrhové řešení Územního plánu města Brna – uliční čáru nové městské třídy. Dům je navržen jako osmi patrový s jedním podzemním podlažím. Má dvě komunikační jádra a dvorní pavlač. Svojí formou se dům snaží komunikovat na stávající zástavbu kvalitních činžovních domů v historizujícím stylu.
Na fasádě jsou v pravidelném rastru uspořádána velká okna do obytných prostor, jejichž špalety jsou opatřeny omítkou v bílé barvě. Na jihozápadní stranu a na jihovýchodní stranu jsou umístěny polozapuštěné lodžie a balkóny. Fasáda je obložena režnými cihlovými pásky, které svoji strukturou a proměnlivou barevností dodávají stavbě přirozené, drobnější měřítko. Dvoupodlažní parter je obložen černou žulou, výkladce jsou opatřeny obloukovými skly na nárožích a leštěnými nerezovými zasklívacími profily. Hmota osmého patra je výškovým akcentem nově vzniklého nároží budoucí nové městské třídy.
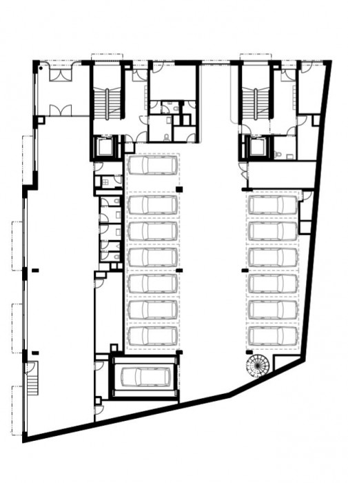
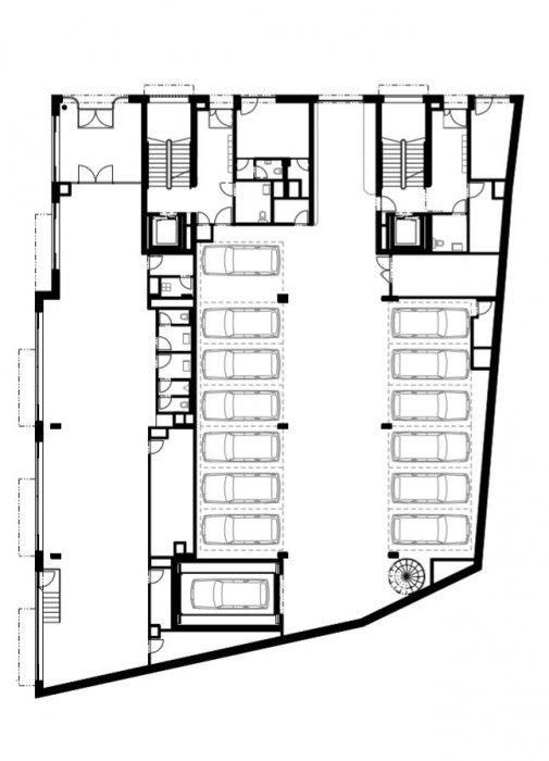
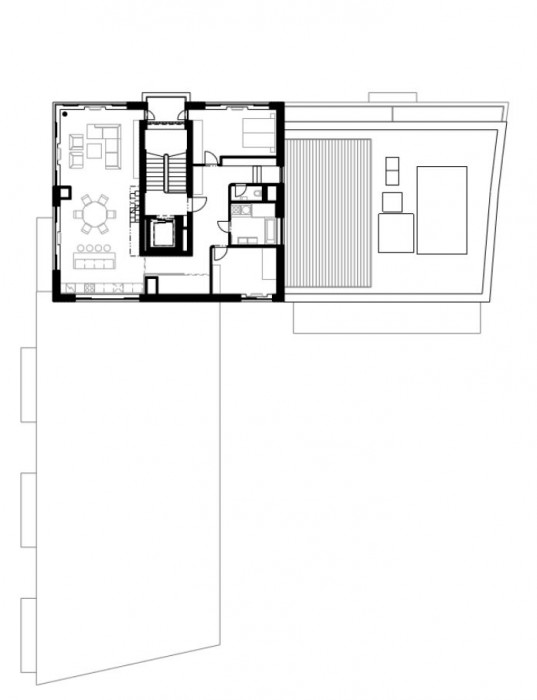
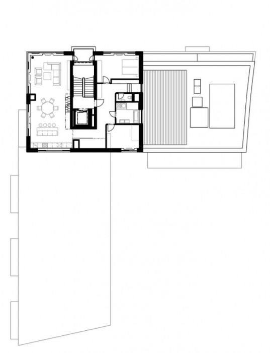
Objekt obsahuje komerčními prostory v 1.NP, administrativou v 2.NP. a byty ve 3.-8. NP. V 1PP jsou umístěny garáže a technické místnosti. Z ulice Bratislavské je situován vjezd do garáží, ve kterých je umístěn auto-výtah, který obsluhuje parkovací stání v 1NP a 1PP. Ve 2. NP se nachází administrativní plochy s adekvátním sociálním, hygienickým a skladovým zázemím. Ve 3.-8 NP jsou bytové plochy. Kategorie bytů jsou 2+kk, 2+1, 3+kk. Všechny byty mají buď balkón, lodžii nebo terasu.
- Autoři: Tomáš Rusín, Ivan Wahla
- Ateliér: Atelier RAW
- Spolupráce: Libor Šupler
- Země: Česká republika
- Město: Brno
- Ulice, číslo: Bratislavská, 22+24
- PSČ: 60200
- Realizace: 2017
- Zastavěná plocha: 913.00m2
- Spolupráce: Promed s.r.o.
Související projekty
Související architekti
Související ateliéry a firmy
Mohlo by vás zajímat




















