Atelier RAW - Vila Hrázní
Vila je situována na západním svahu brněnské přehrady s krásným výhledem na její vodní plochu. Ze tří stran je obklopena stávajícími zahradami a lesem. Podél spodní, západní strany pozemku vede veřejná komunikace. Vila je razantní přestavbou původní mírně funkcionalizující vily, která pravděpodobně měla spojitost se stavbou hráze brněnské přehrady, neboť například příjezdová cesta byla vydlážděna kostkami používanými pro testování pevnosti betonu.
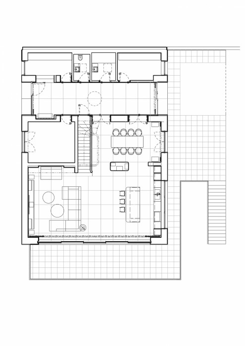
Samotný dům je koncentrován do podoby jednoduchého kubusu s centrální vstupní halou, procházející napříč objektem a jedním středním schodištěm propojujícím všechny tři patra domu. V přízemí se nachází kromě vstupní haly, technického a hygienického zázemí i velkorysý obytný prostor, otevírající se širokou prosklenou stěnou směrem na terasu s výhledem na přehradu a lesní horizonty na západě. Impozantní výhled je umocněn použitím maximálně subtilních okenních posuvných profilů, ukotvených do velkoformátové travertinové dlažby. Těžištěm obytného prostoru jsou kachlová kamna v podobě výrazného hranolu se zaoblenými hranami v tmavě červené lesklé barvě.
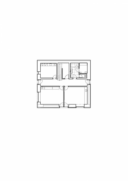
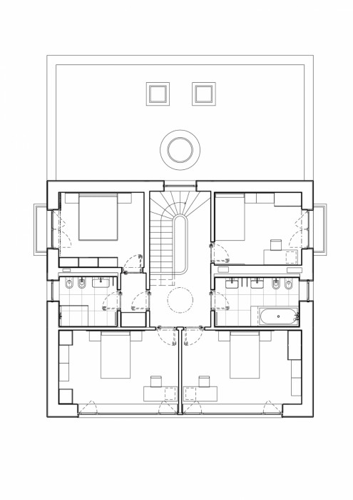
Z obývacího prostoru vede do patra travertinem obložené schodiště se sofistikovanou linií madla z bílého masivního mramoru, umístěného na plné stěně zábradlí. Průmět křivky schodiště do spodní podpůrné stěny pak vytváří až barokizující momenty a překvapivé světelné kompozice. V patře jsou z centrální haly s kruhovým světlíkem umožněny vstupy do čtyř ložnic a dvou koupelen. V podzemním podlaží jsou umístěny technické a společenské prostory v návaznosti na terén a dřevěnou terasu s vazbou na příčně umístěný venkovní bazén. V zahradě byly ponechány některé původní dřeviny a dosázeny ovocným sadem.
- Autoři: Tomáš Rusín, Ivan Wahla
- Ateliér: Atelier RAW
- Spolupráce: Markéta Koláčná
- Země: Česká republika
- Realizace: 2020
- Město: Brno - Kníničky
- Realizace: 2020
Mohlo by vás zajímat