Backraum Architektur - Prázdninový dům u přehradního jezera Thurnberg

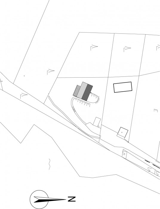
Pozemek s řadou komplikací
„Stavitelé náhodou prošli kolem mé kanceláře a oslovili mě následně s dotazem, zda bych měl zájem pomoci jim s projektem. Měli v úmyslu koupit pozemek u jezera Thurnberg. Od začátku jim bylo jasné, že jakákoliv výstavba zde nebude snadná. Pozemek tvořil příkrý svah plný vegetace, navíc jeho velkou část stínil sousední les. Po návštěvě na místě jsem klientům vysvětlil výhody a nevýhody, které dané místo skýtá, prodiskutovali jsme všechny možnosti a nastínil jsem jim, jakým potenciálem pozemek disponuje – navzdory všem komplikacím. Pokud bychom zvolili správnou orientaci domu a využili prosvětlení interiéru skrze rovinu střechy, můžeme dosáhnout dobrého výsledku," uvádí počátek příběhu netradičně pojatého rodinného domu jeho autor, architekt a vedoucí studia Backraum Architektur Andreas Etzelstorfer.
Jako venkovská stodola
Komplikované morfologické podmínky nebyly jedinou překážkou, se kterou se museli architekti vypořádat. Majitelé domu disponovali omezeným rozpočtem, takže bylo od začátku nutné počítat s co nejnižšími náklady na realizaci. Architekti rovněž kladli důraz na ekologii navrhovaných řešení.
Vznikl tak kompaktní dům, jehož hmota vychází z venkovských stodol, které se v této oblasti hojně vyskytují a formují tak architektonický ráz okolní krajiny. Základní princip tedy zněl: jednoduchá kompaktní hmota, sedlová střecha, minimum oken. Architektům se podařilo vytvořit podobu domu, která splňovala jak požadavky klientů pro pohodlné rodinné bydlení, tak požadovaný architektonický výraz.
Zásadním aspektem celého projektu bylo rovněž pečlivé umístění domu na pozemku s ohledem na místní terénní podmínky i začlenění do krajiny. Architekti osadili jednoduchou hmotu domu na betonovou podnož částečně zapuštěnou do terénu, tak aby dům přílišně nevyčníval.
Celistvá obálka z opáleného dřeva
Již prvotní úvahy směřovaly ke zpracování fasády i střechy domu z jednoho typu materiálu. Volba padla na dřevo. Nakonec se majitelé spolu s architektem rozhodli využít tradiční techniku opracování dřeva. Dřevo bylo opáleno a naolejováno, což zaručuje dobrou odolnost vůči povětrnostním podmínkám a zároveň domu propůjčuje požadovanou estetiku.
Dřevo a beton
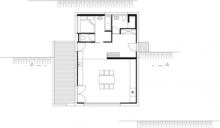
Majitelé si přáli interiér ve skandinávském stylu, který by odpovídal jejich přáním a potřebám. Dominantou celého domu se stal velkorysý obytný prostor, jehož velké pevné zasklení rámuje nádherný výhled na jezero. Prostorově úsporné schodiště spojuje obývací část s podkrovím, které lze využít jako pokoj pro hosty. Prostor patra prosvětlují dvě střešní okna Velux.
Interiér domu tvoří smrkové dřevo ponechané ve své přírodní podobě, opatřené pouze olejovým nátěrem, díky čemuž vnitřní prostor působí velmi útulně. Tepelný komfort zajišťují kamna na dřevo, která kromě přímého tepla ohřívají i vodu pro teplovodní podlahové vytápění. Kontrast k převažujícím dřevěným povrchům tvoří pohledový beton. I ten však svým povrchem odráží strukturu dřeva, které bylo použito pro jeho bednění. Na podlahu přízemí použili autoři broušený cementový potěr opatřený lakem, vložené patro má podlahu ze smrkového dřeva obdobně jako podbití střechy.
Při příchodu k domu strmou stezkou vnímáme jeho kompaktní hmotu prolomenou jediným obdélným otvorem směrem k jezeru. Vstoupíme-li dovnitř, překvapí nás množství světla i funkční čistota interiéru, jež kontrastuje s jeho tmavou obálkou. Tato dvojí tvář domu zcela naplňuje původní záměr architekta i majitelů.
- Autoři: Andreas Etzelstorfer
- Ateliér: Backraum Architektur
- Země: Rakousko
- Město: Krumau am Kamp
- Zastavěná plocha: 75.00m2
Související architekti
Související ateliéry a firmy
Mohlo by vás zajímat

























