Boq architekti - rodinné domy v Dobříši

Koncept
Jednoduché krychle doplněné předsazenou dřevěnou konstrukcí. Semknutá, účelná dispozice využívající výhledů do krajiny. To je developerský projekt Za Větrníkem Dobříš. Tři dvojdomy, které vznikly jako první etapa celé lokality. Šest jednotek, které vytvářejí základ rozvíjející se části města Dobříš.
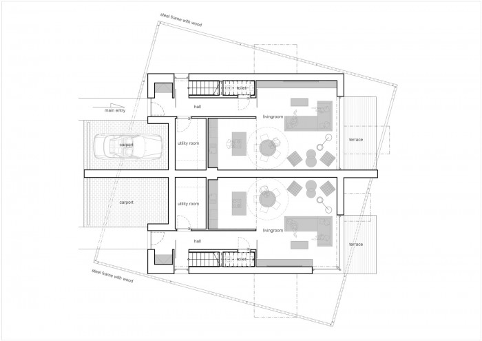
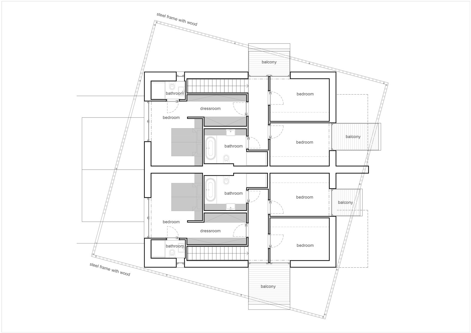
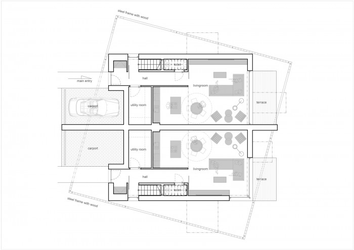
Dispozice
Vstupní část, na kterou navazuje šatna, toaleta a pracovna (pokoj hosta), která vede do obytného prostoru s kuchyní a jídelnou. V horním podlaží se nacházejí dva pokoje s koupelnou a dále samostatné rodičovské křídlo s ložnicí, šatnou a koupelnou. Pracujeme se vztahem interiér/exteriér, téměř každá místnost v domě má výstup ven na terasu či balkon.
Kostka v kostce
Jak zajistit soukromí obyvatelům dvojdomů uvnitř rozvíjející se lokality? Signifikantním prvkem celého projektu je předsazená ocelová konstrukce s dřevěnou výplní, která plní hned několikero funkcí. Konstrukce je vůči hlavní obytné kostce předsazena a výrazně pootočena, takže vytváří skrytá zákoutí pro uložení zahradního náčiní, dále přispívá k odstínění vnitřních prostor. A hlavně vytváří druhotný plášť, bariéru, která zajišťuje majitelům daleko větší soukromí.
- Autoři: Miroslav Stach, Jana Stachová
- Ateliér: boq architekti
- Země: Česká republika
- Město: Dobříš
- Materiál: hliníková okna, dřevěné vertikální prvky, předsazení ocelová konstrukce
Související projekty
Související architekti
Související ateliéry a firmy
Mohlo by vás zajímat


























