Compass architekti - RD Jarovce

Rodinný dom sa nachádza na severnom okraji obce Jarovce, v lokalite s výstavbou rodinných domov. Pozemok je rovinatý, s rozlohou 661 metrů čtverečních. Kvôli optimálnemu využitiu pozemku je dom umiestnený v severnej časti parcely.

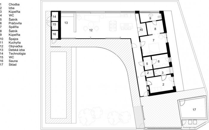
Dom pre rodičov môže byť zadanie, ktoré na dlhú dobu ochladí rodinné vzťahy alebo vzťah architekta k jeho práci. Alebo oboje. Našťastie toto dopadlo opačne. Od rodičov sme dostali len tri požiadavky: malý dom, žiadne schody a veľa miesta pre ich deväť vnúčat. Naším riešením je jednoduchá schéma polovičného átria v tvare otvoreného písmena L. Južná strana átria sa záhradou otvára ulici a slnku, severnú stranu pozemku vymedzuje dom.

Foto: EARCH

Prvkom, ktorý prepája všetky časti domu je horizontála železobetónovej strešnej dosky, ktorá prechádza z interiéru do exteriéru a vedie narativ návštevy domu od vstupu po najintímnejšie časti interiéru. Vyloženie dosky je nastavené tak, aby správne regulovalo slnečné žiarenie. Zaoblenie dosky v styku dvoch traktov vytvára rozšírenie terasy pre stolovanie a integruje priestor záhrady. Ale priznajme, že hlavne vyzerá dobre na fotkách.

Foto: EARCH

Samotný dom je veľmi tradične rozdelený na dennú a nočnú časť. Denná je transparentná, otvorená do záhrady a úplne priehľadná. Vnúčatá sú tu stále na očiach. Za drevenou stenou sa nachádza nočná časť s vlastnou záhradkou, ktorá je tichým útočiskom pred krikom átria.

Interiér ďalej rozvíja priestorovú koncepciu domu. Dominuje mu vzťah priznaného betónu stropnej dosky, podlahy a dlhej dubovej steny. Do takto vymedzeného priestoru sú voľne vložené objekty a osoby.

Foto: EARCH

Generální partner
Hlavní partneři