DUN / Bytový dom na Dunajskej

Projekt Dunajská vznikol výhrou vyzvanej súťaže v roku 2004 architektonickým ateliérom FHP (dnes už neexistujúcim). V ďalších stupňoch na projekcii kooperovali ateliér HPA (ex FHP) a RAUM (taktiež neexistujúci), ktoré do posledného stupňa, realizačného projektu vstúpili už ako jeden spoločný ateliér gutgut. Tento projekt nás teda sprevádzal vo všetkých personálnych fázach našej profesionálnej praxe.
Zadaním bolo vzhľadom na výnimočnú polohu na hrane absolútneho centra mesta navrhnúť polyfunkčný objekt s prevažnou funkciou bývania a adekvátnou vybavenosťou. Našou snahou bolo skĺbiť luxus bývania v pomerne rušnom centre metra s „genium loci“ vnútro-blokových dvorov.
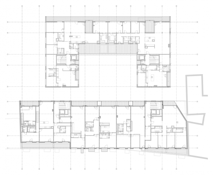
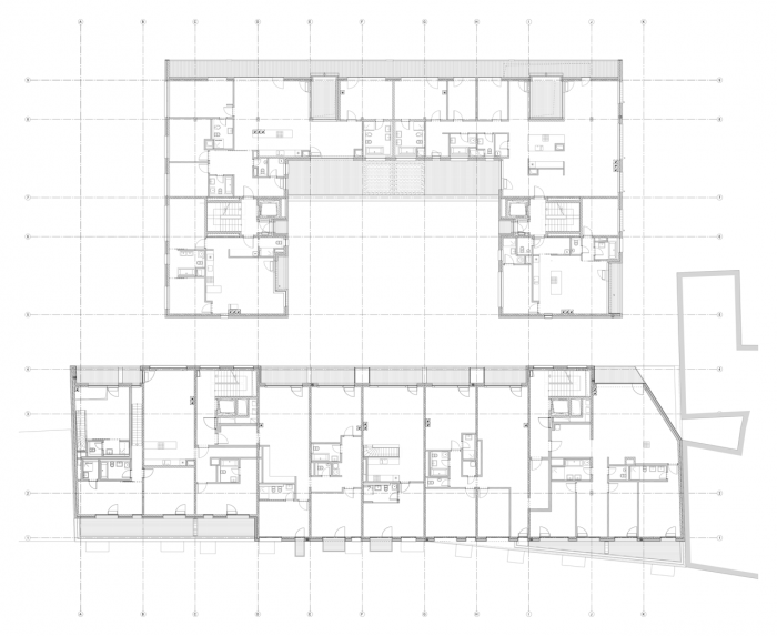
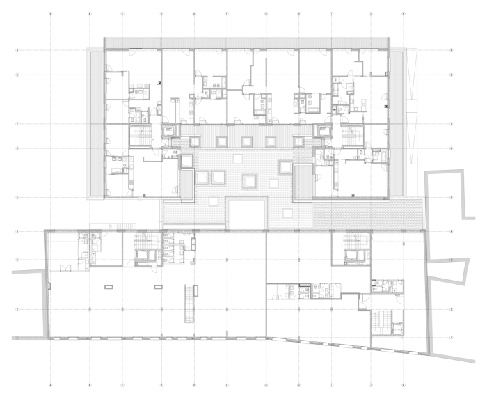
Objekt tak má dve polohy, na Dunajskej ulici je to funkčný mestský dom, ako ho poznáme z iných miest. Prvé dve podlažia vybavenosť, vyššie byty, na streche penthous-y s terasami s výhľadom na okolitú strešnú krajinu. Vo dvore sa nachádza kľudnejšia časť domu, s privátnou záhradou pre obyvateľov a priehľadmi do priľahlých staro-mestských dvorov.
V priebehu projekcie a aj výstavby sa udialo viacero zmien. To sa týka hlavne dvorového bloku. Uličný blok sa v podstate až na pár kozmetických zmien počas jednotlivých fáz nezmenil. Dvorový objekt sa vzhľadom na jeho polohu v pomerne citlivej polohe vnútrobloku existujúcej zástavby menil viacero krát.
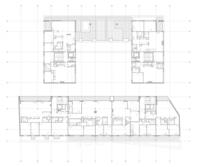
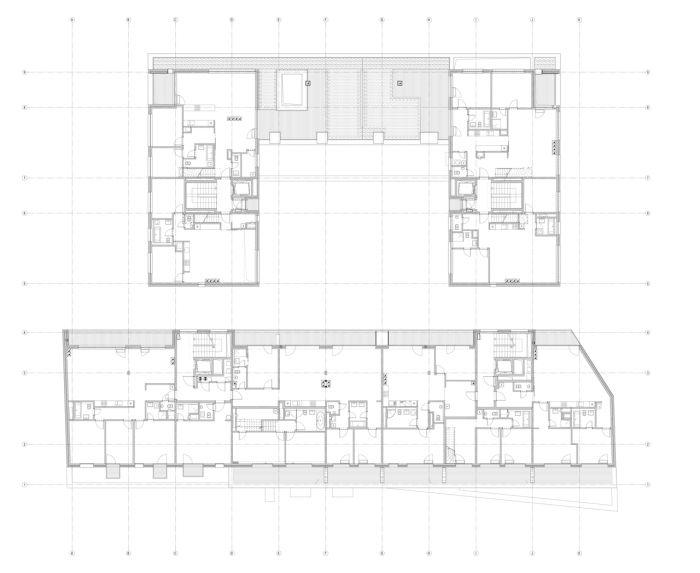
Pôvodný koncept zo súťaže počítal s dvoma kolmými líniovými objektami. Neskôr pribudol parter s občianskou vybavenosťou na úrovni dvora medzi týmito objemami, dokonca sa predpokladalo prepojenie Dunajskej ulice s Lazaretskou ulicou formou krytej obchodnej pasáže. Dvorové bloky ale stále príliš atakovali vnútorný dvor a tak po ďalšej úprave vo forme akýchsi terasových ustupujúcich podlaží sa koncept utriasol na súčasnom riešení. Dvorové bloky sa spojili do jedného s pôdorysným tvarom U.
Ďalšie zmeny, vo fáze realizačného projektu a realizácie samotnej potom priniesol investor, ako reflexiu na vyvíjajúcu sa situáciu na realitnom trhu. Tieto úž boli našťastie iba charakteru dispozičných zmien v rámci odsúhlaseného objemu budovy.
Stavbu sme navrhli tak, aby rešpektovala historickú uličnú čiaru. Dopĺňa chýbajúce časti tohto mestského bloku. Fasáda je do ulice pomerne členitá, čo bolo podmienkou Krajského pamiatkového úradu v Bratislave a to vo vertikálnom či horizontálnom smere. Taktiež materiálové riešenie podtrhuje segmentovanie fasády na viacero menších celkov.
Výzvou bolo navrhnúť objekt tak, aby všetky byty a administratívne priestory vzhľadom na ich vysokú hustotu spĺňali tie najprísnejšie svetlotechnické a hygienické požiadavky. Problematickým v tomto smere bol iba uličný objekt, ktorého fasády sú orientované takmer presne na sever a juh. Veľa bytov sme tak riešili ako mezonetových s dvojpodlažnou nočnou časťou na severnej fasáde a jedno podlažnou dennou otočenou do preslneného dvora. Náš trh ale žiaľ nie je otvorený takýmto riešeniam a tak väčšinu z týchto bytov sme museli v priebehu stavby preprojektovať na štandartnejšie jedno podlažné dispozície.
Objekt má štyri podzemné podlažia, ktoré slúžia pre parkovania obyvateľov a administratívu. Nadzemná časť sa skladá z dvoch blokov – uličného so 6 podlažiami a malým „ateliérom“ na 7. a dvorového tiež so 6. podlažiami, ktoré od 4. NP ustupujú.
Jednotlivé bloky medzi sebou vytvárajú zaujímavé poloprivátne priestory vhodné pre kľudnú kaviareň, na streche 1. NP vzniká átrium s vegetačnou strechou a za objektom na južnej strane je záhrada susediaca s objektami na opačnej strane mestského bloku. Parter je dvojpodlažný, prístupný z ulice, prípadne pasáže. Takmer všetky byty sú priečne prevetrávateľné a okrem dvoch majú všetky nejakú formu exteriérových plôch – balkóny, kryté loggie či strešné terasy.
Materiálové riešenie z nášho pohľadu rešpektuje polohu a architektonickú zodpovednosť objektu, z ulice je okoloidúci konfrontovaný s lícovou tehlou tmavej farby, portálmi z brúsenej nereze, či titánzinkovou ligotavou obálkou ustupujúcej časti fasády. Dvorová časť je strohejšia a viac podtrhuje bytový charakter domu. Všetky terasy a drevené obklady sú z lokálnych drevín – agát a smrek.
Navrhované boli početné doplnky z pohľadového betónu vo forme rôznych prefabrikátov – schodiskové ramená, loggie, kochlíky na strechách… Iba málo z nich však bolo ochránených počas stavby tak, aby mohli zostať exponované, čo nás mrzí.
Všetky strechy a terasy na ustupujúcich častiach budovy sú pokryté extenzívnou zeleňou, trávou, prípadne agátovými palubovkami.
- Autoři: Roman Halmi, Marcel Dzurilla, Peter Jurkovič, Roman Žitňanský
- Ateliér: gutgut, JRKVC
- Země: Slovensko
- Město: Bratislava - Staré Mesto
- Ulice, číslo: Dunajská 2323/44
- PSČ: 811 08
- Datum projektu: 2003
- Realizace: 2010
- Užitná plocha: 11 690.00m2
- Zastavěná plocha: 2 573.00m2
- Plocha pozemku: 3 562.00m2
- Foto ©: Peter Jurkovič
Související projekty
Související architekti
Související ateliéry a firmy
Mohlo by vás zajímat



























