edit! architects - Dům na domě
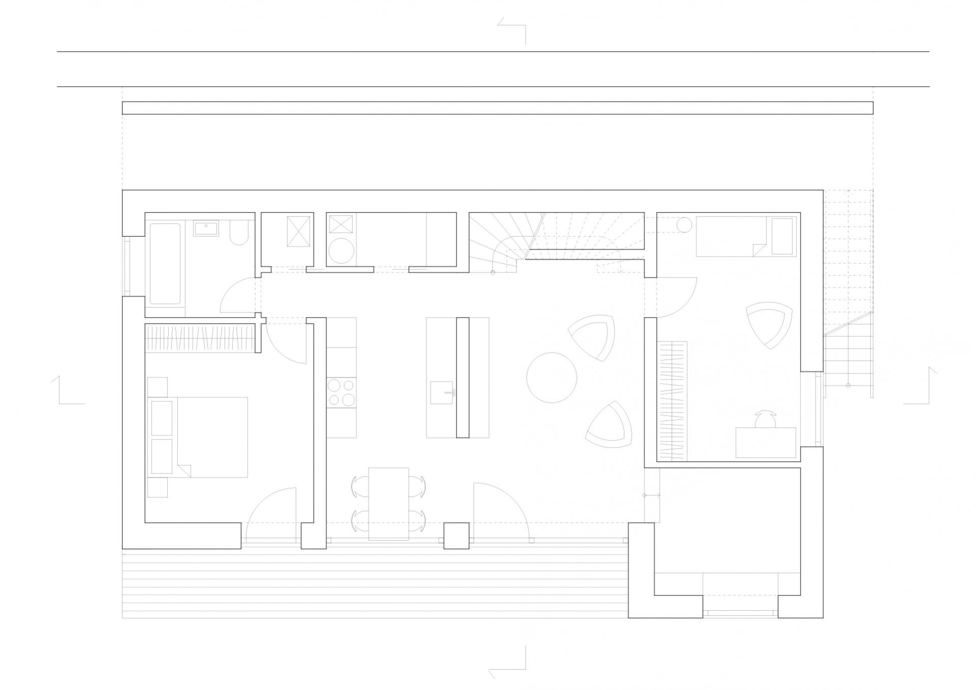
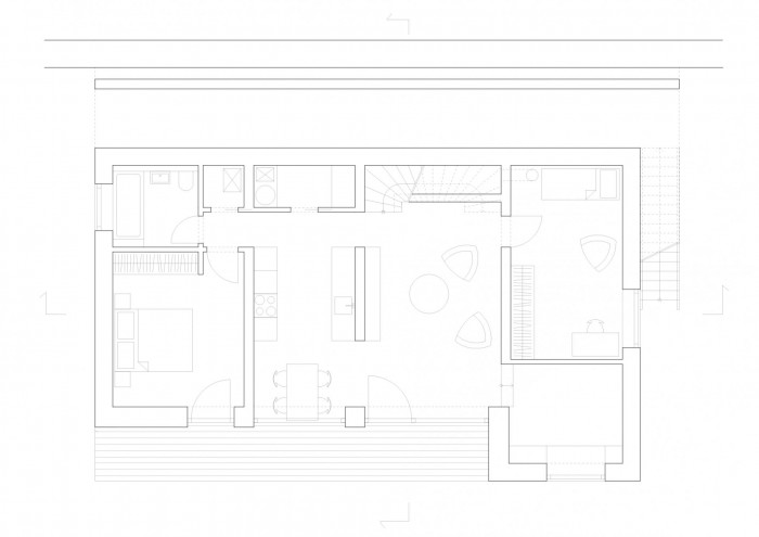
Jakým způsobem se vypořádat s rozdílem výškových úrovní komunikace a pozemku a s regulativem vyžadujícím sedlovou střechu? Jakým způsobem navrhnout dům s maximálním kontaktem se zahradou? Klienti si přáli malý dům s velkou zahradou v Mníšku pod Brdy. Navrhli jsme dvoupodlažní objekt situovaný na severní hranu pozemku, kde je většina obytné plochy umístěna ve spodním podlaží v přímém kontaktu s terasou a zelení. Terasa je kryta přesahem střechy, který zároveň stíní převážnou část jižní fasády. Nahoře, v domečku se sedlovou střechou, se nachází vstupní část a jedna obytná místnost orientovaná na jih do zahrady. Výhledům dominuje mohutná památná lípa u potoka na jihu pozemku.
- Ateliér: edit! architects
- Realizace: 2013
- Město: Mníšek pod Brdy
Související projekty
Související ateliéry a firmy
Mohlo by vás zajímat
Dům na domě v Mníšku pod Brdy od edit! architects
Foto: Mark Prethero
1/14
Dům na domě v Mníšku pod Brdy od edit! architects
Foto: Mark Prethero
2/14
Dům na domě v Mníšku pod Brdy od edit! architects
Foto: Mark Prethero
3/14
Dům na domě v Mníšku pod Brdy od edit! architects
Foto: Mark Prethero
4/14
Dům na domě v Mníšku pod Brdy od edit! architects
Foto: Mark Prethero
5/14
Dům na domě v Mníšku pod Brdy od edit! architects
Foto: Mark Prethero
6/14
Dům na domě v Mníšku pod Brdy od edit! architects
Foto: Mark Prethero
7/14
Dům na domě v Mníšku pod Brdy od edit! architects
Foto: Mark Prethero
8/14
Dům na domě v Mníšku pod Brdy od edit! architects
Foto: Mark Prethero
9/14
Dům na domě v Mníšku pod Brdy od edit! architects
Foto: Mark Prethero
10/14
Půdorys 1NP
Foto: edit! architects
11/14
Půdorys 2NP
Foto: edit! architects
12/14
Řez
Foto: edit! architects
13/14
Řez
Foto: edit! architects
14/14