Engel House - CMC
Zadáním stavebníka bylo navržení rekreačního domu v malebné obci v Západních Čechách nedaleko lázeňského města Karlovy Vary. Od samého počátku bylo snahou architektů, aby dům dobře zapadl do romantické krajiny pod masivní skálou a středověkou zříceninou gotického hradu na jehož úpatí se městečko nachází.
LOKALITA
Území patří do chráněné krajinné oblasti a leží v poměrně vysoké nadmořské výšce přes 600mnm a proto je zde nutno počítat i s drsnějším podnebím. Návrh domu vycházel z tradičního tvarosloví vesnického domu, ke kterému patří sedlová střecha a klasický dřevěný štít. Zároveň dům musel splňovat požadavky a funkce moderního domu a to jak pro komfort letní, tak i zimní rekreace. Pozemek o velikosti 2163m2 má ideální jižní orientaci s přístupem od severu a nabízí nádherné výhledy do zvlněné krajiny. Zastavěná plocha domu je 346m2.
KOMPOZICE A URBANISTICKÉ ŘEŠENÍ
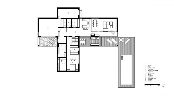
Po důkladné analýze okolního prostředí byla zvolena křížová dispozice půdorysu stavby a to tak, že se jedná o protnutí vyšší dvoupodlažní hmoty se sedlovou střechou obložené šedým Rheinzink plechem s jednopodlažním objemem, který má hnědočervenou reznoucí Cortenovou fasádu.Tento půdorysný princip umožňuje jednak odclonění od přístupové místní komunikace s vjezdem do garáže a vstupem do domu, na druhé straně vytváří částečně uzavřený prostor tvarovaný do písmene L, do kterého jsou orientovány hlavní obytné místnosti v přízemí a je odtud výhled do otevřené krajiny.
KONSTRUKCE
Celá stavba je koncipována jako dřevostavba. Hlavním konstrukčním prvkem jsou dřevěné velkoformátové panely a stěny, které jsou pohledově viditelné v interiéru a hrají důležitou roli ve výtvarné koncepci domu.
DISPOZICE DOMU A INTERIÉR
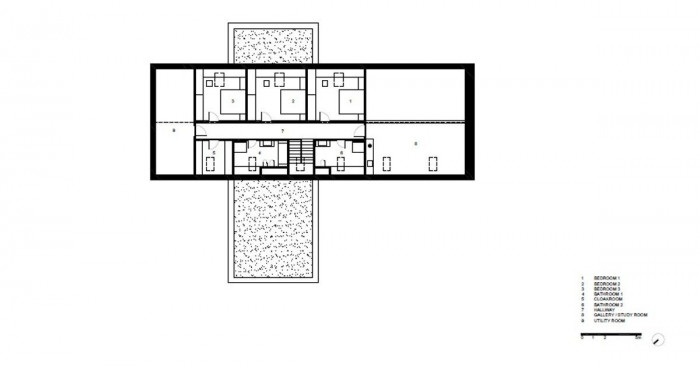
Hlavní obytná místnost je situována do jižního křídla domu s výškou přes dvě patra, v horní části přechází do prostoru otevřené galerie. V tomto převýšeném prostoru jsou umístěna kapkovitá dekorativní svítidla Tim z českého křišťálu. Součástí obývacího pokoje je kuchyň, která navazuje na venkovní zastřešenou terasu s venkovní kuchyní a sezením. V prostoru mezi kuchyní a obytným prostorem je umístěn krb obložený černým surovým plechem a proskleným ohništěm.
V přízemí je kromě několika obslužných místností zázemí umístěna hlavní master bedroom s navazující pracovnou. V horním patře jsou umístěny tři pokoje pro hosty s hygienickým zázemím a technická místnost.
Hlavním materiálem v interiéru je dřevo. Dřevěné konstrukční panely jsou opatřeny bílou lazurou a jsou kontrastní s tmavou dřevěnou podlahou a tmavým dýhovaným obložením stěn ve vstupní části domu. Doplňkovým materiálem je černý surový plech použitý na obložení krbu nebo hnědošedý corian na kuchyňské desce.
V koupelnách je použitá velkoformátová keramika ve tmavohnědém a béžovém odstínu.
FASÁDA A VENKOVNÍ POVRCHY
Materiály fasády byly zvoleny tak, aby dobře zapadly do kontextu okolí a stylu původní charakteristické zástavby. Na štíty budovy bylo použito smrkové dřevo opalované ohněm, střecha má šedivou plechovou krytinu a jednopodlažní trakt je obložen reznoucím plechem Corten. Materiály jsou zvoleny tak, aby přirozeně stárly, časem tmavly a dobře zapadly do okolní přírody. Pro venkovní terasy bylo použito dřevo IPE s velkou odolností vůči povětrnostním vlivům a velmi dobrou stálostí.
ZAHRADA
Pro výsadbu dřevin byly použity druhy běžně se vyskytující v okolní přírodě doplněné o keře a květiny s nízkým nárokem na údržbu. Součástí zahrady je venkovní 10 metrový bazén vytápěný stejně jako dům tepelným čerpadlem.
- Autoři: Vít Máslo, David Richard Chisholm
- Ateliér: CMC ARCHITECTS
- Spolupráce: Daniel Šimpach, Gabriela Sekyrová
- Země: Česká republika
- Zodpovědný projektant: Jan Hřebíček
- Město: Karlovy Vary
- Realizace: 2017
- Zastavěná plocha: 346.00m2
- Plocha pozemku: 2 163.00m2
- fotografie: BoysPlayNice
Související projekty
Související architekti
Související ateliéry a firmy
Mohlo by vás zajímat