Jirsa Architekti - Rekonstrukce Bízkova válcového mlýna

K projektu obnovy bývalého Bízkova válcového mlýna jsme se dostali zhruba před devíti lety. Tehdy už měli majitelé za sebou rekonstrukci střechy a rozmýšleli, jak dále využít rozsáhlé hospodářství zakoupené od potomků bývalého mlynáře. 

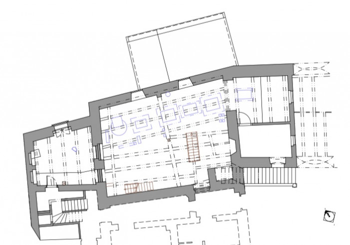
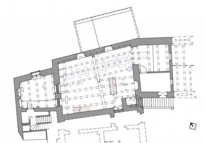
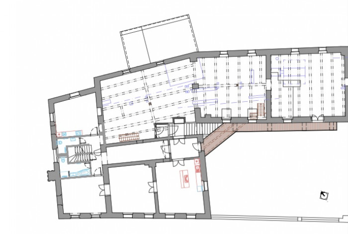
Od stavby neexistovala aktuální stavební dokumentace, bylo tedy potřeba nejprve objekt podrobně projít a důkladně zaměřit. Majitelé průběžně odklízeli množství po generace nahromaděných věcí, které už nebyly k užitku, a členitá dispozice hospodářského i obytného křídla začínala být přehlednější a čitelnější. Po několika dnech pobytu s kresličskými pomůckami a laserovým dálkoměrem v ruce se nám začala skládat dohromady představa o původním provozu ve mlýně.

Mlynář s rodinou původně obývali vkusně zdobené křídlo orientované k řece, tato část budovy měla přímý vstup ze dvora po velkorysém žulovém schodišti a oproti hospodářskému traktu měla samozřejmě i vyšší místnosti, byla oproti němu jinak přepatrovaná. Hlavní hospodářský trakt lemuje delší stranu dvora podél mlýnského náhonu. Podle potřeb provozu a instalovaného vybavení se úrovně v něm různě mění a prolínají. Nejníže je položená dlouhá prohlubeň s hnacím hřídelem. Ten byl poháněný rozvodem od turbíny v mlýnském náhonu a sílu vodního živlu distribuoval svislými transmisemi do jednotlivých pater mlýna téměř po celé délce mlýnice. Přístavba nad náhonem, kde byla uložená turbína, se dochovala a do budoucna přímo vybízí k dalšímu energetickému využití.

Ve vyšších podlažích hospodářského křídla zůstaly dochované některé z mlýnských strojů včetně násypky v podkroví. Hospodářství pokračovalo stodolou a doprovodnými obytnými budovami, které společně s ostatními částmi tvořily půdorysně tvar písmene C obepínajícího dvůr, na který se vjíždělo buď prostornými vraty od řeky, nebo průjezdem přes náhon skrz hospodářský trakt. Stodola je bez přepatrování otevřená až po hřeben. I když jsou tedy jednotlivé části různě výškově uspořádané, tvoří mlýn navenek kompaktní hmotu a díky důmyslnému propojení úrovní mohlo být horní obytné podlaží propojeno s hospodářskou částí pomocí dřevěná pavlače zakončené patrovým suchým záchodem.

Budova mlýna je patrná již na indikačních skicách z první poloviny 19. století, průběžně byl pravděpodobně také různě přestavován a opravován. Objekt byl solidně postavený z cihel a kamene, poničený byl částečně požárem seníku v roce 1952, ale spíše pak kvůli nedostatku údržby na přelomu tisíciletí. Některé místnosti v přízemí trpěly velkou vlhkostí zdiva, okna byla za hranicí životnosti a o potřebě celkové opravy střechy již byla řeč. O moudrosti našich předků a pečlivém výběru místa pro mlýn však svědčí to, že se mlýn neocitl pod vodou ani při velkých povodních v roce 2002.

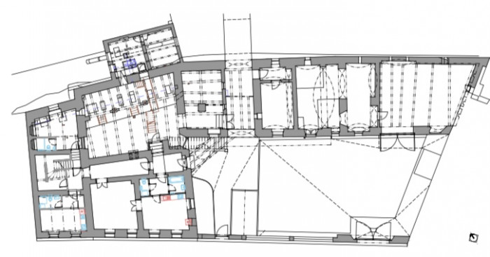
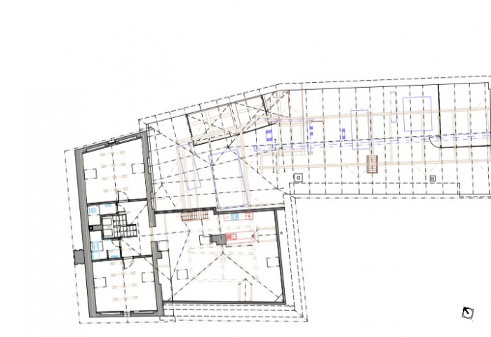
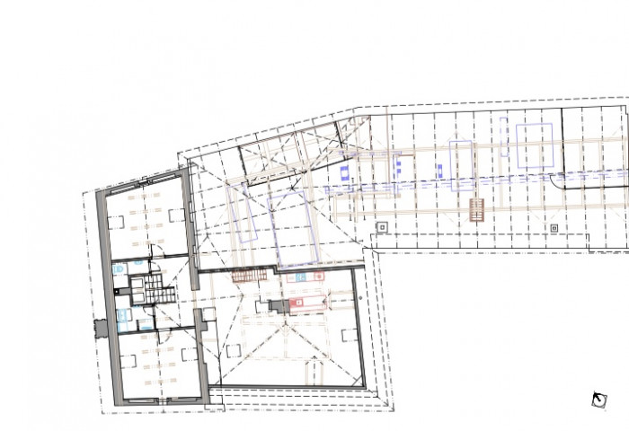
Ze všech možných variant dalšího využití nakonec majitelé zvolili rekonstrukci pro rekreační účely. Rozhodli se, že budou bydlet v podkroví nad obytným křídlem. Tato část objektu nabízí mimo jiné nejhezčí výhledy na řeku a na město. Nová střešní okna se nacházejí na místech, která nejsou z většiny dálkových pohledů na mlýn patrná. Ve střeše bylo mezi krokve vloženo zateplení minerální vatou – díky tomu, že podkroví je poměrně vysoké, kolem čtyř metrů až do hřebene střechy, teplý vzduch v létě stoupá nahoru a prostor se tak odvětrává. Krovy jsou tu částečně přiznané. Do podkroví se původně vcházelo jen z hospodářské části a obytná část měla samostatné schodiště ze dvora. Pro nové využití jsme tedy do mlýna museli vložit nové schodiště propojující členité výškové úrovně. Místnosti v dolních patrech obytného křídla slouží pro hosty (dva apartmány nad sebou), hospodářská část mlýna byla vyklizena a zakonzervována včetně mnoha částí původního strojního vybavení.

Po technické stránce jsme se museli vyrovnat s několika výzvami, aby se nám podařilo do objektu vložit bydlení podle dnešních standardů. V obytné části jsme vkládali zmíněné nové schodiště, takže bylo třeba vybourat průraz do stropních konstrukcí. Snažili jsme se co nejméně zasahovat do svislých nosných zdí, ale v tomto případě to bylo docela složité. Ve výsledku je schodiště poměrně úzké. Specialistům profesních částí se ale přesto podařilo pod jeho spodní část umístit strojovnu s potřebnými technologiemi pro vytápění, ohřev teplé vody a čerpání pitné vody ze studny. Návrh hospodaření s vodou byl právě ve mlýně poměrně citlivá záležitost. Náhon dlouhá léta působil jako stoka. Museli jsme proto přeložit ležatou kanalizaci tak, aby odpadní voda směřovala nejprve do čističky a zároveň aby ta byla co nejblíže u náhonu a vyčištěná voda mohla gravitačně odtékat. Jednalo se o poměrně složitou a jemnou práci se spády. Souviselo to také s původním žulovým schodištěm ze dvora, které se celé rozebíralo a renovovalo, pod ním se nyní nachází biologická čistírna.

Co se týče sanace vlhkého zdiva, využili jsme především neinvazivní metody, bez navrtávek a podřezávání zdí. Terén jsme nechali odkopat tak, aby se zdi vysušily a nebyly v kontaktu s vodou. Promysleli jsme proto společně s majitelem nový systém drenáží na straně od ulice a ze dvora. Směrem od náhonu samozřejmě kontakt stavby s vodou zůstává, ale zde vypadá, že je stavba kvalitně založená a problematiku uspokojivě vyřešili již naši předkové.

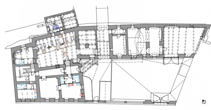
Po vyřešení dalších souvislostí a požadavků současných norem – například požárně bezpečnostního řešení poměrně komplikované stavby – přišla řada na estetické ztvárnění rekonstruované podoby mlýna. Kromě vyčištění interiérů se čistilo i uspořádání dvora, ze kterého zmizely novodobé přístavky. Konstrukce stavby mimo obytné křídlo byla utilitární, nepříliš zdobná, obytnou a hospodářskou část propojovala vizuálně hlavně pavlač v prvním patře nad dvorem. Pavlač se zachovala v nepříliš dobrém stavu a když jsme se pokoušeli o její rekonstrukci, téměř spadlo těleso suchých záchodů na jejím konci. Suché záchody jsme se rozhodli zrušit, pro dnešní využití již pozbyly smyslu. (Snad kromě ukázky pro zvědavce, jak takový patrový záchod funguje, aniž by to mělo zničující důsledky pro osobu ve spodní buňce.) Pavlač v tomto místě dostala nové kamenné krakorce, které jsou opracované pemrlováním tak, aby působily dobře v souvislosti s ostatními prvky historického objektu.

Dvůr má nový povrch, z části ho kryje nová kamenná dlažba, zbytek je zatravněný. Průjezd přes náhon je zrekonstruovaný, jsou tu kamenné kočičí hlavy. Ze strany památkové péče byla k projektu spousta připomínek, ale majitelé jsou natolik osvícení, že při závěrečné prohlídce byli památkáři mile překvapeni, nakolik se podařilo zachovat autentické prvky a jakým způsobem se objekt proměnil. Na řemeslných prvcích a detailech majitelé prvoplánově nešetřili, snažili se je nechat zhotovit s co největší možnou péčí. Například dřevěná okna s dubovými rámy i křídly na zadlabávaných pantech jsou nově vyrobené repliky, na které se už při zadání  bylo podívat šest nebo osm řemeslníků.

Podobně pečlivý výběr probíhal i u jiných řemesel a majitelům se velmi ulevilo, když stavbu úspěšně dotáhli ke zdárnému dokončení. Dnes se může mlýn pochlubit obnovenou fasádou v pohledu od řeky a od města, rekonstruovanými interiéry, vyměněnými okny, novými vraty a zrenovovanou pavlačí. Jako poslední věc přišla na řadu letos omítka u náhonu. Po jejím provedení bude pravděpodobně na delší dobu následovat pauza se stavebními pracemi, i když k ideálnímu stavu zbývá ještě spousta práce ve stodole.

  • Země: Česká republika
  • Realizace: 2017
  • Město: Pošumaví
  • Realizace: 2017
Generální partner
Hlavní partneři