Kilo/Honč - Podkrovní byt v Bratislavě

Podkrovný byt sa nachádza v jednej z najvyhľadávanejších mestských častí Bratislavy vybudovanej v 50tych rokoch minulého storočia pod názvom 500 bytov. Táto štvrť predstavuje najstaršiu sídliskovú časť v Bratislave, ktorá bola vybudovaná po druhej svetovej vojne ako reakcia na masívny príval obyvateľstva do hlavného mesta. Stala sa atraktívnou najmä pre mladé rodiny. Bratislava od toho času prešla silnou urbanizáciou a lokalita sa dostáva do užsieho centra mesta. Stáva sa veľmi atraktívnou a jedinečnou. Pod vplyvom neustále rastúceho záujmu o bývanie sa pôvodne neobytná povala týchto charakteristických trojpodlažných domov začala v 90tych rokoch rekonštruovať, čo viedlo k vzniku podkrovných bytov.
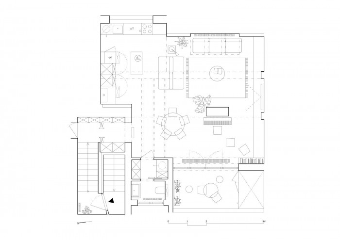
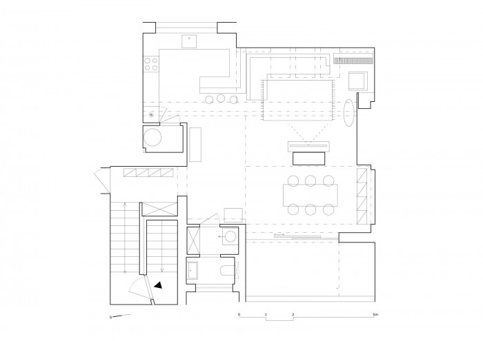
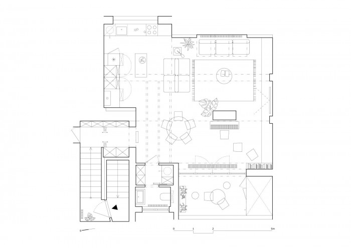
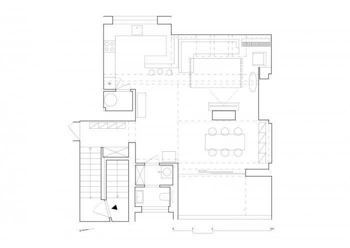
Pôvodný stav bytu po rokoch používania nezodpovedal potrebám rodiny. Prebehli drobné no dôležité úpravy. Cieľom bolo dosiahnuť maximálne využitie priestoru, otvorenosť, nové veľkorysé úložné priestory. Denná zóna bytu musí fungovať pre veľkú 5 - člennú rodinu. Funkčno - prevádzkové členenie priestoru určuje mobiliár, nie priečky. Ten celkový priestor definuje, rozdeľuje no zároveň mu dodáva ucelený charakter. Obývačka, kuchyňa, jedáleň, herňa,čitáreň i hudobná miestnosť... Všetko jeden multifunkčný priestor - veľký modifikovateľný a transparentný.
Nosným dispozičným prvkom je nové usporiadanie kuchyne, ktoré je aktívne prepojené s obývačkou prostredníctvom obojsmerne riešenej modulárnej sofy. Keďže v päťčlennej rodine sa pomerne dosť varí, je to naozaj ústredný komunikačný priestor pre všetkých členov.
V rámci stavebných úprav sme zrušili technickú miestnosť s kotlom, ktorá už neplnila svoju funkciu a nahradila ju vysoká kuchynská zostava, do ktorej sme integrovali aj nový kotol. Zrušil sa nepoužívaný komín s krbovou vložkou a priestor sa tak zväčšil do hĺbky o ďalších 60 cm. V predsieni sa posunuli stavebné otvory tak, aby vznikla nová nika na úložné priestory a v neposlednom rade sa odstránil sadrokartónový podhľad. Otvorili sme priestor a ukázali sme konštrukciu krovu.
- Autoři: Richard Kilo, Matej Honč
- Země: Slovensko
- Město: Bratislava
- Realizace: 2019
- Užitná plocha: 67.00m2
Mohlo by vás zajímat



















