M3M - Revitalizace zámeckého areálu Návarov

Naším úkolem bylo zrevitalizovat zámecký areál v pravé podstatě toho slova, se všemi přidruženými hospodářskými funkcemi, a při tom zachovat a podpořit vše cenné a autentické, co se dochovalo.
Chybělo málo a zámecký areál Návarov mohl být dalším historickým místem, které bychom za pár let marně hledali na mapě. Posledních sto let bylo s areálem zacházeno špatně až na hranici znehodnocení. Vlivem mnoha adaptací, zanedbáním a četnými destrukcemi celých budov bylo rozvržení areálu nečitelné a na dochovaných budovách (zejména zámku) byly odstraněny skoro všechny autentické prvky. Návrh měl umožnit areálu Návarovského zámku plnohodnotný současný život, a navíc mu dát opět historickou tvář. Idea byla prostá – barokní objekty si zaslouží obnovit v historicky odpovídající podobě, nové architektonické vstupy nesmějí rušit ani popisně kopírovat a torza kamenných budov musejí ukázat svou sochařskou kvalitu.
Revitalizace barokní památky
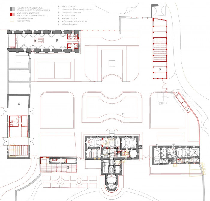
Zámek Návarov s parkem jsou zapsány jako nemovitá kulturní památka. Návarov se nachází na samotě uprostřed lesů nad divokým údolím řeky Kamenice. Nejstarší zámecké budovy jsou barokní ze 17. století. Původní usedlost se skládala z mnoha objektů, obklopujících hospodářské nádvoří. Doplněny byly romantickým parkem s altánem a zelinářskou zahradou. Po sérii požárů a přestaveb ztratily budovy s výjimkou altánu i poslední zbytky barokních fasád a řada objektů časem podlehla destrukci. Původní vzhled budov se ukázal až na malé výjimky nedohledatelný. Náš návrh obnovil základní rozvržení areálu ve čtyřech kvadrantech – zámecké nádvoří, romantický park, hospodářská louka a sad se zelinářskou zahradou.
Zámecké nádvoří získalo pravidelnou osovou barokní kompozici, jíž vládne zámek s odpovídající nově vytvořenou fasádou. Cezury po nedochovaných budovách zprostředkovávají průhledy do okolní krajiny. Zámek slouží jako byt majitele, zároveň ovšem poskytuje zázemí správě lesního hospodářství a také může sloužit příležitostným kulturním akcím. V přízemí se totiž nyní nachází komorní koncertní sál s kvalitně řešenou akustikou a v neposlední řadě pečlivě restaurátorsky obnovená kaple. Kompozici hlavní budovy vůči nádvoří doplňují dům hospodáře (neboli byt správce) a oranžerie s nově navrženou prosklenou částí. Stodola po obnově slouží jako komplexní hospodářské zázemí. Konírna získala novou nápň jako prostor pro příležitostné veřejné společenské akce. Její formu jsme ponechali v co nejtorzálnější podobě – nechali jsme zaznít krásu monumentálního kamenného neomítnutého zdiva a dlouhou vnitřní klenbu s dochovanou původní dlažbou. Konirnu jsme pouze doplnili o nezbytné hygienické zázemí a novou sedlovou střechu. Kompozici nádvoří jsme u hlavního vstupu uzavřeli novou budovou kočárovny s novodobým abstraktním tvaroslovím, které ovšem vychází z formy klasických pilířových kočároven..
Romantický park s dominující budovou altánu tvoří intimní zónu za zámeckou zdí. Hospodářská louka a obnovený sad se zelinářskou zahradou opět slouží k drobnému zemědělství. V rámci obnovy byly čtyři budovy zcela zrekonstruovány, dvě rekonstruovány a podstatně dostavěny, a tři objekty byly vystavěny nově. Celek opět funguje jako hospodářské a reprezentativní těžiště lokality.
- Autoři: Martina Novotná, Michal Pokorný, Kamila Krejčiříková
- Spolupráce: Tomáš Vávra, Petr Franze, Tomáš Berger, Karolína Antošová, Tomáš Dvořák
- Země: Česká republika
- Město: Zlatá Olešnice
- Datum projektu: 2013
- Realizace: 2017
Související projekty
Související architekti
Mohlo by vás zajímat






















