Markéta Bromová - Chatka v CHKO

Na okraji malé obce v Jihočeském kraji zhruba 10 km severozápadně od Vimperku na pomezí Šumavy stojí malá černá chatička. Barvou i jednoduchou proporcí se vymyká ostatním stavením, které můžete v okolí najít. Do této nádherně malebné krajiny, kterou se nechali učarovat dva pražští lékaři, si ji pro sebe a své tři děti nechali navrhnout ateliérem Markéty Bromové. Ta si na tento úkol přizvala svoji kamarádku Zuzanu Koskovou.

Asi největší výzvou byla finální cena stavby, která se měla vejít do 2 milionů. Tento požadavek ovlivnil jak koncept domu, tak především dimenze hlavního konstrukčního systému a zacházení s materiály vně i uvnitř domu.

 

Základními tématy domu jsou:

1/ barvy a materiály - vnější černá a vnitřní březová překližka

Chtěli jsme takto jednoduše a utilitárně pracovat s exteriérem a interiérem. Na první pohled se jedná o kontrastní barevnost, kdy černé barvy na dřevěné fasádě jsme docílili opalováním prken a světlejších tónu březové překližky zase jejím nátěrem bílou lazurou. Na druhý pohled se takto striktní barevnost naopak podpořila.
 

2/ jednoduchý tvar a prostorové členění

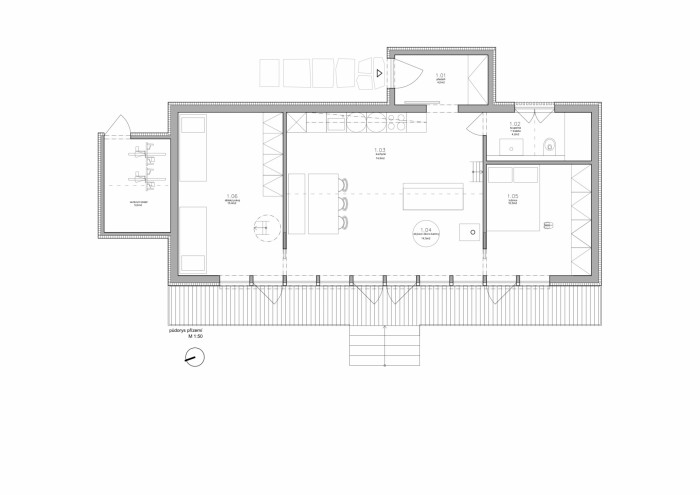
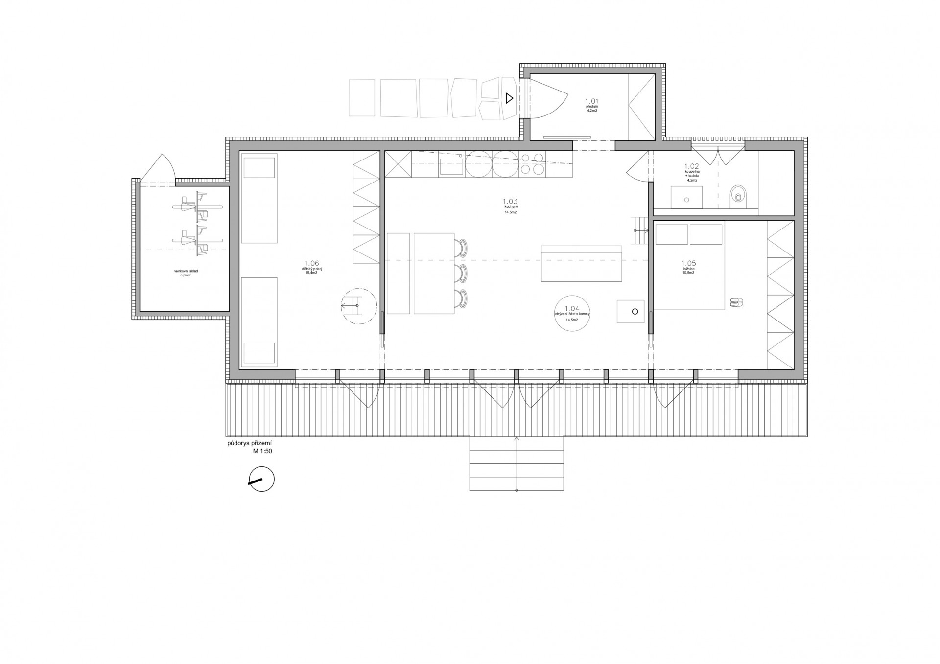
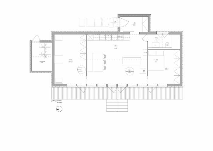
Tvar a orientace domu na pozemku vychází také z manuálu CHKO. Požadavkem byla samozřejmě sedlová střecha a obdélníkový tvar domu v určitých proporcích. Všechny doplňkové prostory jako je sklad a předsíň, byly přesunuty vně hlavní hmotu domu. Staly se z nich přístavky, které CHKO povoluje. Pokud by doplňkové prostory byly uvnitř objemu domu, musel by se dům zvětšit a neúměrně by vzrostla jeho celková cena.

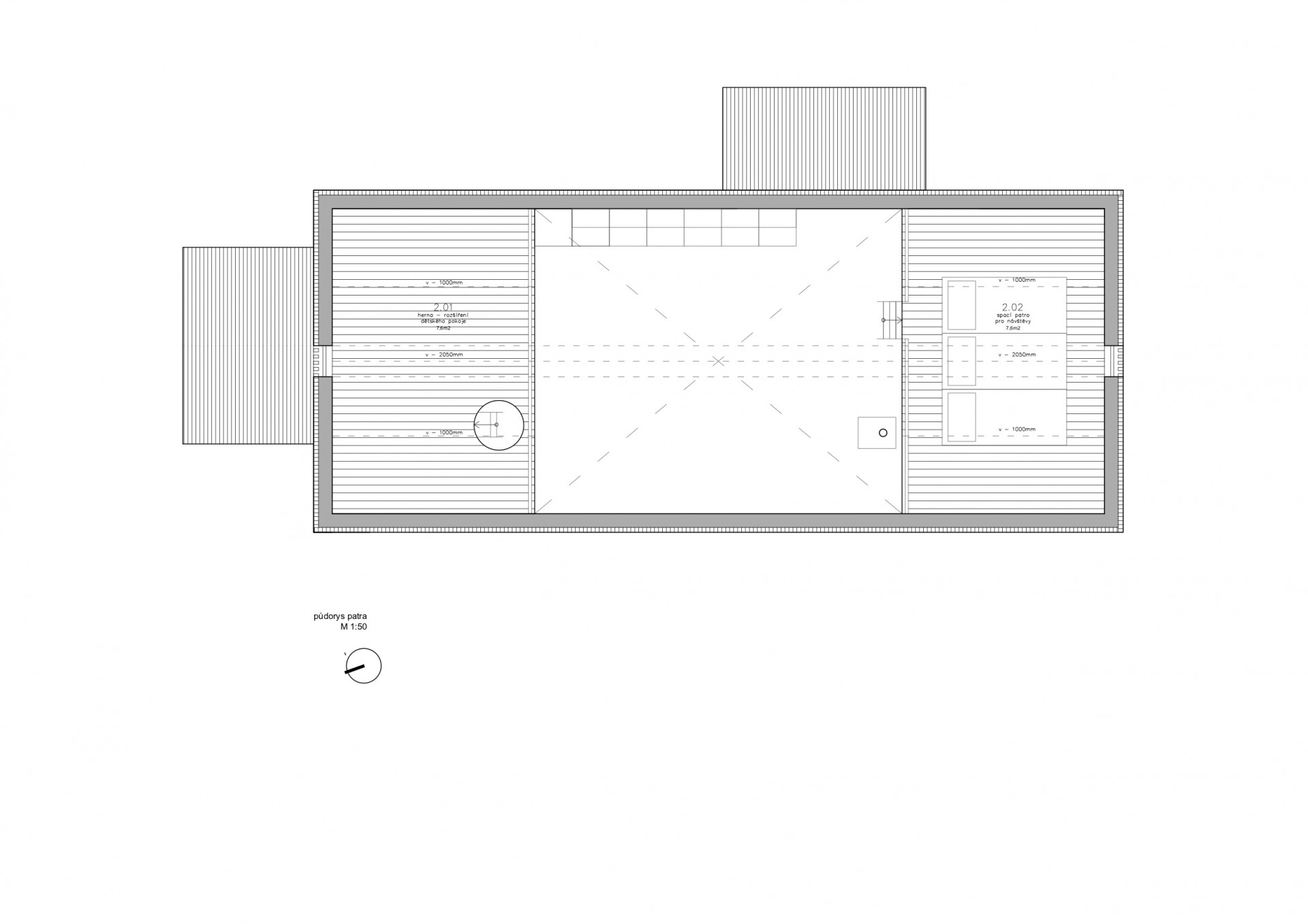
Obdélníkový půdorys se dělí na tři trakty. V prvním je dětský pokoj, který má žebřík do podkrovní části určené pro hernu a dočasné přespání. Ve středním traktu je hlavní obytný prostor s kuchyní, jídelním stolem a sedačkou, který je skrze síť propojen s hernou. Ve třetím traktu je ložnice rodičů. Z hlavní místnosti ještě vedou dveře do koupelny a žebřík do patra pro dočasné přespání nad ložnicí. 

 

3/ orientace na výhled

Chatička je orientována jihovýchodním směrem na krásný výhled do krajiny. Veškerá okna včetně ložnice a dětského pokoje jsou spojena do jednoho celku. Místnosti propojují posuvné dveře, které jsou umístěny přímo u oken tak, aby vznikl průhled skrze celý prostor domu. 

  • Autoři: Markéta Bromová
  • Ateliér: Markéta Bromová architekti
  • Země: Česká republika
  • Realizace: 2019
  • Datum projektu: 2017
  • Realizace: 2019
  • Užitná plocha: 70.00m2
  • Zastavěná plocha: 84.00m2
  • Spoluautorka studie: Zuzana Kosková
Generální partner
Hlavní partneři