M

Module Grid House

Navrhli jsme dům v předměstské části regionu Severní Kanto. Jedná se o dům pro mladý pár s dvěma malými dětmi. Jak jsme navrhovali dům, uvědomili jsme si, že existuje společná otázka, kterou si všichni (včetně mě) klademe v souvislosti s životem v současné společnosti.

Struktury rodin, příjmy domácností, pracovní styly, koníčky, vkusy, počasí a klima jsou různé pro různé rodiny. Většina z nás chce být v nějakém směru „zvláštní“ a mít unikátní životní styl. Zároveň ale všichni chceme být stejní jako ostatní a zapadnout. Tyto myšlenky si zdánlivě odporují, ale ve skutečnosti je poměrně přirozené se takto cítit a považuje se to za normální konzumní psychologii: všichni chceme vysoce kvalitní produkty, ale za nízkou cenu.

Proto byla „masová produkce = prefabrikace“ nevyhnutelným řešením a všechny stavební společnosti se na ni soustředily. Nicméně, stejně jako učenec Hideto Kishida napsal v knize Kenchiku-zasshi v roce 1947: „Doufám v rozvoj prefabrikovaných domů, ale osobně bych raději řád prefabrikovaných domů nenastoloval.“ Dokonce ani starší generace, která žila bezprostředně po válce, si nemyslela, že prefabrikace je pozitivní řešení.

V tomto projektu byl hlavním záměrem „masově neprodukovaný dům vyrobený z masově produkovaných komponentů“ a přehodnotili jsme tak způsob, jakým moderní bydlení vzniká za podmínek stanovených konstrukční metodou.

Je to už kolem šedesáti let, co jsme po upuštění od tradičních japonských jednotek začali používat metrický systém. Přesto je japonský měrný systém Shakkanho stále preferovaný ve stavebním průmyslu, především při konstrukci dřevěných domů. V Japonsku byly komponenty, založené na velikosti jedné žíněnky Tatami (rozměr 3 shaku x 6 shaku), masově produkovány a rozšířeny mezi výrobci, kteří je prefabrikovali „konvenční metodou“ po celém Japonsku. To umožnilo dosáhnout modulové koordinace každému, čili každý se mohl stát architektem, pokud byl schopen nakreslit na čtverečkovaný papír půdorys.

Užitím měrného systému pro naše vyjádření, tedy něčím pro Japonce tak přirozeným, jsme chtěli dosáhnout nejen ekonomické efektivity, ale také modulární efektivity v návrhu a v prožitku.

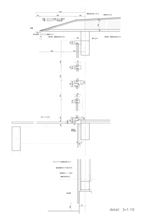
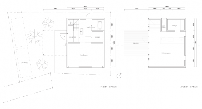
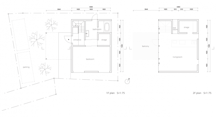
Co se týče půdorysu, čtverce jeho sítě mají rozměry 3 shaku x 3 shaku (910 x 910 mm). Půdorys má rozměry 6 x 8 čtverců a také místnosti jsou podle těchto čtverců rozděleny. Výšku jednoho podlaží jsme jednoduše stanovili na 4 čtverce (=2 žíněnky Tatami). Krokve tvoří masově produkované, šest metrů dlouhé hranoly (120 x 120 mm, obyčejně používané na sloupy) a použili jsme je tak, jak přišly – aniž bychom je řezali. Přečnívající části tvoří přesah střechy. Rozměry domu jsou odvislé od masově vyráběných komponentů, což ho dělá velice cenově přístupným. Co se týče působení, živost přichází skrze „fyzický materiál“. A co se týče prožitku, konstrukce je založena na modulárním systému, na nějž jsme byli v Japonsku všichni zvyklí, což přináší jistý faktor nostalgického komfortu.

Stejně jako Michelangelo apod. používali vysoký řád, aby unikli klasickému architektonickému renesančnímu řádu, naše vysoké Shakkanho, které nahrazuje tradiční Shakkanho které má zastání v japonské architektuře. Ideální, normální stav mysli, který všichni Japonci hledali, byl nalezen v přirozeném systému, ke kterému měli všichni odjakživa přístup.

  • Ateliér: Tetsuo Yamaji Architects
  • Země: Japonsko
  • Město: Tokio - Saitama
  • Užitná plocha: 79.50m2
  • Zastavěná plocha: 39.75m2
  • Plocha pozemku: 208.27m2
  • Foto ©: Kenta Hasegawa

Související ateliéry a firmy

Generální partner
Hlavní partneři