NEUHÄUSL HUNAL - The Eatery

Holešovické bistro svým dvojznačným názvem naznačuje hlavní koncept projektu: jídelna divadlem. Architektura vytváří scénu pro představení, které se odehrává v kuchyni i na talíři. Klíčové principy – racionalita, kontrast, přirozenost, střídmost, transparentnost a moderní interpretace české klasiky ­– jsou v souladu s gastronomickou filozofií fine dining podniku.

Bistro se nachází v přízemí administrativního objektu z devadesátých let, kde původně (a paradoxně) fungoval obchod s interiérovými dekoracemi. Během celého procesu bylo zásadní udržet striktní jednoduchost a jednoznačnost prostoru i principů. Na výsledku bez kompromisů má svůj podíl také takřka ideální, intenzivní spolupráce s budoucími uživateli prostoru.

Foto: EARCH

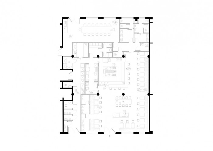
Dispozice a provoz

Otevřená kuchyně je jádrem kompaktního prostoru restaurace, který lemuje kontinuální čalouněná lavice. Vysoké sezení po obvodu kuchyně umožňuje pozorovat přípravu pokrmů a navázat kontakt s kuchaři. Absenci tradičního baru nahrazuje detašované pracoviště číšníků přímo naproti vstupu do restaurace. Poloprůhledná stěna měkce odděluje vinotéku a neformální šatnu. Racionální organizace všech provozů podporuje jejich přehlednost.

Foto: EARCH

Materiály

Neobvyklé použití obvyklých materiálů jasně vymezuje jednotlivé funkce a dává vzniknout neortodoxním souvislostem. Odhalení nosných železobetonových konstrukcí definuje převažující přísný charakter, který podporuje pečlivě vybraný mobiliář a analogicky surový heraklit. Tyto dřevocementové desky bez povrchových úprav plní akustickou funkci a také odkazují na kamenný obklad budovy. Obyčejné plotové tvarovky skládané na výšku tvoří mřížku neukončené polopříčky. S monochromatickou syrovostí prostoru pro hosty kontrastuje bílý keramický obklad a nerez gastronomických provozů podtržené minimální grafikou. Záměrně nedokončené sádrokartonové příčky v chodbě tvoří lehce šokující přechod z odstínů šedé k černobílému minimalismu toalet.

Foto: EARCH

Osvětlení

Typy osvětlení podporují daná materiálové řešení a funkce: decentní betonová svítidla vytváří intimní, teplou atmosféru u jednotlivých stolů pro hosty, oproti tomu studené, silné světlo zdůrazňuje hygienicko-technický charakter obsluhujících prostorů. Plošné osvětlení napínanými podhledy v chodbě a na toaletách tvoří silné protiklady s materiály stěn. Podsvícení vinotéky vytváří jemnou hru barev a jedinou „dekoraci“ v prostoru. 

Foto: EARCH

Generální partner
Hlavní partneři